查看完整案例

收藏

下载

翻译
Architects:Estudio PK
Area:469m²
Year:2022
Photographs:Alejandro Peral
Lead Architects:Ignacio Pessagno, Lilian Kandus
Structural Design:José Luis Pisani
Other Participants:Ignacio Pessagno. Lilian Kandus, Lucila López, Denise Andreoli, Belén Luna Crook, Belén López Astrada, Vanesa Rolón, Delfina Iglesias, Denise Bardelli, Melany D’angelo, Sofía Vier Abinet, Renata Stechina, M. Emilia Belardinelli
Interior Design:SUMA interiorismo & Design Lovers
Landscape Design:El Camino – Arquitectura del paisaje
City:San Isidro
Country:Argentina
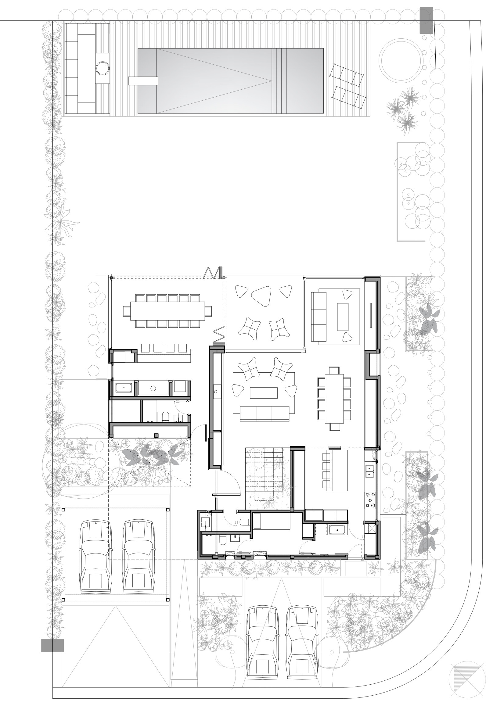
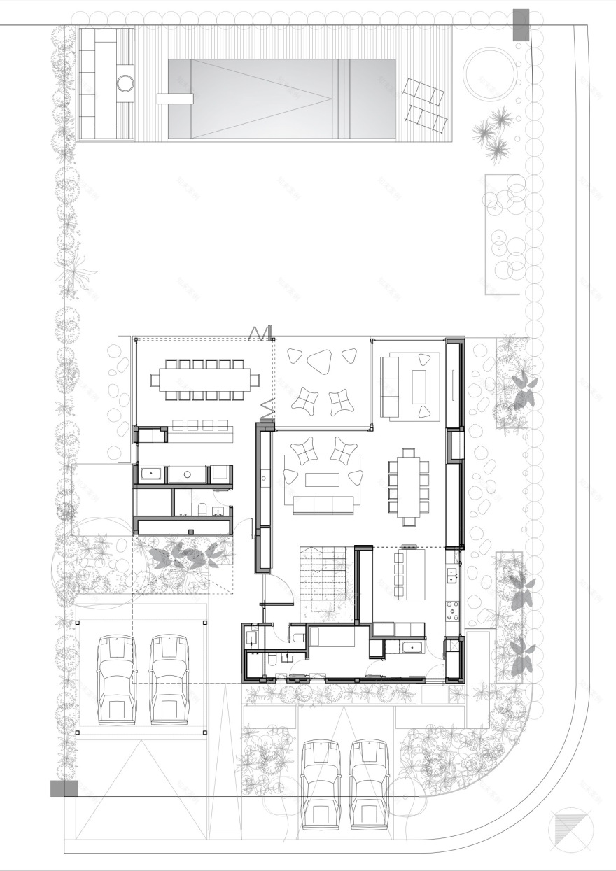
Text description provided by the architects. Located in the neighborhood of "La Clementina", San Isidro is "Casa Morphosis", an urban dwelling that despite the spatial constraints, compacts a complete program on three levels capable of satisfying the needs of the user, welcoming their lifestyle and social activities.
On the ground floor, a courtyard was created for an existing tree, which gives a hierarchy to the main entrance to the home, including the staircase that links and articulates the spaces. After the entrance hall is the living-dining-playroom, which is open and in constant dialogue with the kitchen.
On ground level, from the courtyard, you can also enter a closed gathering place, this is the heart of the house and characterizes the clients' attitude of not only coexisting but also of living and sharing their home.
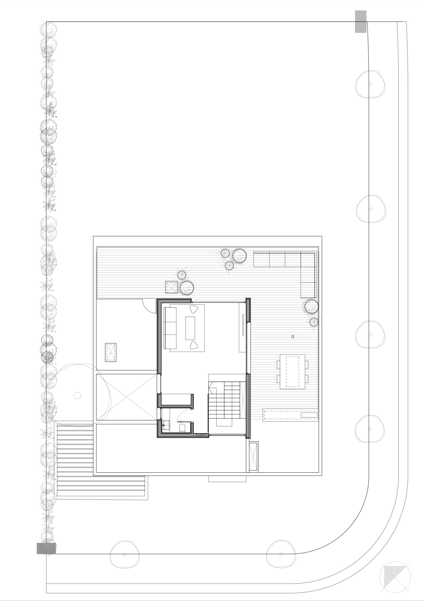
The private area of the house is located on the first floor, where the suite and the bedrooms are connected by a common and intimate space for the family. Finally, we complete the program with the main playroom on the third level that expands to the terrace.
The material constitution of the house is based on the use of low maintenance and noble materials, together with simple and synthetic details; concrete structure, white sheet metal cladding, grey tundra floors, PVC wood-like carpentry and Lapacho and WPC wood cladding. Casa Morphosis has not only achieved the client's expectations but also allowed the studio to design a cozy home for the family and a welcoming space for their social environment.
Project gallery
客服
消息
收藏
下载
最近






















