查看完整案例

收藏

下载

翻译
Architects:Toob Studio
Area:250m²
Year:2022
Photographs:Triệu Chiến
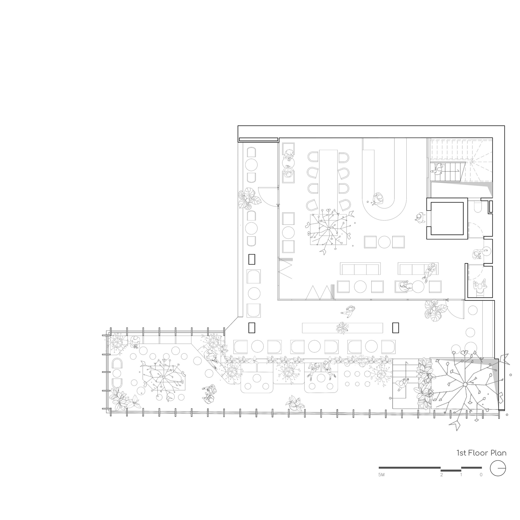
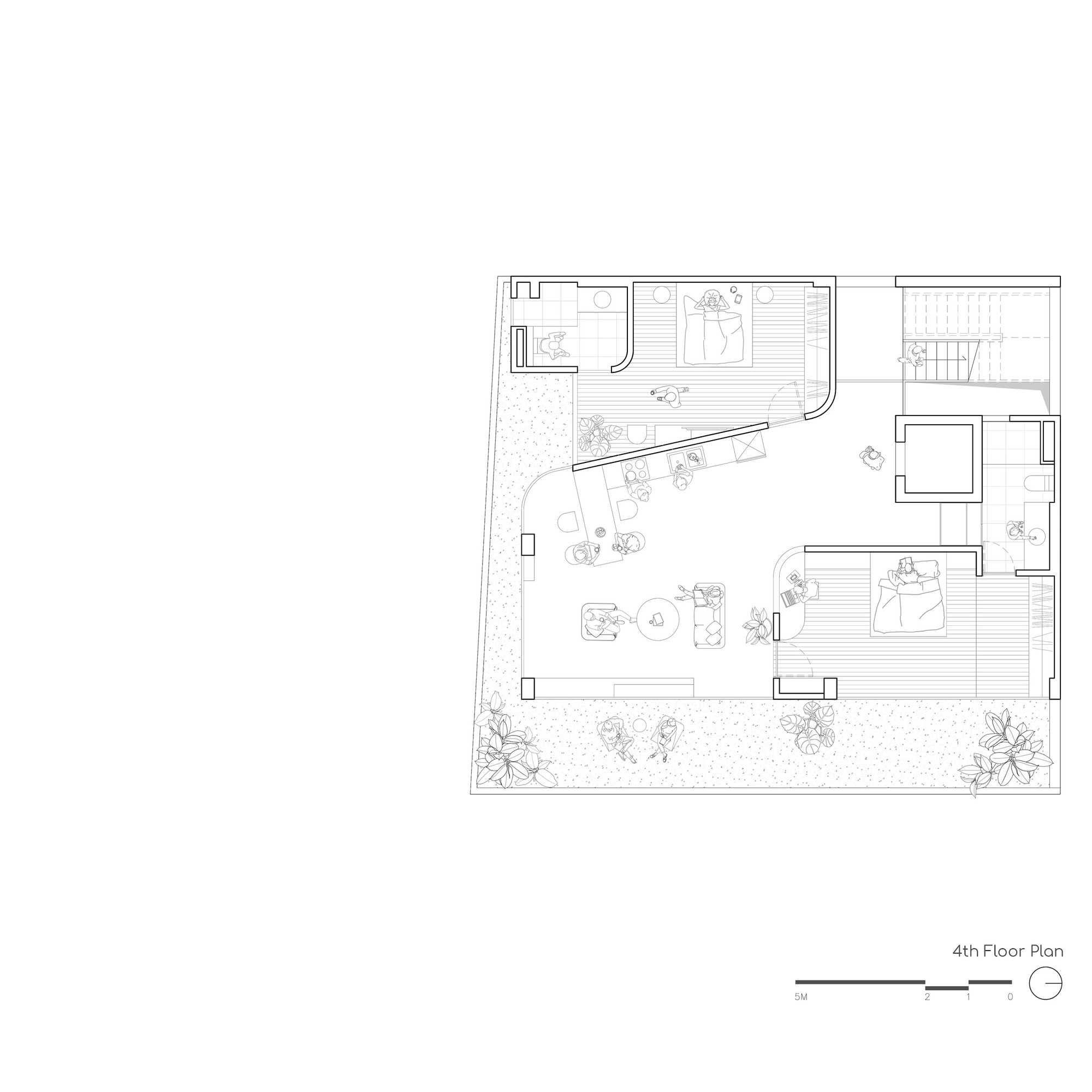
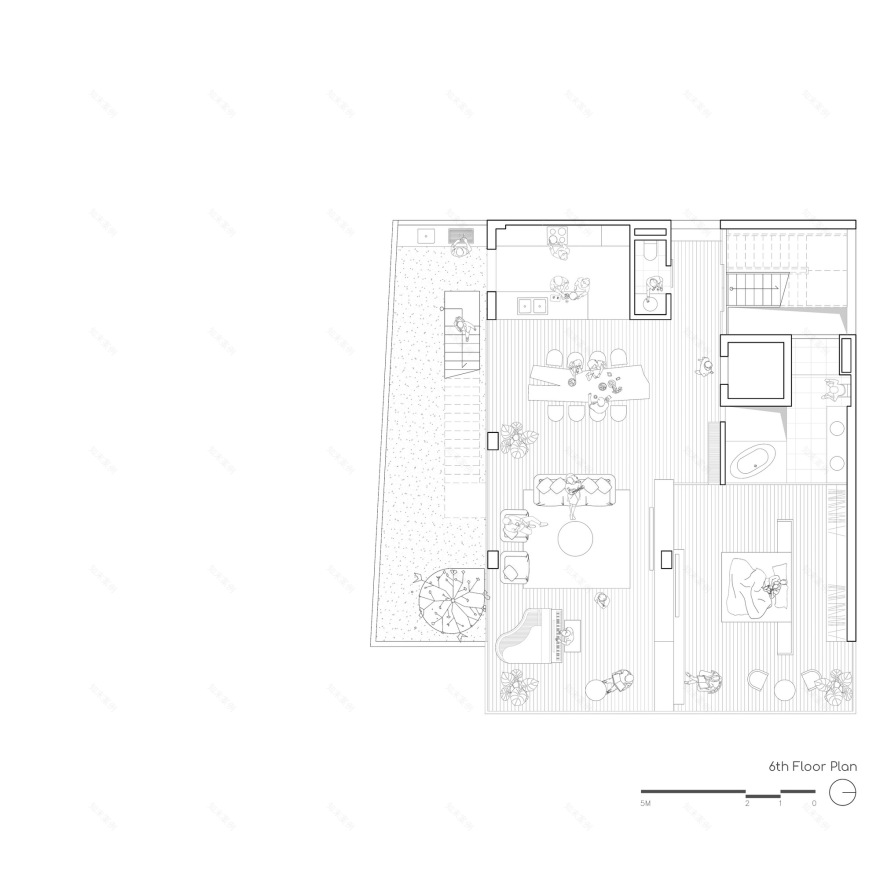
Text description provided by the architects. LightHouse lies on a slope in an unique area: 5-way-intersection in the center of Ha Long city. The House has clear views to the sea from two open corners. LightHouse is a challenging project for both architect and the investor to have a suitable mindset for such a unique landscape. Ha Long is a city that is planned in a linear form, with low population density. Although it is located in the inner of a bay so it does not suffer natural disasters like other coastal cities, it still has 10 degrees seabreeze coming with salty steam which would cause rapid deterioration to construction’s surfaces.
The architects have to face a difficult situation where the safety, steadiness aspects of the facade must be considered but the connection between interior - exterior and the landscape must also be taken into account. The solution is a two layer covering system like the traditional architectural method. The inside glass keeps the connection with natural light while preventing the seabreeze and urban noise. The outside layer is light perforated concrete slabs that acts like a hard shelve that protects the inner from harsh natural environment. Users could open and close these layers in order to match with their personal needs. The construction has a part that carves into the hill; with a special construction method, the architect unintentionally creates a fascinating natural earth wall. This ‘accident’ is keeped in order to encourage the connection with local elements both physically and spiritually.
The work contains a complex function: the lower level floors are for renting and the higher levels, where the ambience is quieter, the seascape expands and the eye reaches out to the horizon is the place for the house’s owner enjoying their time. LightHouse is expected as a marker of modern architecture contributing to the process of industrialization and modernization of Ha Long city.
Project gallery
客服
消息
收藏
下载
最近





































