查看完整案例

收藏

下载

翻译
Architects:Momento
Area:1285m²
Year:2023
Photographs:Gonzalo Viramonte
Manufacturers:AutoDesk,Chaos Group,Ariston,Blangino,Cervatto Aberturas,Drevo,Espacio Concretto,Experto,Indoors,Jhonson,Merlino,Piazza,Serin,Sinis,Tejamax,Trimble Navigation
Lead Architects:Gastón Biderbost, Federico Biderbost, Araceli Figueroa
City:Villa Carlos Paz
Country:Argentina
Text description provided by the architects. Living at home. Coming back home. Feeling at home. There's no place like home. These expressions are often heard, said, and felt without noticing the strength and importance of the word HOME: the magnitude of the space, the responsibility it carries, and the affection it generates. Our project does nothing but pursue the idea of turning a building into a home. Located in Villa Carlos Paz, a hilly city in the province of Córdoba, surrounded by nature with its rivers, and lake, constantly accompanied by hills that guard the urban area. Here is where our project was born, a building of residential units within a neighborhood adjacent to the city center, which keeps it away from the hustle of tourism and at the same time within an urbanized natural environment.
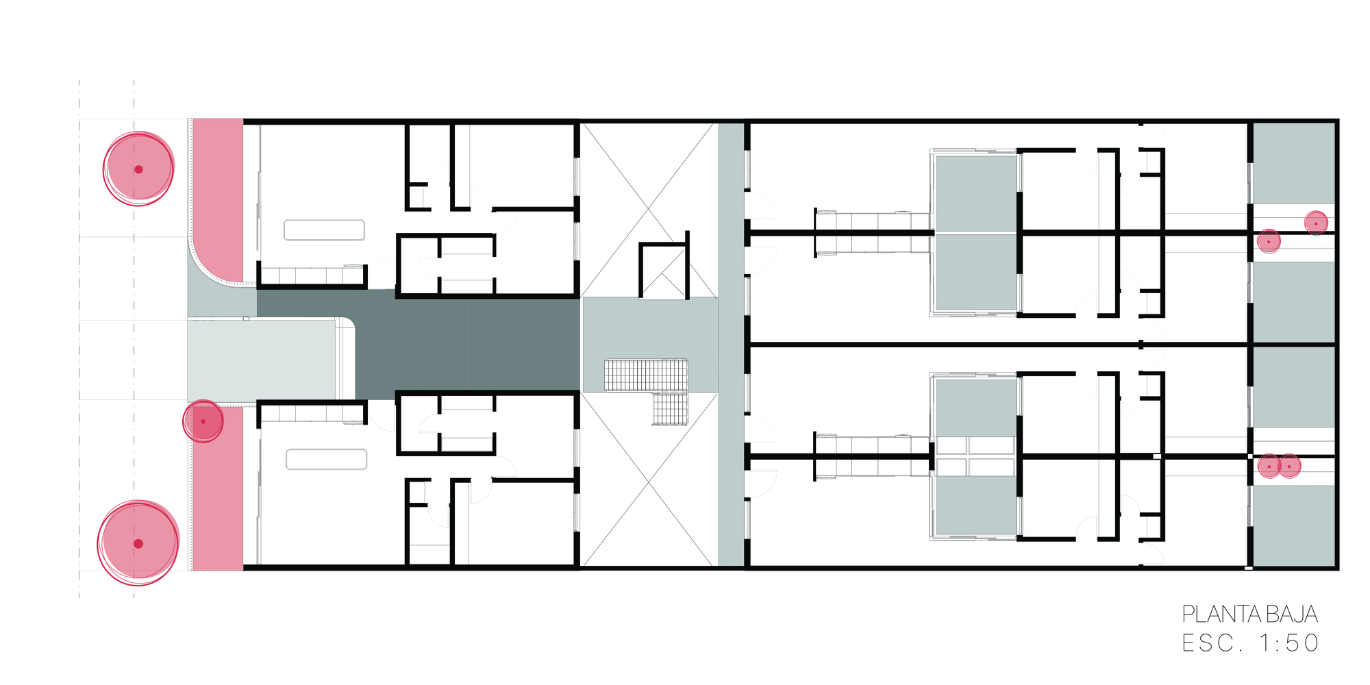
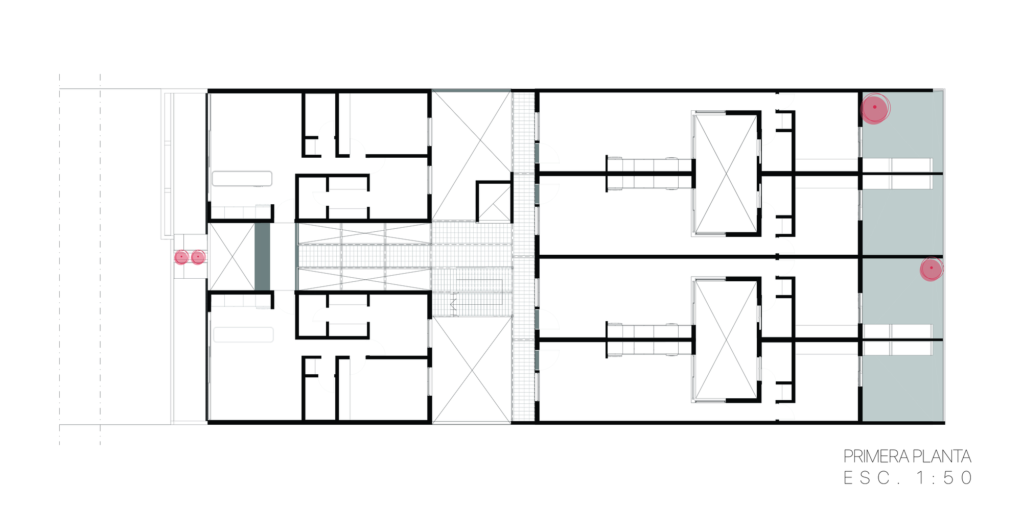
Structured around three blocks built around a central core that dematerializes common circulation, turning stairs and corridors simply into sidewalks, courtyards, and public space, through the development of a brick metal walkway, accompanying the visual rhythm of the corridors. The large and ventilated void becomes an element of climate control, visuals, lights and shadows, encounters, permanence, and tradition. The exterior reminds us of the interior. Spacious, well-ventilated, and illuminated spaces are achieved thanks to a balanced use of environmental resources. The materiality accompanies the site of implantation, relates to the context, and seeks to provide sensory value with textures, organic colors, and imperfect and irregular forms, creating simple atmospheres that go with living at HOME.
Flia was designed thinking of conscious spaces, their details, and their functionality. It is a building composed of the sum of 12 houses, with patios, a square, and a parking garage. Flia is a strong concept that deals with good living, sharing, conscious dwelling, recognizing oneself with the environment, integrating with it, and being part of it. We live in society sharing with others and with ourselves: we live in Flia.
Project gallery
客服
消息
收藏
下载
最近



































