查看完整案例

收藏

下载

翻译
Architects:ARCHITECTS OFFICE
Area:574m²
Year:2023
Photographs:Felco
Manufacturers:Concept Store,Estudio Rain,Pair Home
Lead Architect:Greg Bousquet
Design Team:João Vieira; Rodrigo Mathias; Bruna Bertuccelli; Daniela Bertuol; Graziella Behning; Filipe Meltzer; Lívia Frugoli; Evandro Nunes;Thiago Buccieri
Contractor:LAR Construtora
Client:LAR Identidade
Program:Casas de campo / Incorporação
Start Year:2021
City:Monte Mor
Country:Brazil
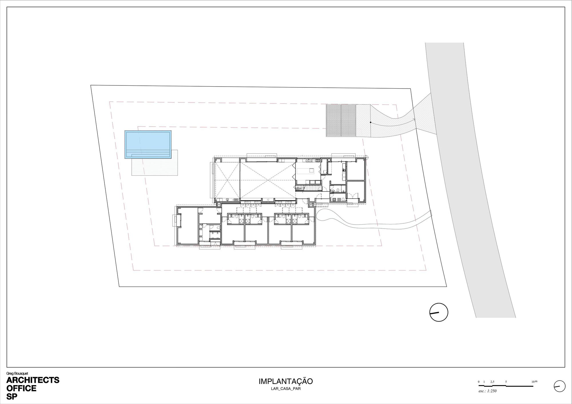
Text description provided by the architects. Located in Haras Larissa, in the interior of São Paulo, Casa PAR has 524m² distributed on a 2169.40m² plot of land.
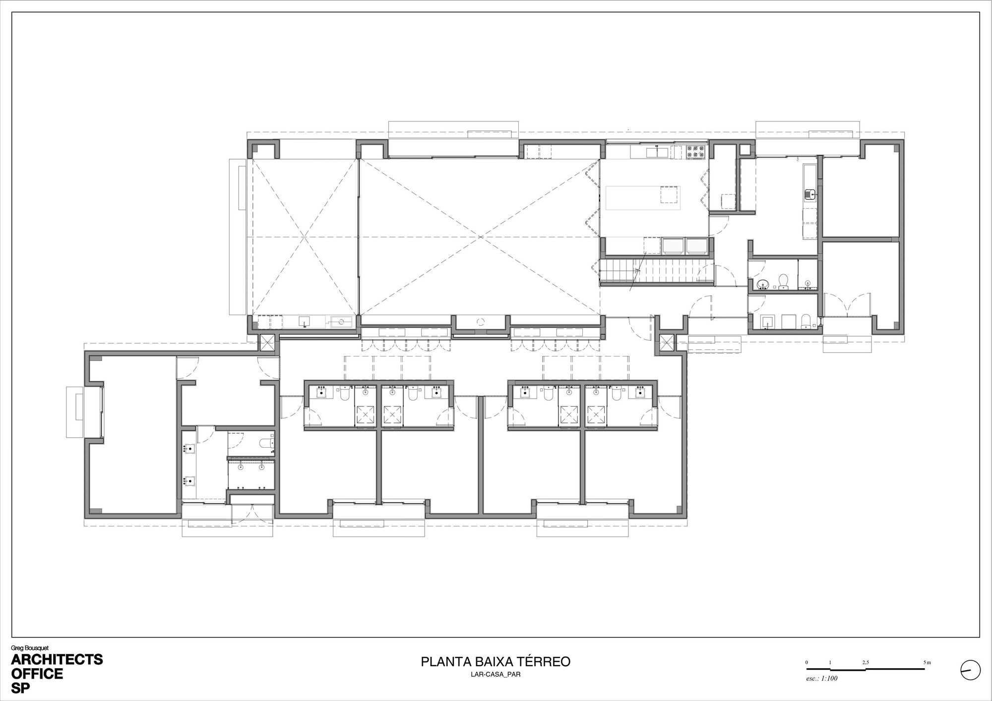
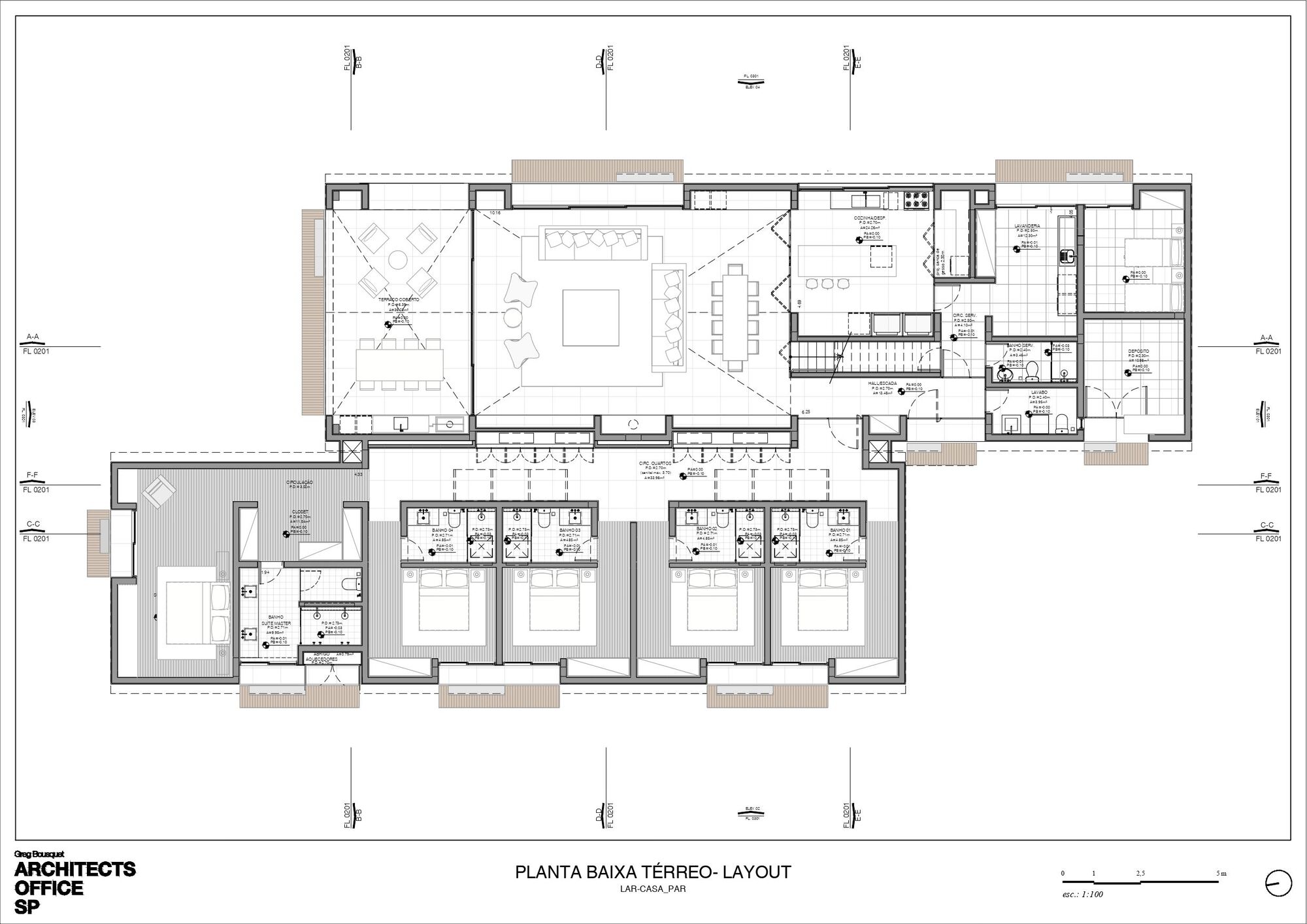
The house is composed of two elevated and staggered volumes - the social volume with 231.15m² that advances over the land and the intimate volume of 182.69m², set back to the other - and gabled roofs of different heights, a rescue of one of the most traditional architectural roof solutions. The front facade is marked by the rhythm of setbacks and advances of the house, different roof heights, and the graphics - either by the choice of cladding or by the louvered gables of the roof, inspired by haras and stables, to ensure permanent natural lighting and ventilation.
The main access is through the social block, entering the hall that organizes the other rooms of the house - a half bath; a support area with laundry, bathroom, and bedroom; and a living room overlooking the outdoor area.
In the living room, the spacious area with double-height ceilings is interconnected with the kitchen and the covered terrace by sliding doors, creating a unique and fluid atmosphere between indoors and outdoors. The ceiling is the protagonist, revealing the intricacies of the gabled roof. The countryside landscape of Haras Larissa is framed by white metal frames that separate the living room and the terrace - a contemporary element in contrast to the use of natural materials and coatings - such as stone and wood. Also in the living room, a sculpted staircase provides access to the mezzanine of 96.27m² with low ceiling height and access to an external balcony through sliding doors. The lighting is frontal via a wooden slat roof - creating a more intimate atmosphere.
The main hall also provides access to the intimate block through a sturdy wooden door that symbolizes the separation of the two volumes of the house. Upon entering, the circulation to the four suites and master suite is illuminated by natural light from openings in the wooden roof - marking the passage of time within the habitat.
The concept of Casa PAR intertwines the simple and the sophisticated, traditional vernacular and contemporary, balancing two universes to tell the narrative of the current countryside house. The architecture provokes this coexistence and the curation of materials reaffirms it - the social wing presents cold coatings like stone and metal, and the intimate wing warm coatings like wood. Natural materials were tailor-made to promote the sensation of calm, serenity, and belonging.
In the outdoor area, the house is surrounded by wooden decks and concrete steps for access to each of the suite openings, living room, kitchen, and others, and a 44m² pool. Casa PAR is inspired by the countryside and designed for contemporary living, aimed at valuing traditional vernacular architecture with current everyday uses.
Project gallery
客服
消息
收藏
下载
最近





































