查看完整案例

收藏

下载

翻译
Architects:VSP Architects
Area:2600ft²
Year:2023
Photographs:HAMDAN
Structural Consultant:Chitra Jayasanker
Furniture Design:EARTH TONES STUDIO
City:Kannur
Country:India
Text description provided by the architects. Located in the urban area of Kannur on a 6cents( 240 sqm) plot of land, our project aimed to harmonize minimalist design elements with lush greenery, inviting courtyards, and organic finishes to resonate with the preferences of the homeowners. This family of four, based in Dubai, where they run their businesses, sought to embrace a serene and stimulating lifestyle in their new home in Kerala, characterized by their shared interests in literature, gardening, and writing.
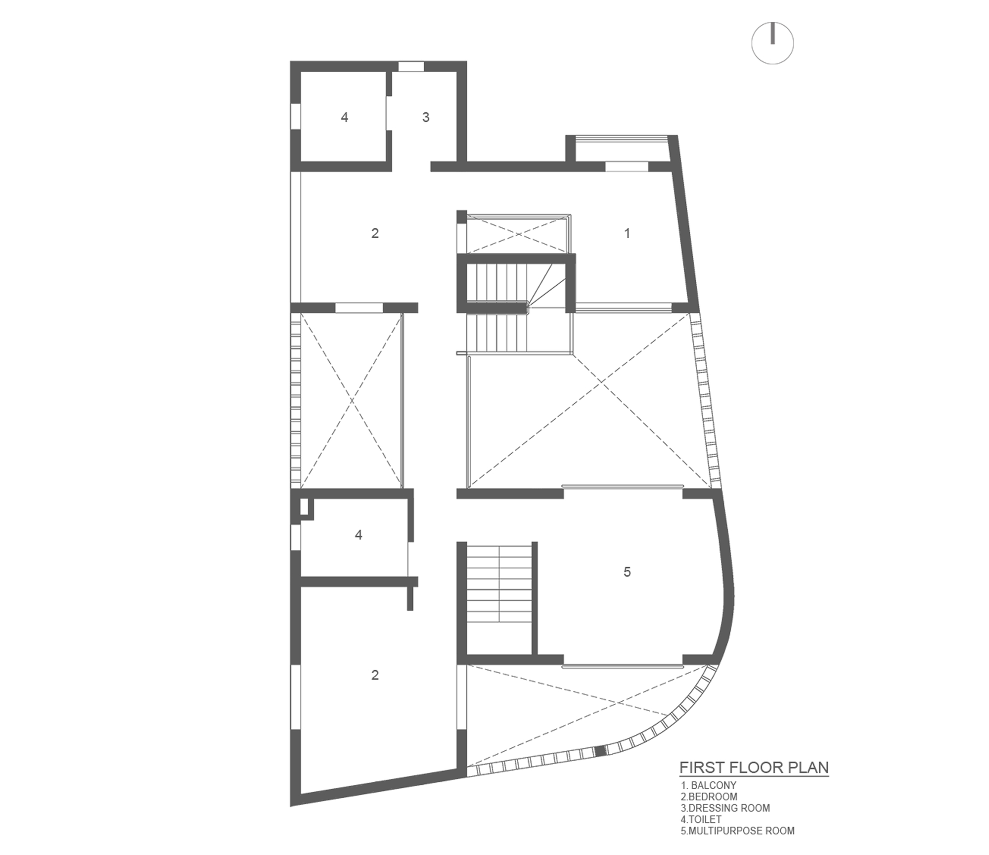
Addressing key challenges such as privacy, natural ventilation, and simplifying design intricacies for easy maintenance, we crafted a solution that seamlessly integrates the indoor and outdoor living experience. Our design ethos centered around providing every space within the residence with a visual connection to the central courtyard, blurring the boundaries between interior and exterior realms. Utilizing porotherm blocks facilitated abundant natural airflow while ensuring discretion. Careful consideration was given to the placement of windows to mitigate direct sunlight exposure, optimizing comfort.
The material palette for this project was thoughtfully curated, with each element selected based on its function and contribution to the overall aesthetic. Porotherm blocks were employed to facilitate natural airflow and ensure privacy, while lime-plastered walls added a touch of traditional charm and acted as a canvas for the play of light and shadow. Natural stone floorings grounded the space with their earthy texture, providing a connection to the environment.
The integration of teak wooden floors and handcrafted furniture infused the interiors with warmth and sophistication, while glass sliding windows seamlessly connect the indoors with the lush greenery outside. Meticulously balancing these materials, the design achieved a soothing ambiance that resonated with the homeowners' desire for a serene lifestyle. The deliberate design of skylights added another layer of visual interest, introducing ever-changing light and shadow patterns that further enhanced the sensory experience of the space.
Project gallery
客服
消息
收藏
下载
最近
























