查看完整案例

收藏

下载

翻译
Architects:Mayresse Arquitetura
Area:746m²
Year:2023
Photographs:Marcelo Donadussi
Lead Architects:Carlos Eduardo Andricpolo Mayresse
Engineering:Luís Antônio Picolli
Landscape:Betina Peccin
Collaborators:Arq. Micheli Schmitt , Arq. Andressa Enzweiller
City:Gramado
Country:Brazil
Text description provided by the architects. Three overlapping volumes, built in exposed concrete, natural stone and metal structure, give life to Casa K: designed to be the temple of a family that dreamed of waking up and spending their days overlooking the sunset.
Located on a lot overlooking the valley, Casa K has a very peculiar feature: exit to two streets. The topography of the land, with a slope from left to right and front to back, made it possible to distribute it over three floors.
On the front facade of Casa K, we worked on privacy associated with natural light through wooden louvers. Pedestrian access is via a large staircase that reaches the horizontal social area. This accommodates a living room, dining room and gourmet space that leads to the external balcony, which opens to views of one of Gramado's valleys. On the deck, surrounded by a cantilevered infinity pool, a reflecting pool in continuity with the pool acts as a barrier to the eaves. As an architectural detail, a metal beam with a 9-meter cantilever creates a visual detail on the rear facade.
Still, on the first floor, the project is completed by a guest suite, the daughter's suite, an office and a bathroom. On the upper floor, we created an exposed concrete volume that exclusively accommodates the master suite, closet and bathroom for the couple, also with views of the valley. Furthermore, the master suite can be illuminated by its openings that open to the front of the residence, or to the back.
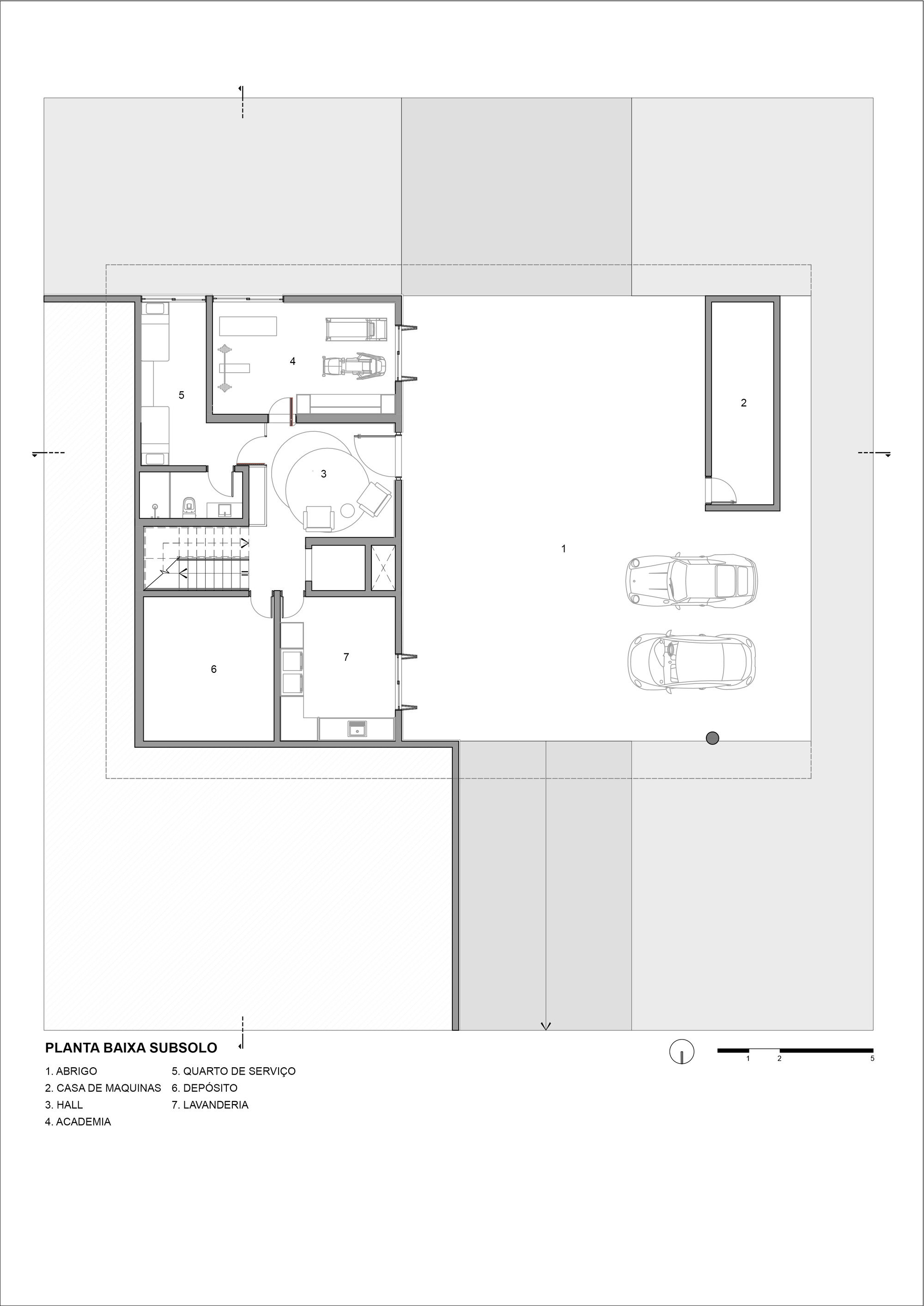
In the basement, the cellar and gym are complemented by an entrance hall for those arriving through the garage. Still in the garage, we created a large space supported by a pillar in continuity on the first floor. The lightness of the volume at the back of Casa K contrasts with the elegant robustness of the completely private front facade. In terms of materiality, metal structure, natural stone and exposed concrete mix and bring the charm that is this house!
Project gallery
客服
消息
收藏
下载
最近









































