查看完整案例

收藏

下载

翻译
Architects:Zero Studio
Area:5200ft²
Year:2022
Photographs:Ar Hamid MM
Manufacturers:Saint-Gobain,Crabtree,EBCO,Faber,General,Hafele,Jaquar,Kapital Plywood,LG Hausys
Lead Architects:Hafeef Pk, Hamid Mm (Late)
Landscape Contractors:Land Systems
Structural Contractors:Cubix Ultra Builders
Structural Consultants:A & N Consultants
Design Team:Shabna K, Nidhinraj Kj
Plumber:Ansar
Electrician:Mirshad
Industrial Work:Sareesh
Mep & Hvac Consultants:Elmek Solutions
City:Tirur
Country:India
Text description provided by the architects. This residence is set in a site that is covered in coconut plantations and other native vegetation belonging to a typical northern Kerala landscape: A very quiet and tranquil setting that doesn't invite any kind of intrusions. Altering this and bringing about any kind of change called for a respectful approach.
Thus, this house is considered an entity whose external facade is assigned the duty of ‘screening’ of the built from the unbuilt. This is done to place the volume in the most subtle way by not being in stark contrast with the context. This ‘screen’/ envelope of the house is lined with a layer of landscape in the inner periphery acting as a filtering member for the light and noise from the outside, also enabling a play of light inside during the day. Moreover, fresh and humid air from the surroundings is brought in, filtered, and spread to different corners of the house. The facade metaphorically represents a ‘lantern’ where the external envelope shields and glorifies the beauty of the inner core - the light or the function; literally being witnessed during the night.
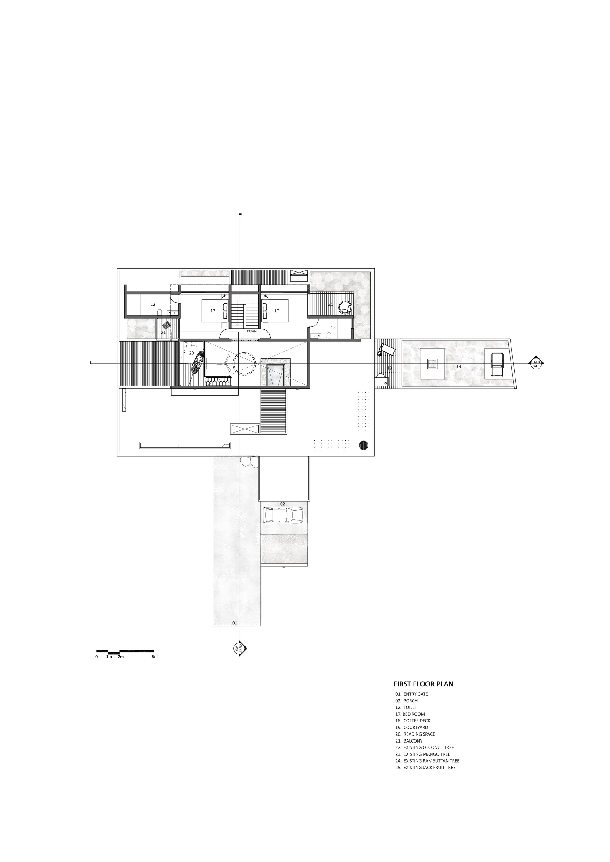
The design follows a clean, straightforward elevation where windows and doors are wrapped inside without revealing their identity, producing a monolithic form. Once entering the house, the visitor is welcomed to a larger volume where all the common spaces are dynamically knit into one with an elongated water body by the entrance. Walls are intentionally kept minimal to provide unfettered access to the landscape in the periphery while ensuring the required privacy for bedrooms. While the screen and the subsequent landscape layer control the view towards the inner areas, the users are able to have a filtered view towards the outside through the same. This more or less thins the idea of having an opaque boundary to the volume, but serving its purpose of providing security going with an absolutely open planning. The palette for finishes in the interiors is mostly neutral to original shades without compromising this uncluttered appeal.
The user experience quotient: Designed for a family of four: husband, wife, and their two kids who currently reside in the UK and come down during their annual holidays. They wanted their home to be set in their ancestral land, enabling them to be around their loved ones and host memorable gatherings while they were here. The process behind delivering personalized and intimate spaces for each of the users from a common volume was very intense and the design ultimately went about having some delights like the floating deck by the living area that opens out to the garden, reading space in the extended stair landing, private balcony of the first-floor bedroom overlooking the plantation, the terrace planters, the bay windows and the prayer/ meditation room in the ground floor with a perforated wall that brings in interesting patterns of daylight. These are spaces that emote varying moods where these users can celebrate the wholesome experience of ‘homecoming.’
Project gallery
客服
消息
收藏
下载
最近




































