查看完整案例

收藏

下载

翻译
Architects:Tristan Burfield
Area:675m²
Year:2022
Photographs:Clinton Weaver,Jon Webb
Lead Architect:Tristan Burfield
Main Contractor:Hartman Construction and Development
Rammed Earth Wall Construction:Olnee Rammed Earth
City:Melbourne
Country:Australia
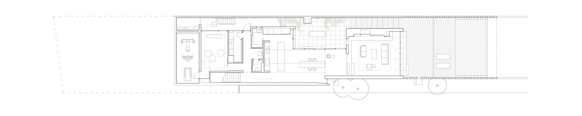
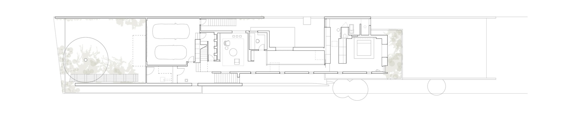
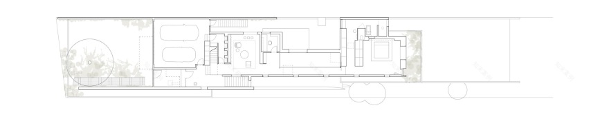
Text description provided by the architects. Within a leafy inner-suburban context, this new home for a young family inhabits a long, narrow allotment. Grading down from the street the site looks toward the eighth green of a private golf course bordering onto the Yarra River.
The street frontage and visible length of the home appear quite impenetrable. The exterior is a composition of greys, blockwork, concrete, and render with sparingly located black highlights. Windows have been sparsely arranged, limited to small repeat squares and tall slots located at junction moments. Openings are pushed into the exterior face, creating a depth to the façade and a heaviness to its materiality. The home's more substantial openings are oriented privately and inwardly, framing views onto courtyard spaces, light wells, and roof lights, and, along with the narrow lower end of the building, opening up towards the manicured greens and fairways of the golf course.
Beginning with a long-galvanized steel grate entrance stair that hovers amongst native grasses in a courtyard, the home unfolds as a series of sequential spaces that break off into separate levels and slowly step down the site. A continuous rammed earth wall constructed from recycled concrete runs along the length of the building. This heavy, robust, and thick wall grounds the palette of equally raw materials that appear throughout; concrete, black battens, charcoaled timber, textured greys, crisp whites, and steel are the primary surfaces with select moments of neutral timbers and softer woven textures in the furnishing selections that bring warmth into the home.
A series of tall pivot doors open a generous volume of living space onto an enclosed deck of heavy boardwalk timbers. This space drops off at its edge to an infinity pool that reflects the sky and tree canopies of the golf course beyond. A simple water feature spout from the decking constantly trickles water, rippling the pool surface and creating a peaceful ambient background sound.
A long kitchen and dining space borders onto glass that slides away onto a minimal entertaining space in the courtyard equipped for outdoor cooking and entertaining. Above this runs an 8m bridge linking the upper-level entrance area to the main bedroom space. Secluded, quiet, and calming, Its elevated view is framed by a foreground of green roofs, grasses, and flowers, offering privacy from morning golfers. An in-situ concrete perimeter to the bed forms side tables warmed by the hydronic heating inside, rendering the concrete pleasant and almost soft to the touch.
One of my favorite successes of this home is how much the external garden and context are experienced from within. Despite how little was available to us. Every bit of view where it could be found is framed and carefully constrained. One can wander through the house from front to back and experience an intense closeness to the views beyond, whether near or far. All the while doing so with a sense of complete isolation from the suburban context around.
Project gallery
客服
消息
收藏
下载
最近








































