查看完整案例

收藏

下载

翻译
Architects:June Architects
Area:297m²
Year:2023
Photographs:Kyungsub Shin
Lead Architect:Hyonseok Kim
Structure Engineering:Yigunkuzo
Construction:Ino&Tech
Design Team:Yunji Yeom, Kunyoung Kim, Soona Lee
City:Seongnam-si
Country:South Korea
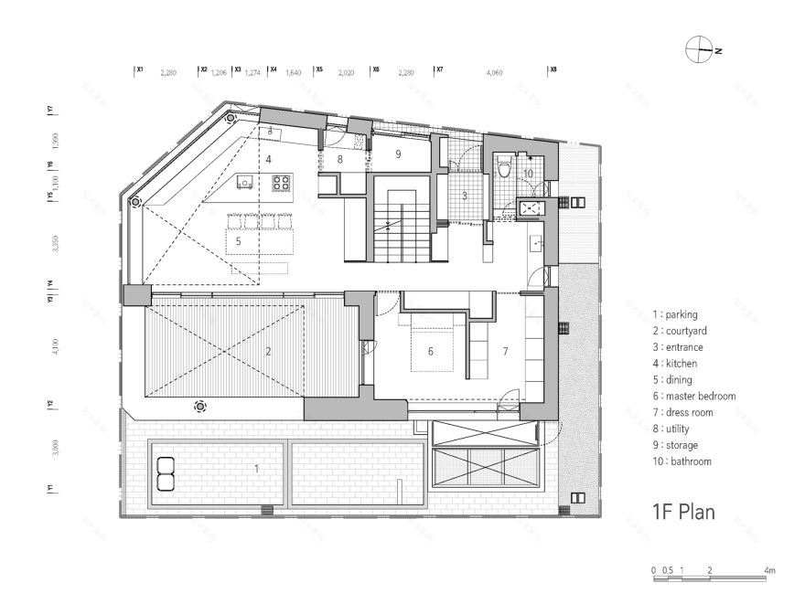
Half-opened courtyard – Feeling nature & Having privacy - When we design a house in urban areas, we always grapple with finding a balance between interaction with nature(outdoors) and ensuring privacy. One of the key reasons people desire to live in a single house is the connection with nature(outdoors) through the yard. However, due to limited land conditions, it’s not easy to feel free from the gaze of pedestrians coming through the yard. So, the yard is conceived as a half-open courtyard, striking a balance between welcoming the dynamism of nature and urban life while also offering a degree of privacy by partially shielding it from external gazes. The courtyard is enclosed by walls, but the middle part of the walls is open, while the upper part is designed with brick-mesh to elegantly filter sunlight, creating a beautiful interplay with the sky. Also, the sunken courtyard, surrounded by a glistening wall, opens upwards towards the sky, providing a fully private space with sunlight.
The half-opened space where they can experience a unique sense - The courtyard on the first floor, open towards the sky with an 8.5-meter-high wall, offers a grand sense of space that cannot be felt indoors. Through this courtyard, the main rooms on the first and second floors are interconnected, serving as a space that unites the family.
Sculptural order - By incorporating sculptural elements with an overarching order, we’ve achieved a sense of completeness in the house, accommodating its diverse requirements. We refined structural components like walls and columns from a simple mass, creating a space that is both powerful and elegant.
A convenient home, a comfortable home - Ultimately, a home should be comfortable. To achieve comfort, convenience is crucial. We have designed the layout to be convenient, ensuring ease of access to spaces like the kitchen and laundry room. Additionally, communal areas where family members gather are made pleasant, while private spaces are separated and connected to ensure individual privacy.
Project gallery
客服
消息
收藏
下载
最近

























