查看完整案例

收藏

下载

翻译
Architects:Patio Livity
Area:1456m²
Year:2023
Photographs:KIE
Manufacturers:Baselo,Blanco,Grandome,Lightology,Lightvolution,Maison,Ong cen kuang,Prive
Lead Architects:Clement Cadmiel
Contractor:Livity Build
Principal Architect:Clement Cadmiel, Franzeska Karin, Xaverius Michael
Architect In Charge:Pegagan Kantraprawira
Project Development:Muhammad Haries Ramdhan
Contributors To Project Development:Daniel Yudhistira, Firmansyah Alghovari
Program / Use / Building Function:Private House
City:Bandung
Country:Indonesia
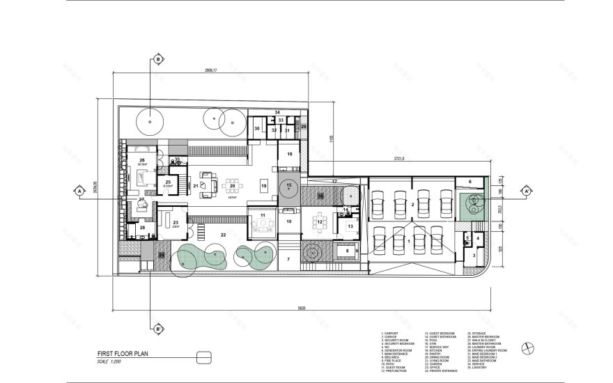
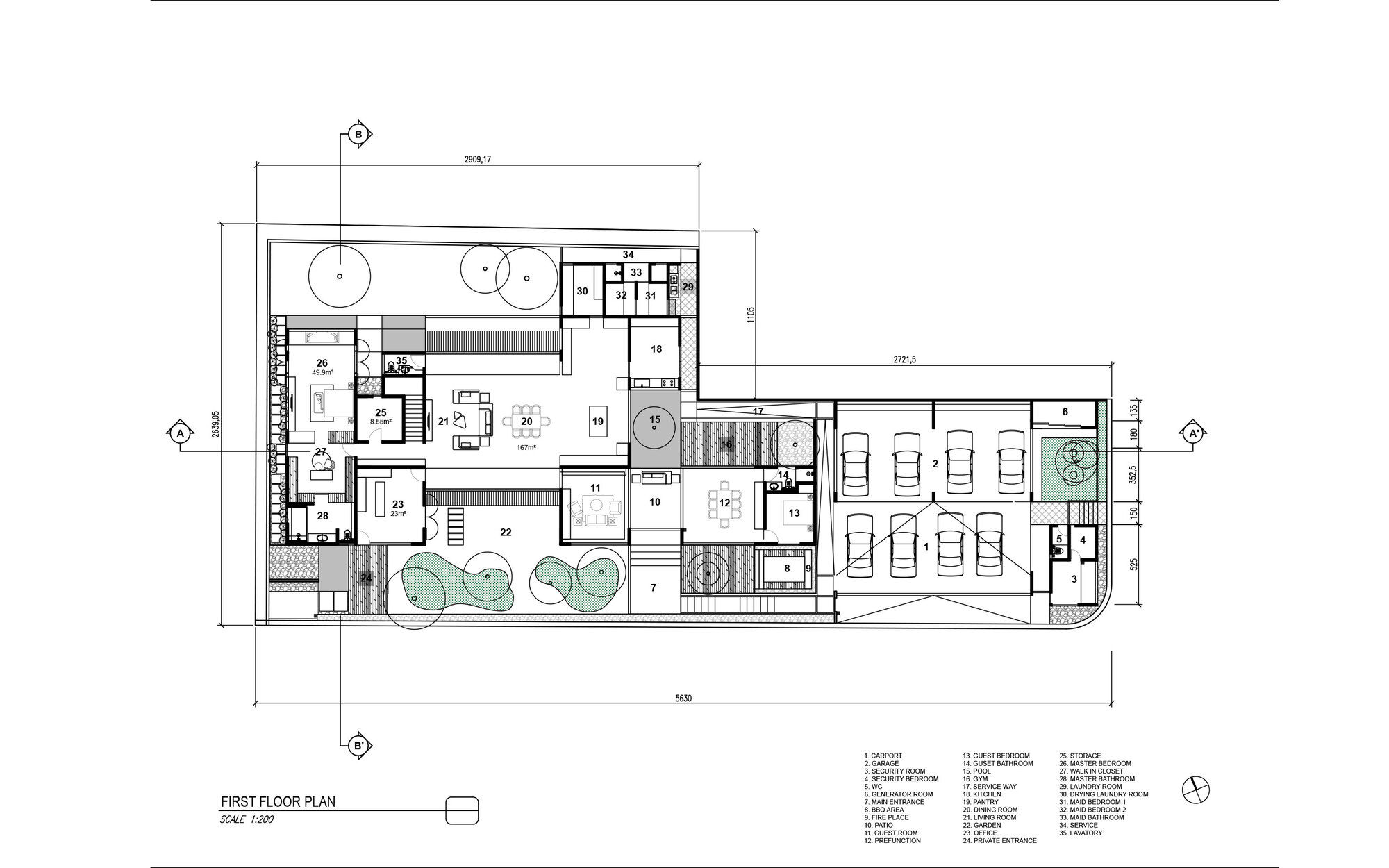
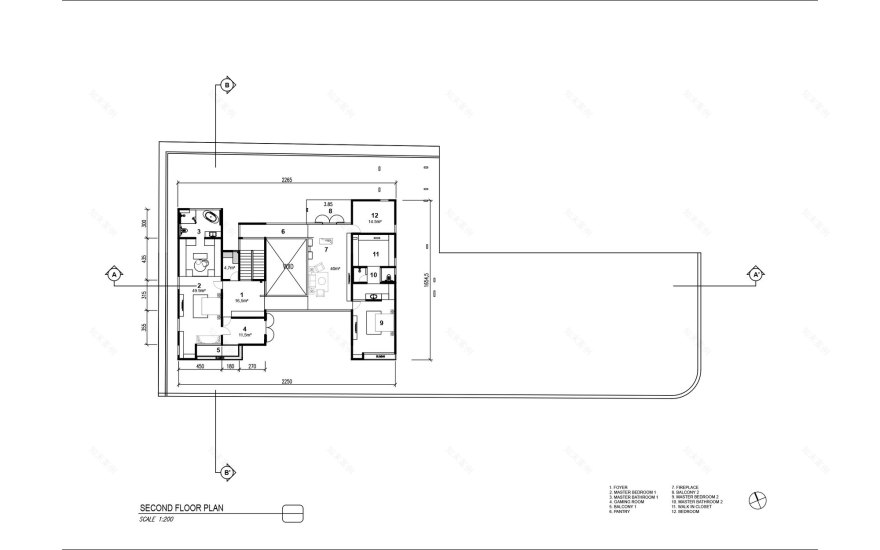
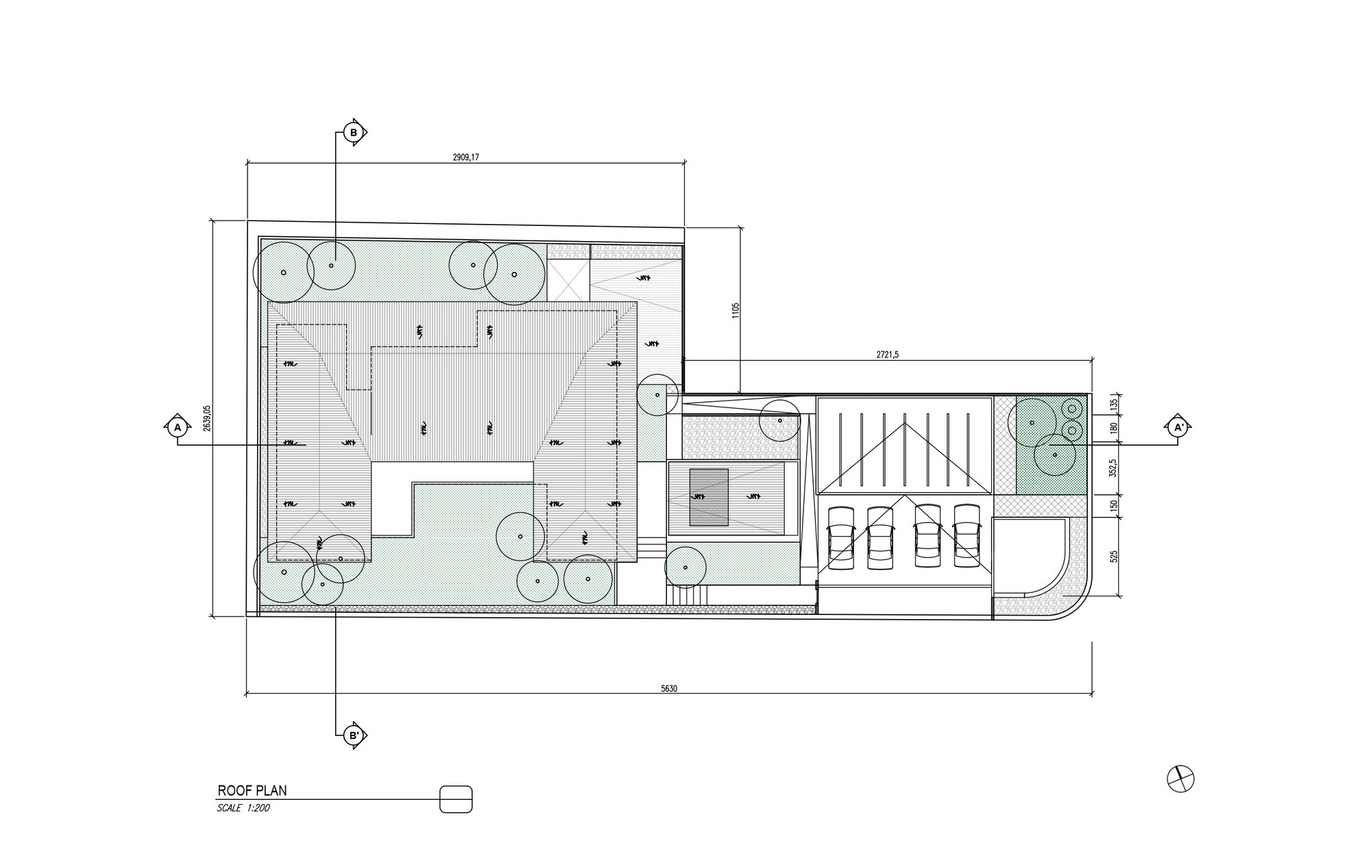
Text description provided by the architects. The Grande house, with its sprawling 56-meter façade, stood as a canvas for architectural creativity while also tackling security and privacy hurdles. Rather than opting for imposing barriers, we took a layered approach to manage sunlight and privacy, employing perforated metal plates, sun-screen louvers, stone walls, and lush vegetation. Each room was carefully crafted to encourage natural airflow and maximize daylight, striking a balance between openness and seclusion. Plus, we wanted to make sure the house looked grand from the get-go, hence the emphasis on horizontal design elements. Our design journey had its fair share of challenges, especially navigating the urban landscape with its privacy, noise, and dust concerns. To tackle these, we came up with a dual-fence strategy: a tall fence facing the slum area and a creatively layered one for the roadside facade, offering security without compromising on aesthetics.
We infused the design with innovative solutions to combat harsh sunlight, playing with adjustable louvers and greenery strategically positioned to provide shade. Harnessing the power of prevailing south winds, we enhanced natural ventilation, seamlessly merging solar control, landscape design, and ventilation techniques to create a laid-back living space. Incorporating renewable energy sources was a key aspect of our design ethos. We implemented a splash sprinkler watering system to reduce water waste and a greywater reuse system for garden irrigation. Additionally, a reflecting pool was strategically placed to lower air temperatures, thereby reducing the need for air conditioning.
Security was of paramount importance, leading us to develop a multilayer entrance system equipped with smart system alarms. Visitors are required to pass through three security checkpoints, each equipped with alarms, while shattered material atop the barriers serves as a deterrent to climbers. Fire prevention measures were carefully considered, with every room designed for quick evacuation. The detached layout ensures direct access to outdoor spaces such as the garden, balcony, or patio, facilitating swift exits within a minute in case of emergency.
Construction techniques focused on sustainability, with rainwater harvesting facilitated by a gutterless roof and building masses detached to minimize the risk of seepage. The floor plan prioritized seamless integration with nature, promoting cross-ventilation and a smooth transition between indoor and outdoor spaces. Locally sourced materials, including wood, natural stone, and travertine, were utilized to maintain a sense of regional identity. What sets this project apart is its relaxed ambiance coupled with a commitment to sustainability. Through thoughtful spatial planning and a deep reverence for nature, the Grande house offers a living experience that is both environmentally conscious and effortlessly chic.
Project gallery
客服
消息
收藏
下载
最近

























