知末
知末
创作上传
VIP
收藏下载
登录 | 注册有礼

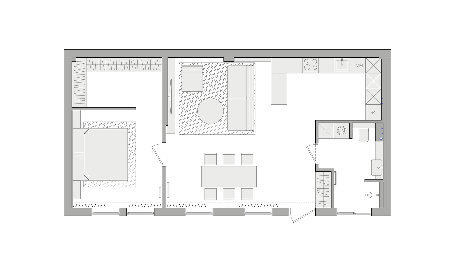
64㎡小空间住宅设计

2021/11/02 01:35:33
查看完整案例
微信扫一扫
收藏
下载
64㎡小空间住宅设计-0
64㎡小空间住宅设计-1
64㎡小空间住宅设计-2
64㎡小空间住宅设计-3
64㎡小空间住宅设计-4
64㎡小空间住宅设计-5
64㎡小空间住宅设计-6
64㎡小空间住宅设计-7
64㎡小空间住宅设计-8
64㎡小空间住宅设计-9
64㎡小空间住宅设计-10
64㎡小空间住宅设计-11
64㎡小空间住宅设计-12
64㎡小空间住宅设计-13
64㎡小空间住宅设计-14
64㎡小空间住宅设计-15
64㎡小空间住宅设计-16
64㎡小空间住宅设计-17
64㎡小空间住宅设计-18
南京喵熊网络科技有限公司 苏ICP备18050492号-4知末 © 2018—2020 . All photos and trademark graphics are copyrighted by their owners.增值电信业务经营许可证(ICP)苏B2-20201444苏公网安备 32011302321234号
客服
消息
收藏
下载
最近