查看完整案例

收藏

下载

翻译
Architects:António Costa Lima Arquitectos
Year:2023
Photographs:Francisco Nogueira
Team:Francisco Duarte Ferreira, João Ribeiro de Almeida, André Pinto da Cunha, Hugo Lopes Martins, Bernardo Lino, Luís Cardiga Santos, Paver Rosales, Teresa Cândido
City:Lisbon
Country:Portugal
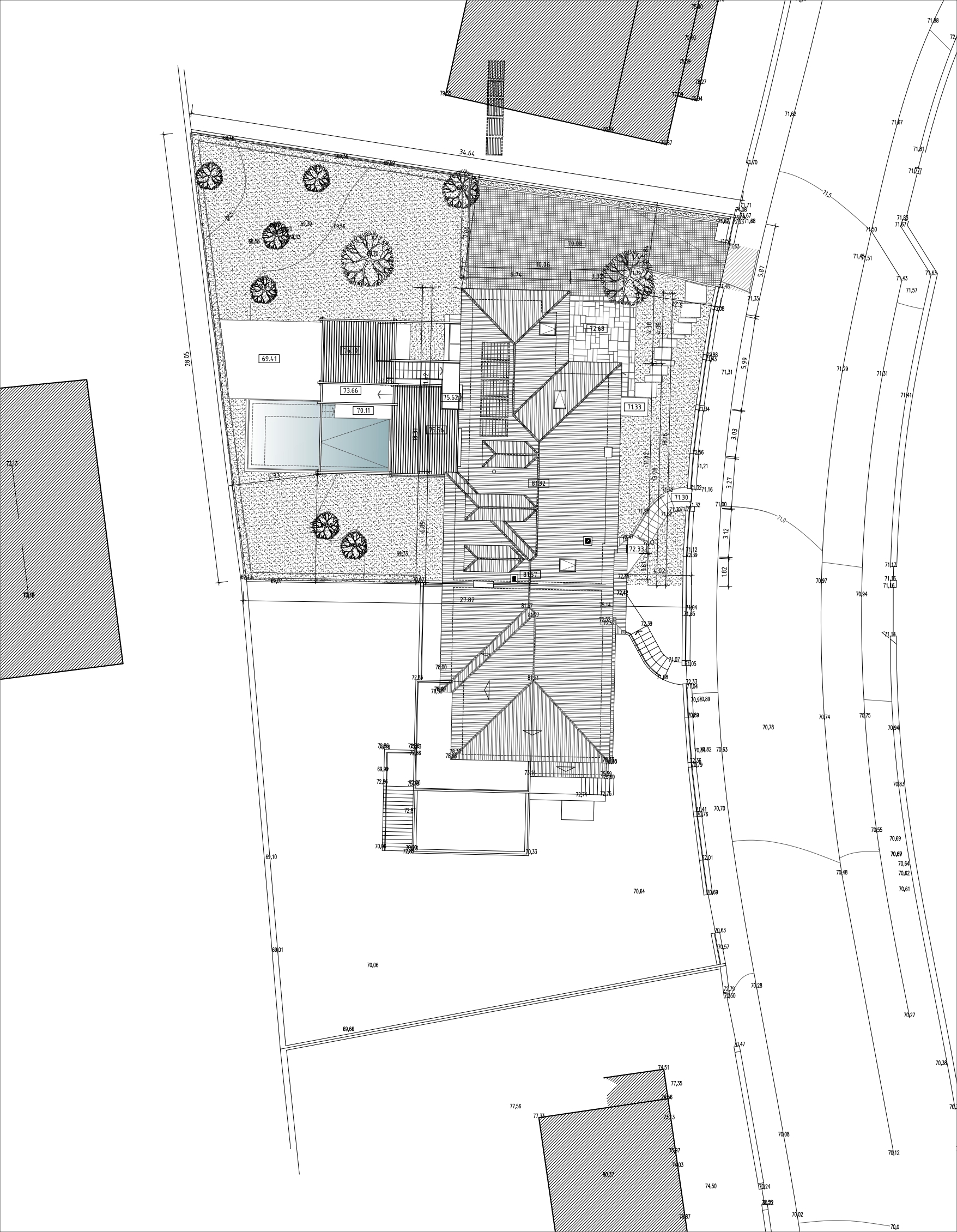
Text description provided by the architects. There is a clear difference between the two moments of the house: the pre-existing object renewal and the contemporary intervention. The idea is allied with the recovery of the most significant elements of the semi-detached condition: the main façade and the mansard roof shape.
The new structural skeleton assumes the essence of the extension, defining a set of new spaces in the exterior that recreate the relationship between the garden and the view.
In addition, the work includes the maintenance of the general interior space and the recovery of the existing finishes.
The project benefits the historic identity of the dwelling, establishing a past-present relationship between the contemporary extension and the old house.
Project gallery
客服
消息
收藏
下载
最近












































