查看完整案例

收藏

下载

翻译
Architects:Colajj
Photographs:Marcos A. Sousa
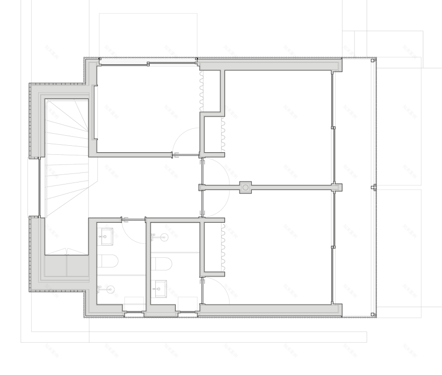
Text description provided by the architects. Casa do Lagar in Quinta de Recião is located in the lower part of a valley slope in Várzea de Abrunhais where the Varosa River runs its western limit. The work is a reformulation of an old wine press that is located in the center of the farm. The agricultural equipment supported wine production, with two large stone tanks that occupied practically the entire ground floor. On top of this floor were kept the typical utensils for winemaking. Connecting these two floors, on the back facade, there was a staircase attached to their perimeter. The order asked for this equipment to function as a rural tourism accommodation, with the capacity to accommodate 3 bedrooms to offer rest to those who decide to come and experience the framework of a life dedicated to grape production. The strategic position of proximity to the maintenance that the mill offered now serves as a house that privileges contemplative isolation surrounded by lines of vineyards and a backdrop of forest.
The 3 distinct materialities that can be identified in the exterior volumes of the house denounce its programmatic partition. The ground floor consists of double yellow granite masonry with a total thickness of around seventy centimeters and houses the social areas. Above this rests a volume covered in wooden slats with a roof that mimics the slope of the vineyard's terrain where the private spaces are distributed. The third volume is the vertical connection of the other two and is covered with slate bars applied vertically from the stock that Quinta de Recião uses in the maintenance of those that exist throughout the farm, where the guide wires are tied to the vineyard lines. The social floor offers a leveled relationship with the surrounding land. The robust and expressive stonework on the corners and entrance door was kept visible on the outside and insulated and plastered on the inside to ensure better thermal comfort. The kitchen serves as the back of the living room and has a small bathroom behind it, which is located under the stairs. The relationship between the kitchen and the dining room is open, and the latter is related to a living room configured in a U shape uneven on three steps. This shape results from a peripheral lintel that supports the lowest level of the house in the form of a bench. The two stone tanks were dismantled and found a new configuration in the threshing floor that now extends into the development of the living room to the outside through the house's largest opening to the river. The connection to the upper floor is via a fan staircase. A large skylight runs along the entire direction of this connection and also brings some natural light to the back of the living room below, and the bedroom hall above.
In the private area, from this hall, you can access the 3 bedrooms with a very open relationship with the outside. Two of the bedrooms have an interior balcony that increases their area, and another with a window across its entire south facade, which is positioned in the area with the highest ceiling height of the private volume. The interior finishes continue the materiality of other houses on the farm to reinforce an overall idea. The entire floor is made from handmade clay pieces, the walls are plastered, and white, and all the wood carpentry is visible. All the metalwork on the windows and shutters is dark to finish off the black screen on which the wooden covering is nailed, except for the house door and the narrow window that aligns with it in the moment of entrance, which are made of solid wood. The exterior arrangements bridge the relationship between the house and the slope of the land. In the entrance courtyard, sandwiched between the house and the support wall, there is a technical and storage area for outdoor furniture that conforms to a cobbled pavement together with the next support wall, and in descending continuity, there is a lawn, a tank, its support wall and the landscape overlooking the river.
Project gallery
客服
消息
收藏
下载
最近
































