查看完整案例

收藏

下载

翻译
Architects:Alexander Hills Architects
Year:2021
City:North Norfolk District
Country:United Kingdom
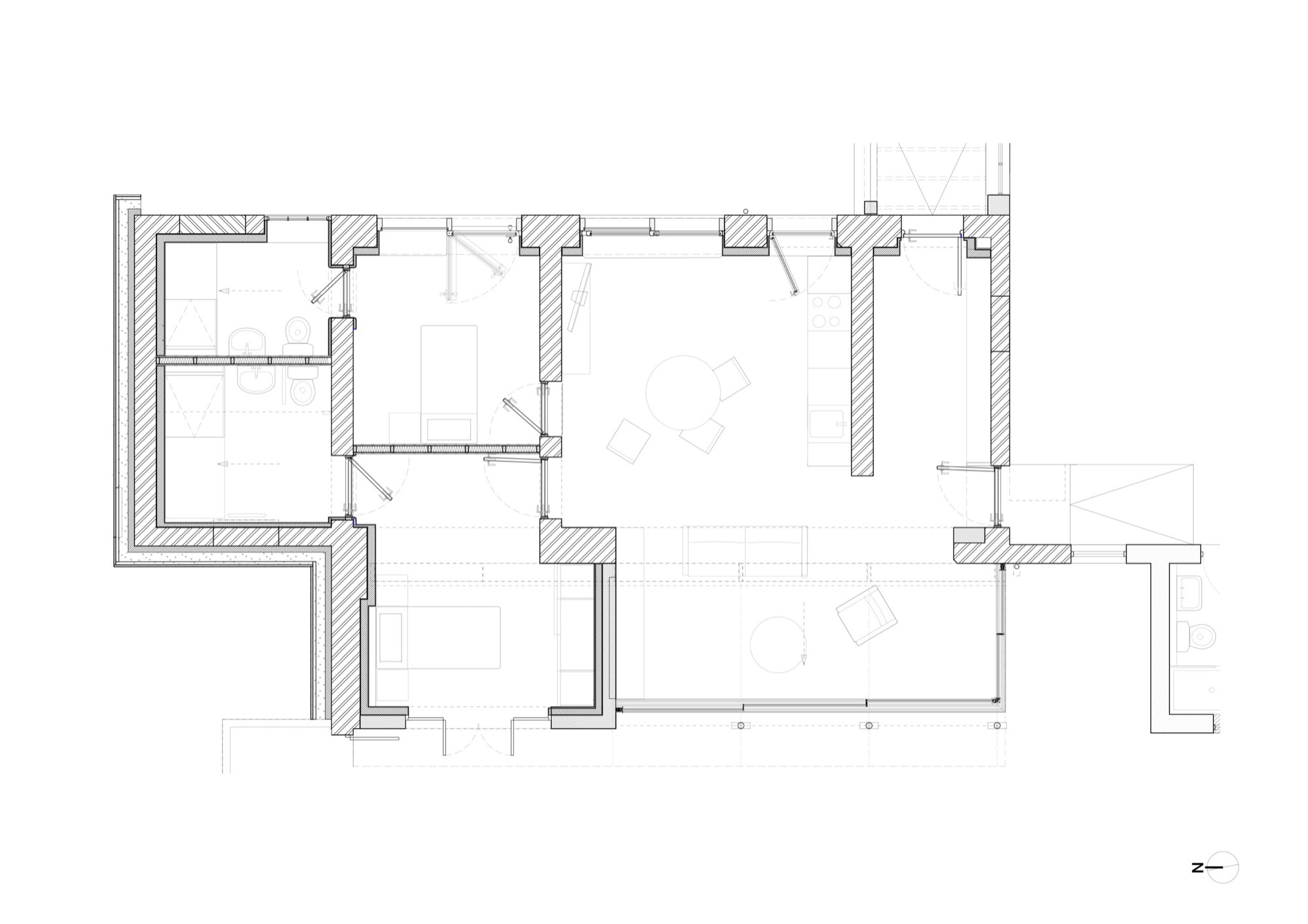
Text description provided by the architects. The initial brief for this farmhouse project on the north Norfolk coast was focused on converting the stables into level accommodation for the client’s wheelchair-bound father. As we progressed and studied how this operated with the rest of the building mass several impediments and issues were found, primarily focusing on the access, use, and vistas, thus this project grew to encompass multiple demolitions, new extensions, and a general reorganization of the ground plan.
Our response began with the creation of a new ‘backbone’ of access, around which everything else could be arranged. We proposed bringing visitors straight from the main entrance towards the garden, where the view down the Glaven Valley and the expansive Norfolk sun were best seen. We suggested moving the kitchen that was originally here to the heart of the main house by converting the stables and adding a generous new curved-roof pavilion extension. We also re-addressed the adjacent utility spaces, unifying the disparate lean-tos with another slight extension. Finally, we created a more harmonious facade for the driveway approach and added a small extension to the north.
Overall, these moves focused on creating a more effective arrangement of spaces while also maintaining fluidity between in and out, expanding the inside spaces externally and adding versatility to how spaces could function. They, most importantly, allow a wheelchair user to be able to participate in family life with ease and dignity and be able to connect with various activities on their terms.
We deliberately made the two extensions architecturally different. The proposed extension in the utility block, being more aligned with working farm processes, has a robust timber/ brick/flint treatment in line with the 19th-century vernacular, while the west one, inherently more familial and private, uses a rich patinated zinc-clad roof on timber columns with large sliding windows. Seen through the garden, the now-level zinc extension is at once purposeful and abstract: a lightweight contemporary form that introduces ambient light from the skylight and additional active light from the west-facing windows.
Project gallery
客服
消息
收藏
下载
最近


























