查看完整案例

收藏

下载

翻译
Architects:A3 Projects,Arch Cubic
Area:8640ft²
Year:2022
Photographs:David Yeow
Manufacturers:Hansgrohe,Bluescope,Knauf,Kohler,Roca
Lead Architects:Kenny Chong, Choon Sin Ho
Interior Designer:A3 Projects Sdn. Bhd
Mechanical and Electrical Engineering:Aquarius Engineering Consultants Sdn. Bhd
Lighting Designer:A3 Projects Sdn. Bhd
Project Architects:Suzy Lee Shun Shian, Syahrul Syazwani Shaharir
Program / Use / Building Function:Private Resident
Civil And Structural Engineering:B&L Engineering Sdn. Bhd
City:Ipoh
Country:Malaysia
Text description provided by the architects. The contemporary bungalow is situated on sloping terrain against a picturesque forest backdrop and overlooks a valley basin within the golf resort of Meru Valley, Ipoh. While the emphasis on fostering close family relationships was defined within the scope, the owners’ desire for a residence that would stand out from the conventional dwelling, with a degree of design variation as they navigated the spaces all contained within the double-story structure. Its physical form features bold cuboid forms, which are juxtaposed and staggered across conjured to capitalize its topography and incorporate natural elements within. A split-level approach was adopted, coupled with a deep ground-level recess, which allowed for the building to be visually elevated while also allowing greeneries to be carried inwards and throughout. Being a multi-generational friendly residence, ramp access and lift access are also provided for ease of access by the elderly.
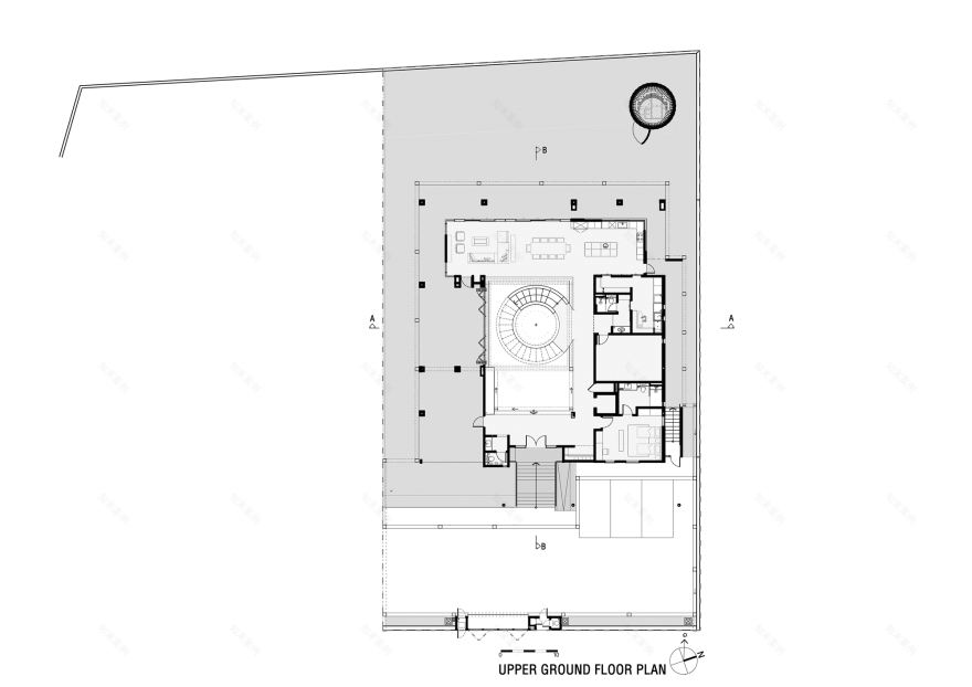
An atrium sits within, which houses the family hideout space, surrounded by a prominent staircase boasting its bold sculptural quality. The towering helical flight of stairs spans three stories and vertically culminates with a circular skylight that appears precariously perched over a razor-thin surface, imparting a tense reaction that gradually dissipates as the reflective pond counteracts and conveys a calming sense, further accentuated by an island of curated landscape.
Beyond its visual prowess, the atrium functions to illuminate the central space, resulting in varying characteristics of light throughout the day, and was designed with porous and lightweight confines through the introduction of large, recessed fenestration, allowing for constant, uninterrupted flow of cool breeze throughout the spaces within. In addition to the central skylight, a continuous row of skylights is also designed with a deep ceiling space in which vertical wall surfaces are utilized to reflect and diffuse natural daylight within the atrium. Fittingly, the spaces within are finished with in situ terrazzo, giving a seamless look that complements the voluminous space. Beyond that, ventilation slits and perforated aluminum screens are introduced throughout the space to address privacy concerns stemming from external thoroughfare along the front elevation.
The rooms on the first floor each feature different spatial experiences through the introduction of individual private courtyards facilitating cross ventilation and an abundance of natural daylighting. Located on a separate wing across the atrium, which features dedicated living and sleeping spaces, the main bedroom houses the owner’s parents and features a generous garden terrace with vertical greeneries adorning the wall across the bathroom, separated by rustic path and a ribbed glass partition allowing uninterrupted stream of daylighting. On the opposing side of the wing and connected via a bridge, the bedrooms of the owners and their daughter reside alongside a hobby room housing musical equipment and are fitted with warm timber flooring to reduce echo within. The spatial variation is further accentuated through a cozy rooftop garden space suitable for small-scale gatherings.
Rainwater harvesting features and photovoltaic panels are also introduced to reduce reliance on the existing power grid and complement the philosophy of sustainable development.
Project gallery
客服
消息
收藏
下载
最近
























