查看完整案例

收藏

下载

翻译
Architects:Architecture Lab Boum
Area:178m²
Year:2023
Photographs:texture on texture
Manufacturers:Louis Poulsen,Kitchen Lino
Lead Architects:You Hong, Kim
Construction:Jungdam Architectural Design & Construction
City:Yangpyeong-gun
Country:South Korea
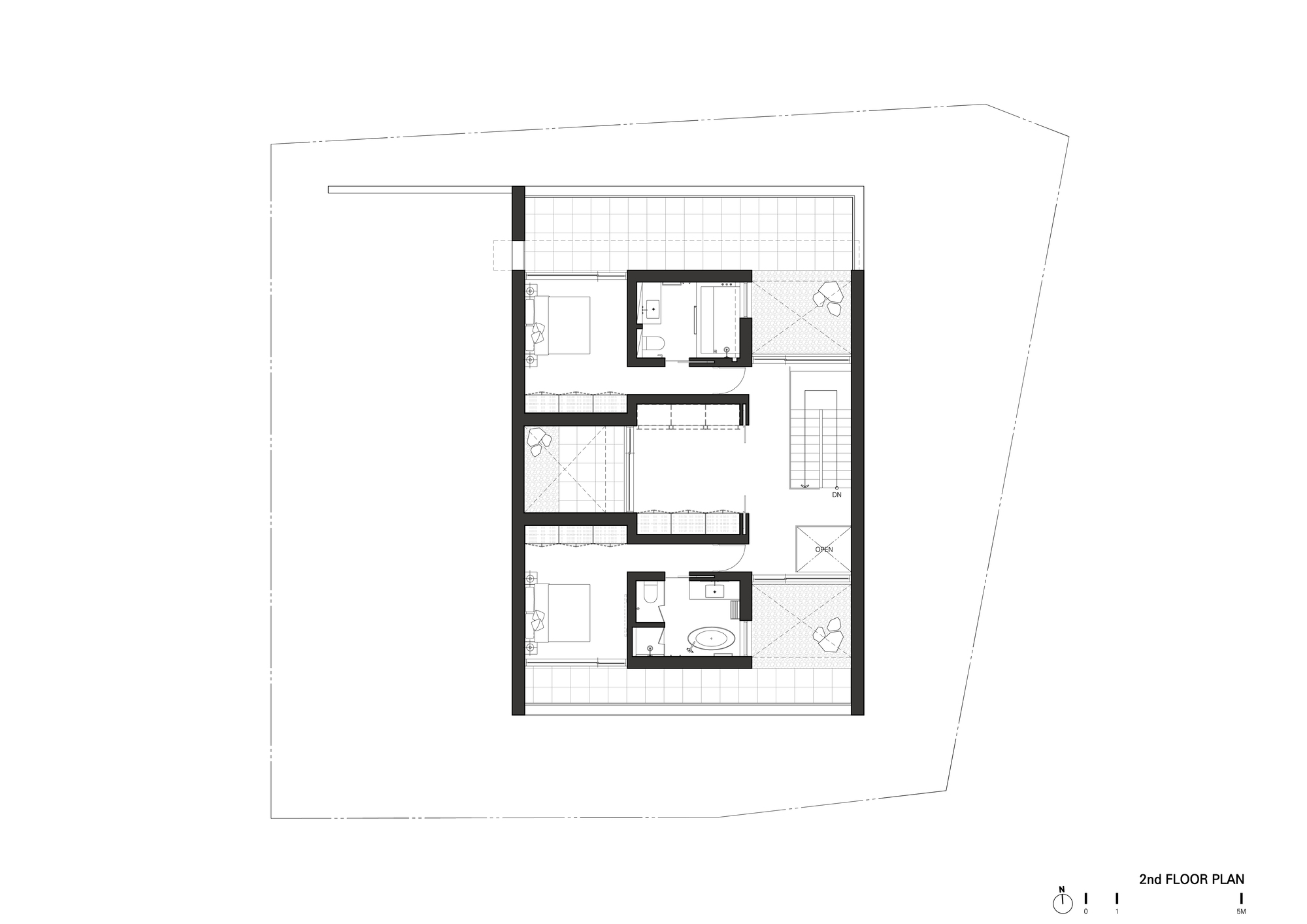
Text description provided by the architects. A Weekend House, Meditation of Four Colors - A weekend house for two couples. The name of the house that the four people built together, “Sasaek “ means four colors and meditations in Korean. It is a name that perfectly suits this house, which has a square floating mass with secret courtyards.
Being the simplest box - Hoped that the weekend house would serve as a vessel to hold the life there and the things necessary for it. Engineering solutions to create 4.5 meters of cantilever for columnless terrace space and exposed concrete fences that create panoramic landscapes are invisible. The architectural form is extremely neutral, so it does not reveal itself or say anything.
A surging landscape - Looking at the yard from the party room on the first floor surrounded by transparent curtain walls, exposed concrete fences, and long eaves "crop" the scenery along the line of sight, and the landscape is pushed inside with cinematic aspect ratio.
Leave the architecture behind - “Minimal mass, wide viewing angle, spacious kitchen and living room, and living space expanded into the yard...” The requests of the four clients are written on the first page of the meeting minutes from the first meeting two years ago. Now, two years later, it seems somewhat like that. And as soon as I saw the next line, I couldn't help but smile.
“Eat, Play, and Be happy.” If you look at the client's snapshots posted on social media, they are better than any architectural photos taken by a professional. Photos of people partying, swimming, having fun, and just being happy. I also feel so good when I see traces of architecture in the background. As expected, architecture is the best when it comes to background.
Project gallery
客服
消息
收藏
下载
最近


























