查看完整案例

收藏

下载

翻译
Architects:N+P ARKITEKTUR
Area:150m²
Year:2023
Manufacturers:Troldtekt,Krone Vinduer A/S,Petersen Tegl
Lead Architect:Jesper Korf
Engineering:Møller & Jakobsen ApS
Architect:Ole Brandt
Country:Denmark
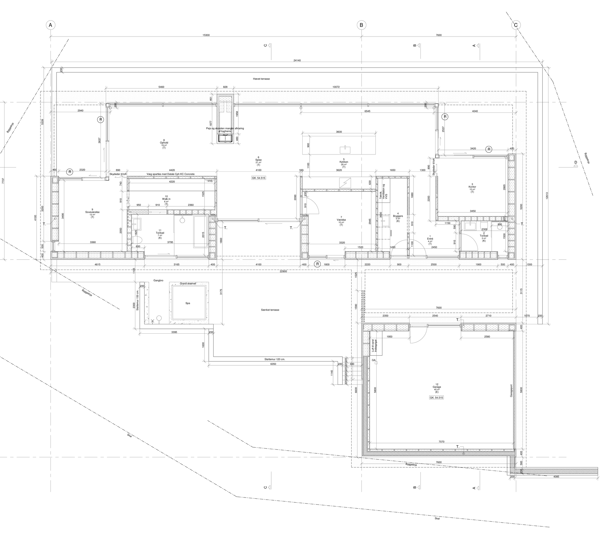
Text description provided by the architects. Lysal Pavilion represents a sublime integration of modern architecture and the surrounding nature in the idyllic Lundby Krat, stretching beautifully southeast of Aalborg in Denmark. This unique residence is not just a home but almost a living symbiosis between human-made structures and the beauty found in the surrounding landscape. Located amid a clearing in the forest, Lysal Pavilion stands as an elegant and inviting sanctuary from the busy world outside.
The architecture is thoroughly thought out with a focus on opening up to the presence of nature. This is reflected in the villa's design, where transparency and integration with the surroundings are central themes. A solid bastion in concrete forms the foundation of the villa, which seems to almost merge with the earth on which it rests.
Atop this base are two boxes, beautifully clad in wood, which appear to float above the landscape. These two separate units are connected by an elegant horizontal band in metal, which not only binds them together but also adds a characteristic finesse to the entire structure. From the inside of the villa, large windows open up to a panoramic view of the forest's changing colors and light.
This creates a unique connection between the indoor and outdoor spaces, allowing residents to enjoy the changing moods of nature throughout the year. Overall, Lysal Pavilion represents a sublime fusion of modern architecture and nature. It is a place where human intervention in the landscape not only respects but also celebrates the beauty that surrounds us.
Project gallery
客服
消息
收藏
下载
最近























