查看完整案例

收藏

下载
名称: Balint House
类型: Modern Contemporary
卧室: 3
卫生间:4
面积:8,288平方尺。
地段:12,916平方英尺
建造时间:2014年
建筑师: Fran Silvestre Architectos
摄影: Diego Opazo
地点: Carrer Rosinyol, 42, 46117 Bétera, Valencia, Spain
卡萨-巴林特的住宅在视觉上沉浸在一个连续的空气动力学外墙中,通过椭圆的痕迹将内部空间最大化,同时将对场地的体积影响降到最低,卡萨-巴林特使人们的目光模糊了这个地方的地形,但对这个真正崇高的结构的弯曲性质和横向限制表示敬意。
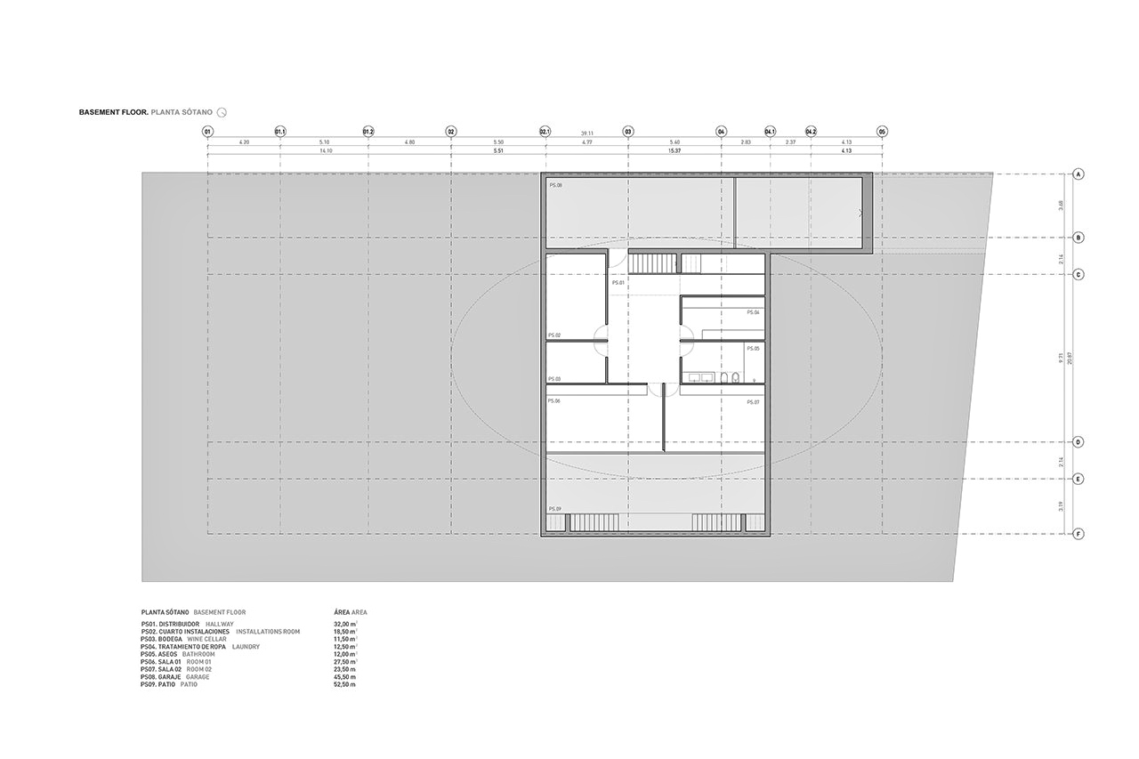
房子的内部空间是通过一个中央空洞来衔接的,沟通的核心就在其中。服务空间、设施和厨房,使底层向花园开放的弧形布局得以正交。上层的卧室和地下一层向庭院开放,为房子提供了有限的空间。
底层的混凝土结构由四个支撑物支撑着盖板,盖板上悬挂着夜间区域的地板。这个结构由一个整体的通风外墙覆盖,该外墙由固体表面制成,具有简单的弧度,不需要热成型,就能适应作品的几何形状。其余的材料从白色到黑色再到各种灰色。这个令人难以置信的建筑的所有方面都叠加在一个单一的叙述上,即这个转变的环境是一个放松和感知建筑特权的排他性的空间。
高清原图.rar
售价: 30 金币
[
购买
]
客服
消息
收藏
下载
最近































