查看完整案例

收藏

下载
名称:Flying Point House
类型:Modern Contemporary
卧室: 4
卫生间:4间
面积: 3,592 平方英尺
地段:1.5英亩
建造时间:2014年
建筑师:Steven Harris Architects
摄影:Scott Frances / Otto
地点:1285 Flying Point Rd, Water Mill, NY 11976, USA
一个壮观的玻璃盒子漂浮在汉普顿的海滨沙丘上,这个超现代的豪华住宅是用精美的混凝土盒子在两个桥墩的顶部独特地建造的。这个建筑奇迹的一个桥墩是切面的,逐渐缩小到最小的足迹。另一个,部分嵌入沙丘的自然落差中,大到足以容纳车库。
作为一个令人惊叹的4个卧室的现代石制建筑,它可以毫无阻碍地看到大西洋和梅考克斯湾的景色,其结构本身是简单的,几乎是僧侣式的。玻璃墙,其中一些以液压方式退到地板上,把外面的景色带进来,让人既能看到南面的海洋日出,又能看到北面的海湾日落。
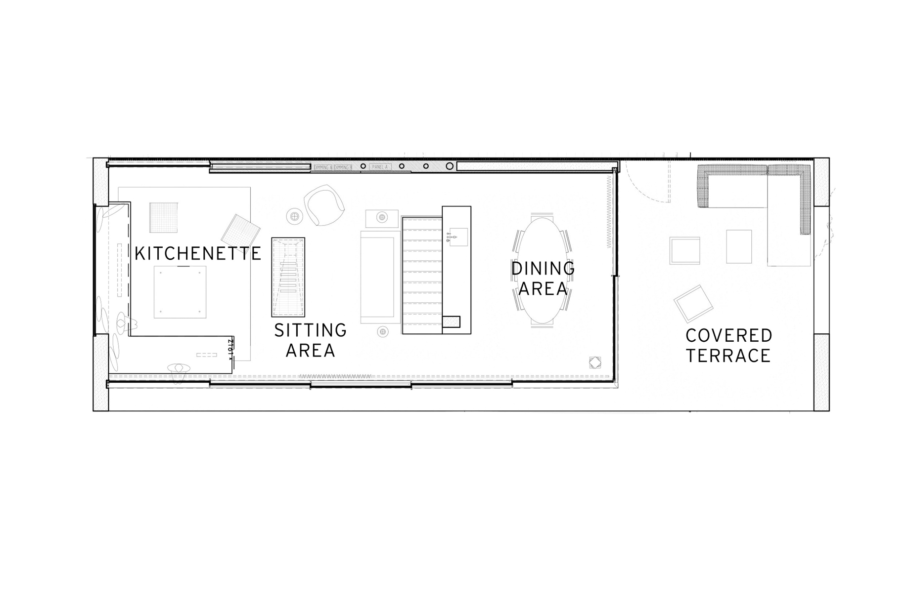
美丽的厨房是一个开放的平面图,包括带壁炉的客厅,媒体室和用餐区,都可以看到广阔的液体背景。东边的主楼设有带壁炉的睡房,豪华的主浴室和充足的内置壁橱。两间带浴室的卧室和西边的独立客房,与房子的其他部分隔开,有很好的间距,提供隐私。
最先进的系统包括地热暖通空调系统,自动窗帘,Lutron照明和Savant自动化系统,可以从任何地方监测和控制房子。下面的车库可以容纳两辆车。在50英尺的无边泳池外,有一个独特的600平方英尺的泳池屋,里面有壁炉、小木屋厨房和下面的石窟,提供水族馆般的泳池景色。这个房子真正重新定义了你在海滩的时间。
高清原图.rar
售价: 30 金币
[
购买
]
客服
消息
收藏
下载
最近








































