查看完整案例

收藏

下载

翻译
Architects:IGArchitects
Area:65m²
Year:2023
Photographs:Ooki Jingu
Lead Architects:IGArchitects Masato Igarashi
Structure Engineers:Yousuke Misaki EQSD
Construction:YASUGORO INAGAKI Inc., Toru Inagaki
Hardware Consultants:Susumu Murata
City:Saitama
Country:Japan
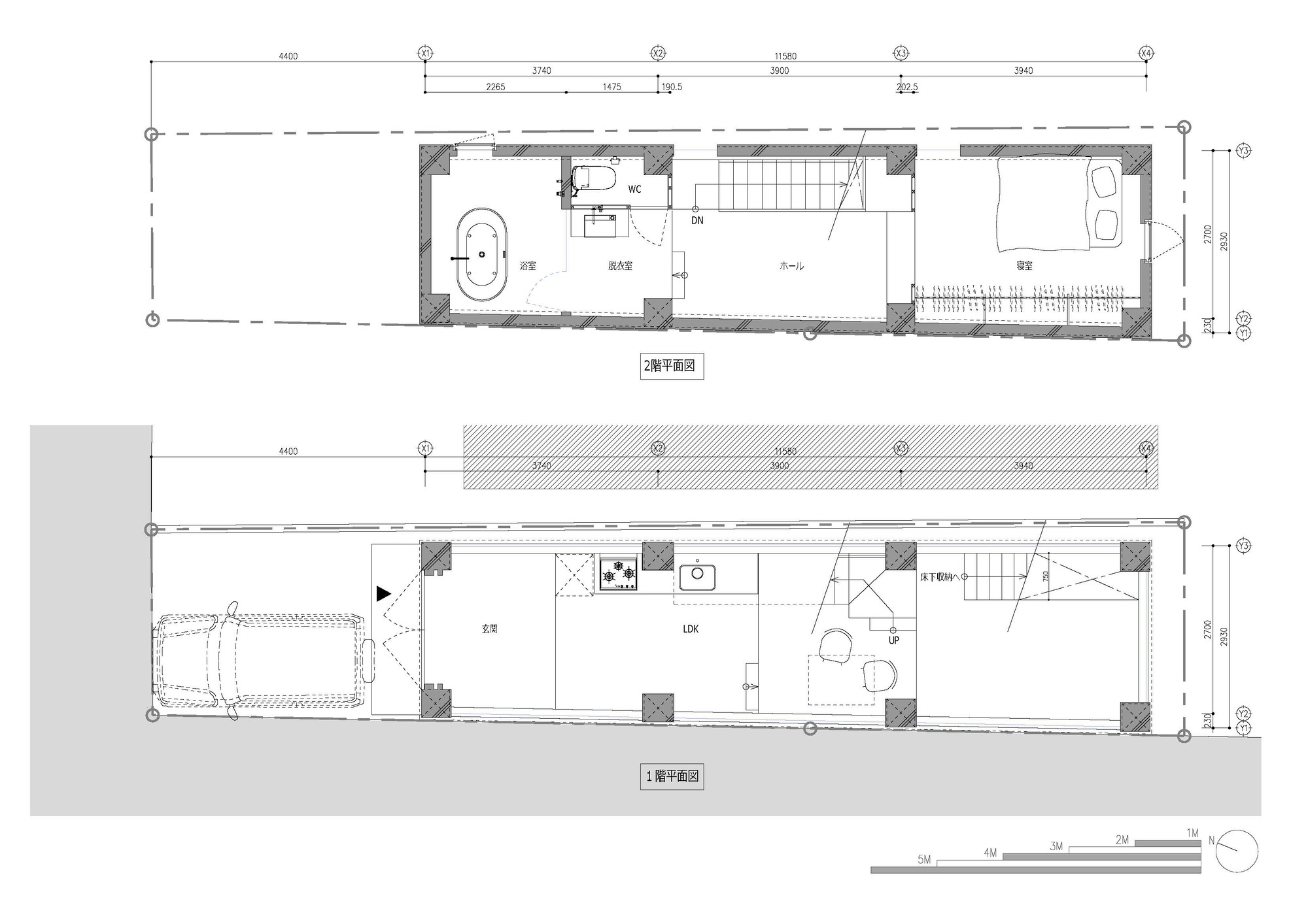
Text description provided by the architects. This house for a young married couple is built on a long and thin site with a frontage of 2.9m and a depth of 16m, which was left over as a result of road expansion. By making use of the long depth of the building, a relationship between the interior space and the exterior is intended to be made, which could be possible only with a 2.7m frontage.
The structure consists of 8 pillars that lift the concrete box. The first floor can be used flexibly, and the second floor is a private space. The South, North, and West sides of the site are open, and natural light hits from many directions. Taking advantage of this condition, windows are installed on all four sides of the building. Entering the floor that connects to the ground, the space feels like inside a cave, with tall walls and large pillars. However, as it goes further inside, the windows get closer, and the space feels closer to the outside. The relationship between the inside space and the outside can be controlled by the placement of the floors and windows, which makes the living space free and open. In contrast to the first floor, the windows and ceiling height of the second floor are limited to create a cozy space. The intention was to create a state in which these two spaces correspond and complement each other.
In this house with a frontage of 2700mm, the moving space is also a living space, and scatted furniture and floor level differences provide ambiguity to the space. The space by the kitchen can be a dining area, a space a bit further away from there can be a hallway, and then a living area. In this way, there is no clear separation of the space, but they interact with each other, and the experience continues further to the outside.
Because of the minimal frontage, the building can take the outside environment directly to the inside, creating a soft atmosphere inside even though its structure is made from strong concrete. The atmosphere inside of the box changes in various ways by embracing weather, temperature, and natural light.
This building is composed of simple geometry, yet with a floating, heavy-looking mass that creates a seemingly uneasy appearance. The gaps in this building, as if it were pierced by a braking part of the box, are the strong appearance of the house that protects living from the outside environment and rich expressions created in internal space by flexibly taking in outside elements to coexist. Even though it’s built in a small site in an urban area, it is possible to create a feeling of openness and richness beyond the actual size of it just by adjusting levels and relationships with outside space. This house shapes possibility and hope in such a way.
Project gallery
客服
消息
收藏
下载
最近
































