查看完整案例

收藏

下载

翻译
Architects:Evoke International Design
Area:3900ft²
Year:2018
Photographs:Janis Nicolay Photography
Manufacturers:Blu Bathworks,Bocci 84.1,Corian Sink and Counter,Juniper THIN System,Pablo Swell,STUV 16 Cube,Salari Salsa Swing
Lead Architects:David Nicolay
Design:Considered Design Inc. / Julian Pattison, Mauricio Marcantonio, Dean Collingridge
Interior Designers:Evoke International Design
Structural Engineers:Chalten Engineering
Builder:TM Builders / Tom McColm
Lighting Designers:Evoke International Design
City:Whistler
Country:Canada
Text description provided by the architects. This house is 3,900 ft2 over three levels in Whistler, BC. The owners are an active family of four and relocated from Vancouver to make Whistler their home. The primary focus was to develop a design that would support the outdoor activities and lifestyle of the family while ensuring that a sense of permanent - rather than recreational - home was created. The site was heavily sloped and there was also a desire to connect indoors and outdoors on multiple levels. Southern exposure was to be utilized on the upper floor, to bring much-needed sunlight deep into the space on long winter days.
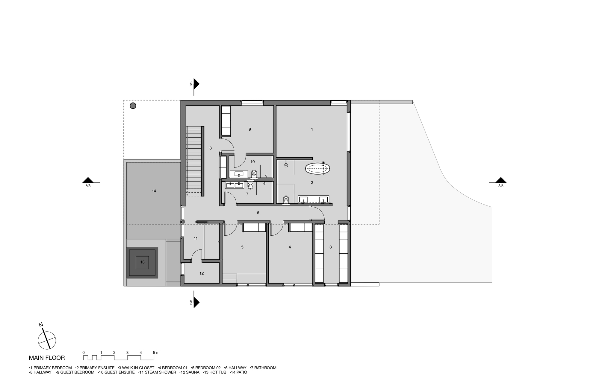
The lower floor is primarily subterranean with house and garage entry forming the basis of the programming. A large glass pivot door opens the full width of the entry to provide a welcoming arrival. A ski locker area organizes the various gear the family uses almost daily. The main floor has three family bedrooms and one for guests. The master bedroom is open to the ensuite, allowing for views of the mountains, whether in bed or in the bath. This level also has a spa area complete with a steam shower and sauna, which connects to the grade on the forest side, where a covered outdoor space and hot tub reside.
The upper floor is a large open gathering space, with kitchen, dining, and living areas all sharing the sunlight from the south-facing roof garden, as well as the mountain views. The entire living area was clad in wood paneling, a subtle nod to log home life, providing the feel of a mountain home in a modern envelope. A wood-burning stove pays homage to the cabin. A home office and TV room, with detailed views of the mountain forest, complete the programming. A large wall-to-wall and floor-to-ceiling picture window in the TV room visually connects the building to the site with framed views of birch trees in the forest.
Located on a sloped mountain site, the biggest challenges were: one, connect the house to the outdoors on all three levels; two, provide south-facing outdoor space that could connect the indoors to the outdoors; and three, embrace the variety of viewpoints the site provided while also bringing in an abundance of natural light. The following design solutions were utilized to meet these challenges:
1. The house was sited so that lower-level entry points were close to street-level grade in to provide pedestrian entry. The main floor is aligned with the grade at the west mountain slope, providing a physical connection to nature. The upper floor connects to south south-facing roof garden. 2. The desire to enjoy warmer weather was achieved through a roof garden connected by large sliding glass panel doors. 3. The west views capture the steep slope of the mountain forest. The east views to ski hills beyond are framed through wall-to-wall glass in the upper floor living areas. The south provides views and much-needed daylight into the space during the winter months.
Project gallery
客服
消息
收藏
下载
最近


































