查看完整案例

收藏

下载

翻译
Architects:Archiplanstudio
Area:280m²
Year:2023
Photographs:Simone Marcolin
Lead Architects:Diego Cisi, Stefano Gorni Silvestrini, Jacopo Rettondini, Oreste Sanese, Francesca Brescia, Alfonsina Benetti
City:Guastalla
Country:Italy
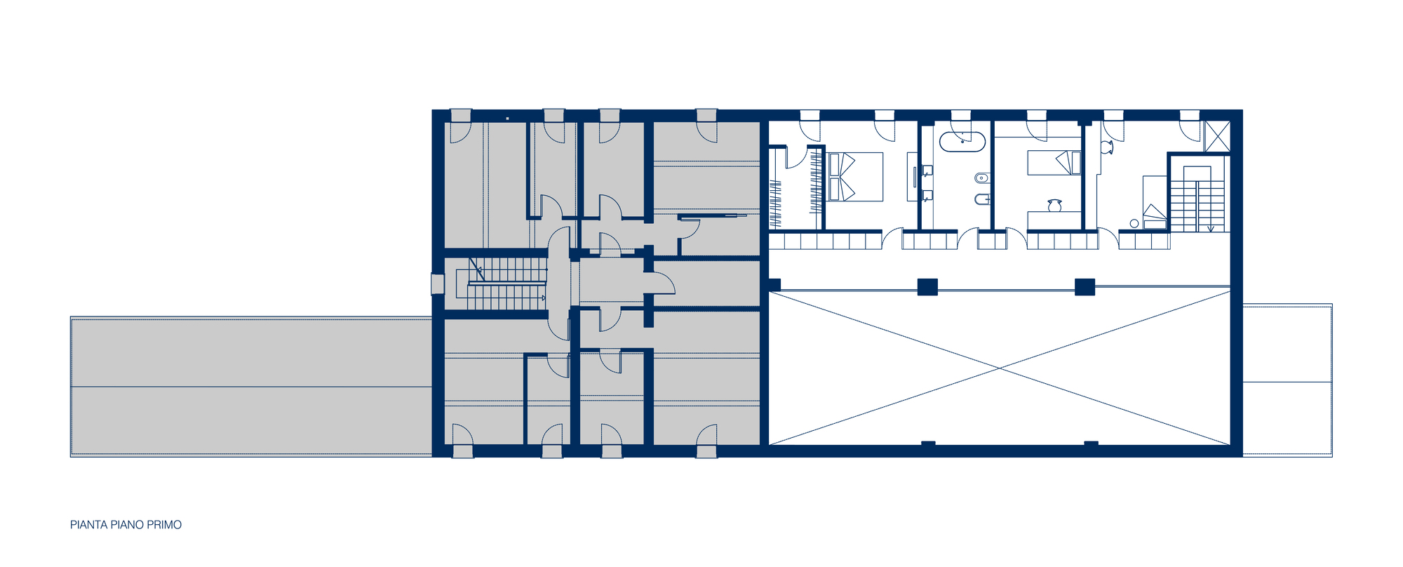
Text description provided by the architects. The project involves the refurbishment of an old barn.
On the ground floor, the large void finds its dimensions and meanings by the furnishing elements that define the ritual places of living.
Upstairs a large wardrobe is configured as a retaining wall and as an access threshold to the bedrooms and the bathroom.
The plasters are fixed in their state of decay, giving sensuality to the original walls and shaping an abstract concept such as time.
Project gallery
客服
消息
收藏
下载
最近































