查看完整案例

收藏

下载

翻译
Architects:Ambiance Architectural Studio
Year:2022
Photographs:Arash Akhtaran
Lead Architect:Arash Shahidi
City:Shiraz
Country:Iran
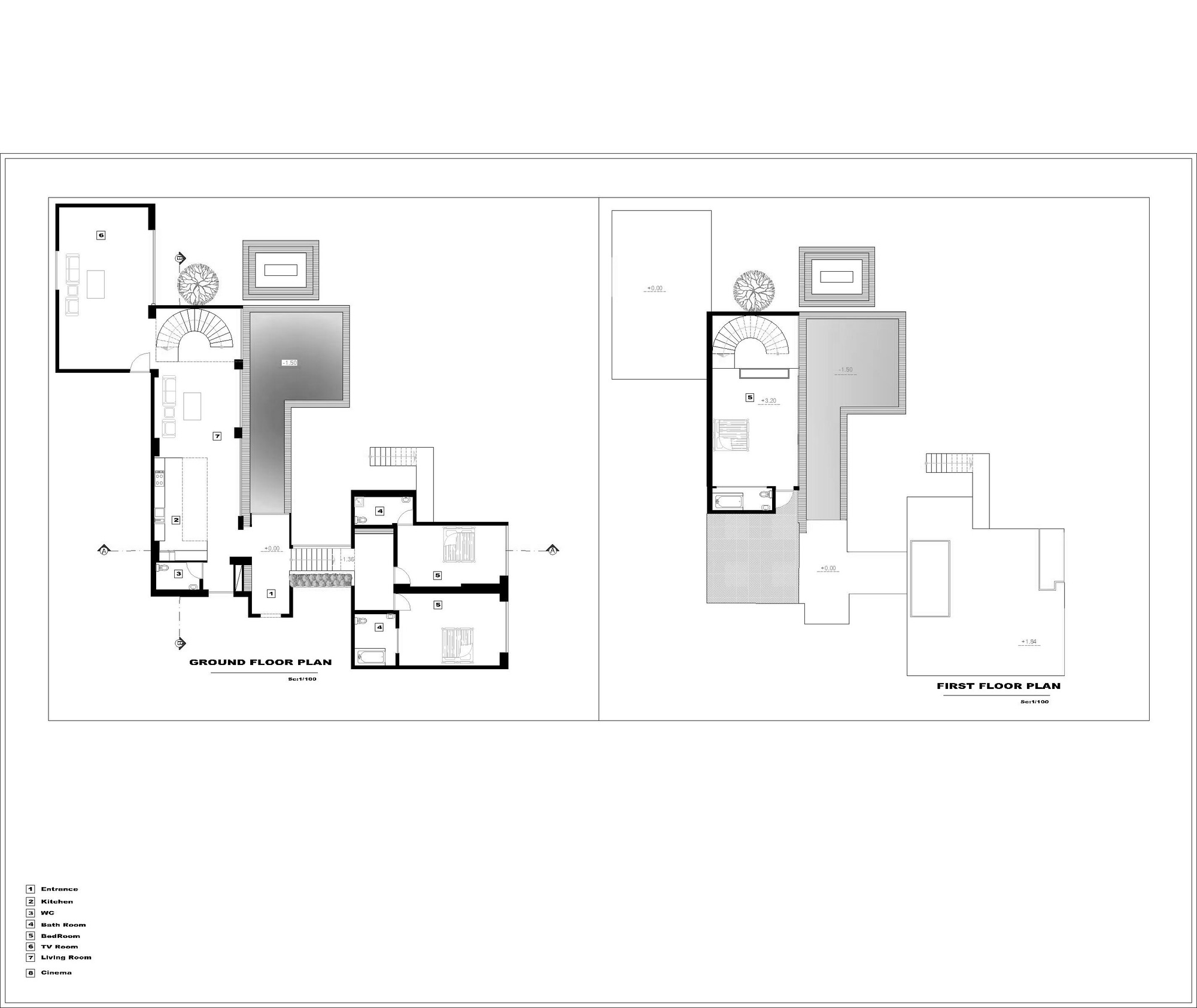
Text description provided by the architects. The site of this project is located in the suburbs of Shiraz and along the Rokni River, which is mentioned in Hafez's poems. The villa, with an approximate area of 400 square meters, has been designed and built in a garden of 3700 square meters with old trees without cutting or damaging even a single tree. Considering that the existing trees are about a hundred years old, the designer decided to place the villa in a continuous volume in the body of the garden and between the trees in such a way that the border between all the spaces and the green space outside is minimized. Interact and access each other as much as possible.
The land consists of two main lines that divide the garden into two halves. The bedrooms are on the lower level and directly facing the garden. Then, there is a transparent box that connects the lobby and the rooms and contains the stairs between the two levels. After that, there is the main lobby, which overlooks the pool and the garden from one side and leads to the main door of the garden from the other side. The main hall, guest service, kitchen, and living room are connected to the lobby on the next level, and finally, the room is placed on the lower volume through a window that contains a spiral staircase. The use of this room is for relaxation and study, and, of course, the overall view of the entire site is considered.
One of the design challenges was the placement of the garden in the main flood path. Directing and transferring water unconventionally was done by an old channel to the adjacent garden. Designing and implementing a flood dam and directing water in such a way that it serves the garden's design and access to it for clearing and control at any time is one of the important actions of the design and implementation team in this project.
The cream-colored rubble stone material, which is very similar to the age of the garden, was chosen as the main material of the body, and flat cement was chosen as the second material on the walls of the facade. The use of metal with rust has been done in such a way that in a moment of history, time has stopped, and these metals have remained in the same form at that moment forever.
The designer's effort in designing and making these volumes, as well as door handles and locks, chandeliers, barbecues, sinks, and faucets in the outdoor space using rusted metals but with a different and mechanical approach as independent members added to the body of the garden. It has created a subtle and sweet contradiction in the audience's mind as if these bodies and objects, despite their inherent strength and solidity, have taken refuge in the lap of the garden and its ancient nature and are even trying to serve it.
Project gallery
客服
消息
收藏
下载
最近


























