查看完整案例

收藏

下载

翻译
Architects:lilin architekten
Year:2023
Photographs:Lucas Peters Architektur Photography
Landscape Architecture:Cadrage Landschaftsarchitekten
Structural Engineering:HTB Ingenieure AG
HVAC:Manzano Engineering GmbH
Electrical:Gutknecht Elektroplanung
Building Physics:Gartenmann Engineering AG
Project Management:Jana Hausknecht
General Contractor :bau construct services ag
City:Horgen
Country:Switzerland
Text description provided by the architects. The residential neighborhood lies like a green island in the municipality of Horgen between the main roads of Seestrasse and Einsiedlerstrasse.
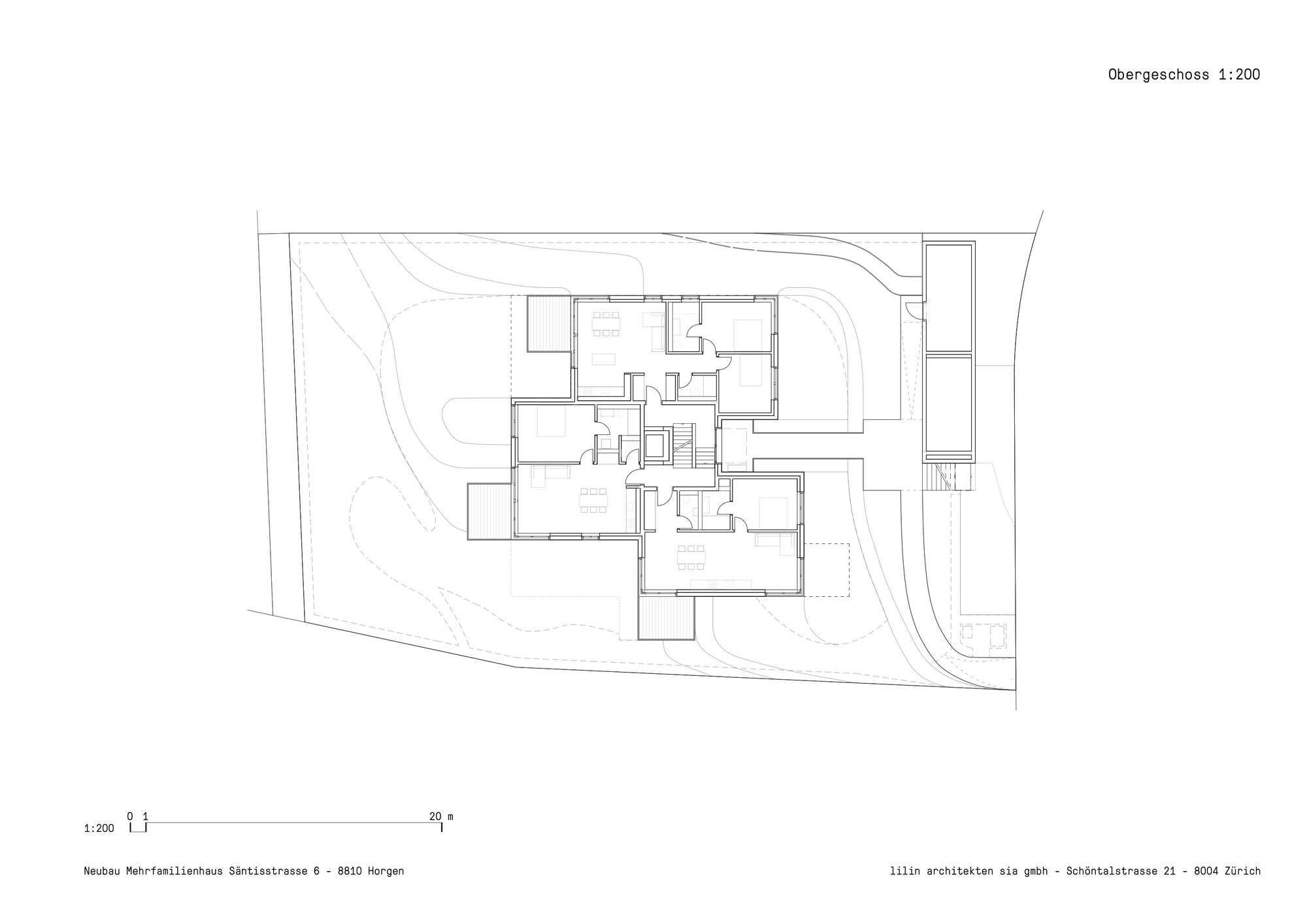
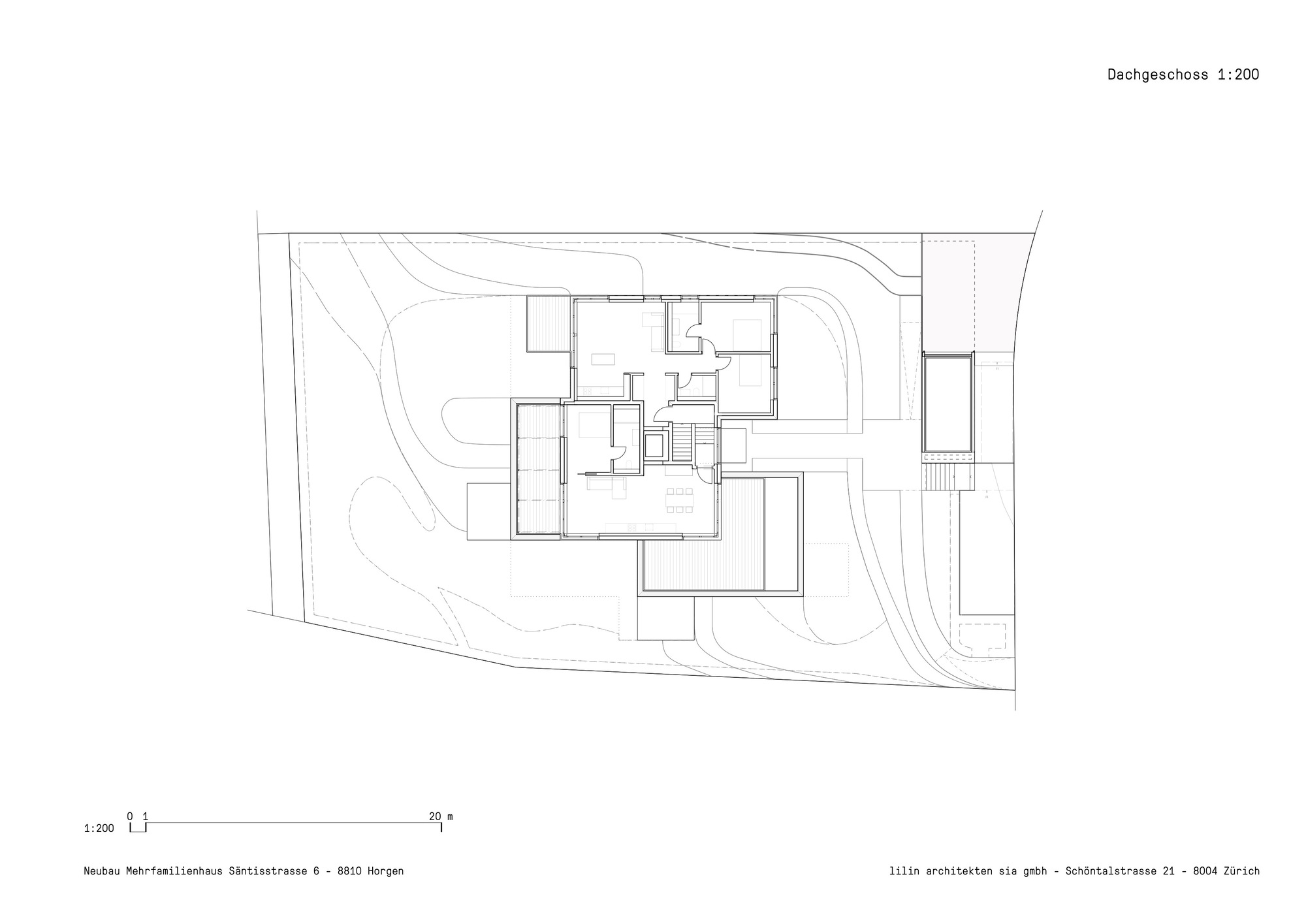
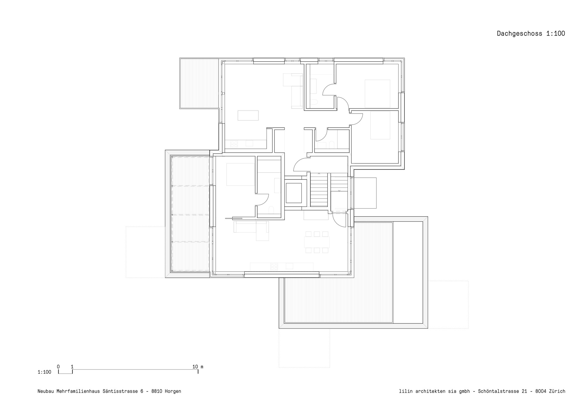
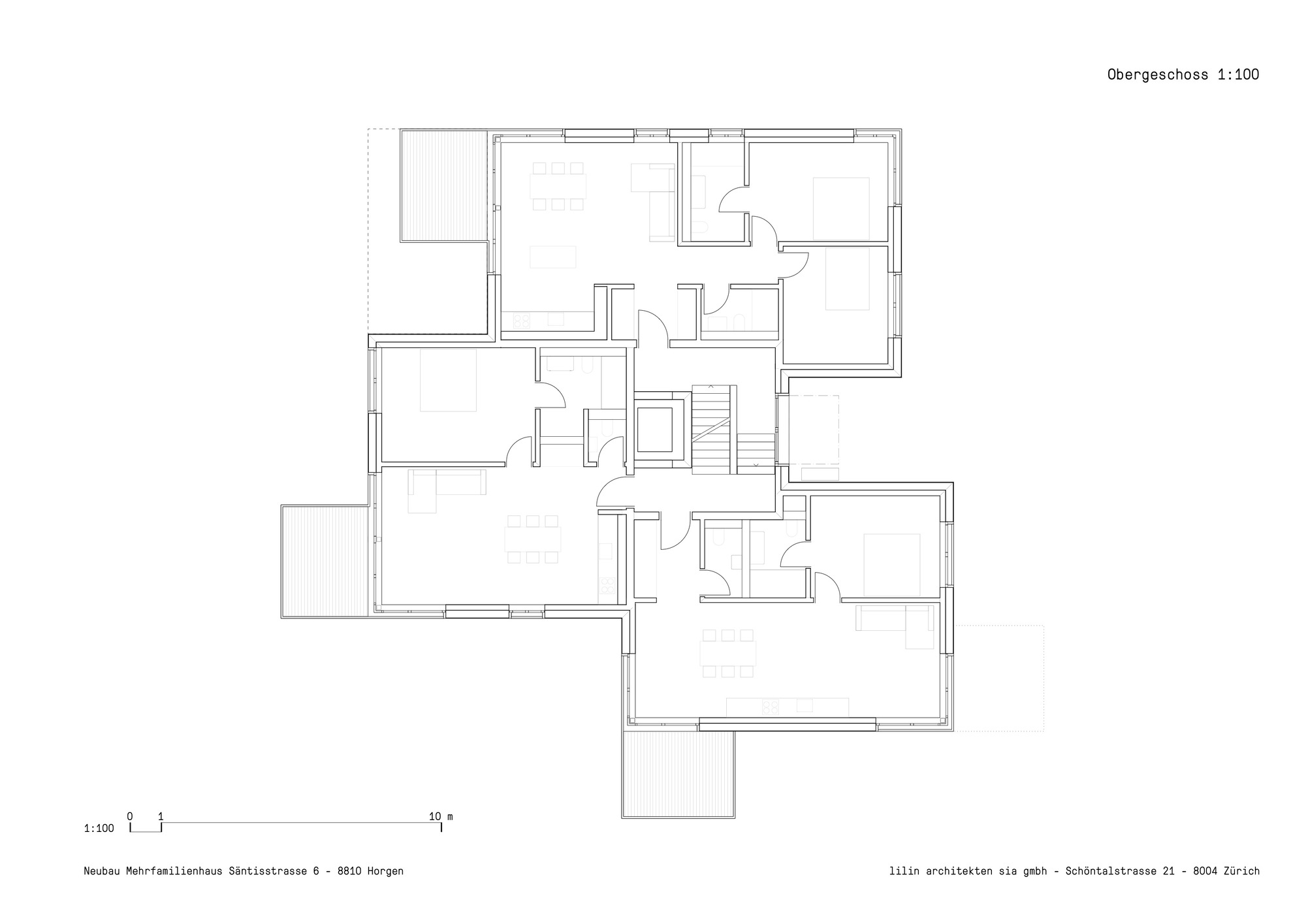
The plot, whose terrain slopes diagonally on two sides, offers an unobstructed view of Lake Zurich and the Saentis to the north, while the neighborhood access road is located on the hillside to the south. To do justice to the premise of optimal utilization and the small-scale appearance of the neighborhood, the building is divided into three cubes with staggered height levels.
In the tradition of a hôtel particulier, access to the building is via a head-end structure with a vehicle lift to the underground car park. An external staircase leads to the prestigious cour d'entrée.
On the north side, the building with its different terrace levels is enthroned above the Distelweg and presents itself with a discreet noblesse. This expression is emphasized by a white, finely detailed façade cladding of surrounding bands and ascending reveals. Dense planting provides the right amount of privacy and neighborly interaction.
Project gallery
客服
消息
收藏
下载
最近




































