查看完整案例

收藏

下载

翻译
Architects:aoa architects
Area:383m²
Year:2022
Photographs:Hyosook Chin
Lead Architect:Jaewon Suh
Landscape Designers:Anmadang the lab
Project Team Members:Uk Sunwoo
Graphics:Jeongah Kim
Furniture Consultants:COM
City:Gangneung-si
Country:South Korea
Text description provided by the architects. A ‘pension’ is no longer an alternative to a hotel, with its unreasonably high-priced bills. Pool villas line the seafront, and healing vacation stays deep in the forest are fully booked during the peak season. So, not everyone will be able to holiday unless they are nimble. It is easy to see that the idea of the ‘pension’, which was carved out by the hands of designers, and the luxury accommodation aspiring to be known as ‘stays’ is rising in appreciation, but not through their appearances on Instagram but through word of mouth. From the consumer’s point of view, it may be fun to look here and there, but for architects who are the creators of such spaces, the phenomenon of vacation architecture appears to them as a confection of glass, excessive interior design, and characterized by kitsch catchphrases, such as ‘We are equipped with Swedish body cleanser.’ The owner of HOJI felt the same weariness when met with these aspects, as communicated when visiting our office.
We first met two years ago in a quiet country town with not much striking scenery. When I visited my grandmother’s house when I was young, the quiet field and the low, dark mountain were the only things of note. At sunset, the smoke rising from the chimney next door turned the land more uneventful and peaceful. I even wondered if ‘it would be okay to add something artificial to the land?’ However, I decided to purposefully step into this land. As I walked into the middle, picking through the lush weeds that grew to the waist, the land, which was nearly 3,300m² gently sloping from the road, embraced the surrounding area comfortably. It was rather fortunate that there was no spectacular scenery. If I had to build something to suit this place, it should not be larger in size than the houses nearby; it should be blunt rather than sophisticated, and I wanted it to resemble a structure that was common in the countryside. The countryside is not as dense as the city, so there tend to be many freestanding forms; warehouses, plastic houses, cabins, to name a few.
However, the representation of certain objects is to be avoided, and maintaining a moderate distance was key in case it should appear too out of the ordinary. The simple symmetrical accommodation building that has been created in light of these considerations would suffice to prompt memories for whoever stays in these rooms. For some, the Octagonal House looks like a nomadic tent and feels like an octagonal pavilion, the Long House looks like a milk carton or a grain warehouse, and the Round House looks like a slender piece of wood or a face with a hat, but these associations do not matter. In addition, the concrete-looking house appears to float above the ground as if it had been placed on the table, and although it is as light as a toy, it is still heavy as a lump.
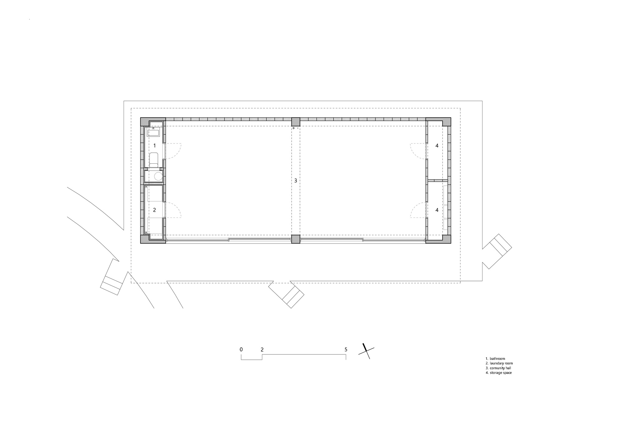
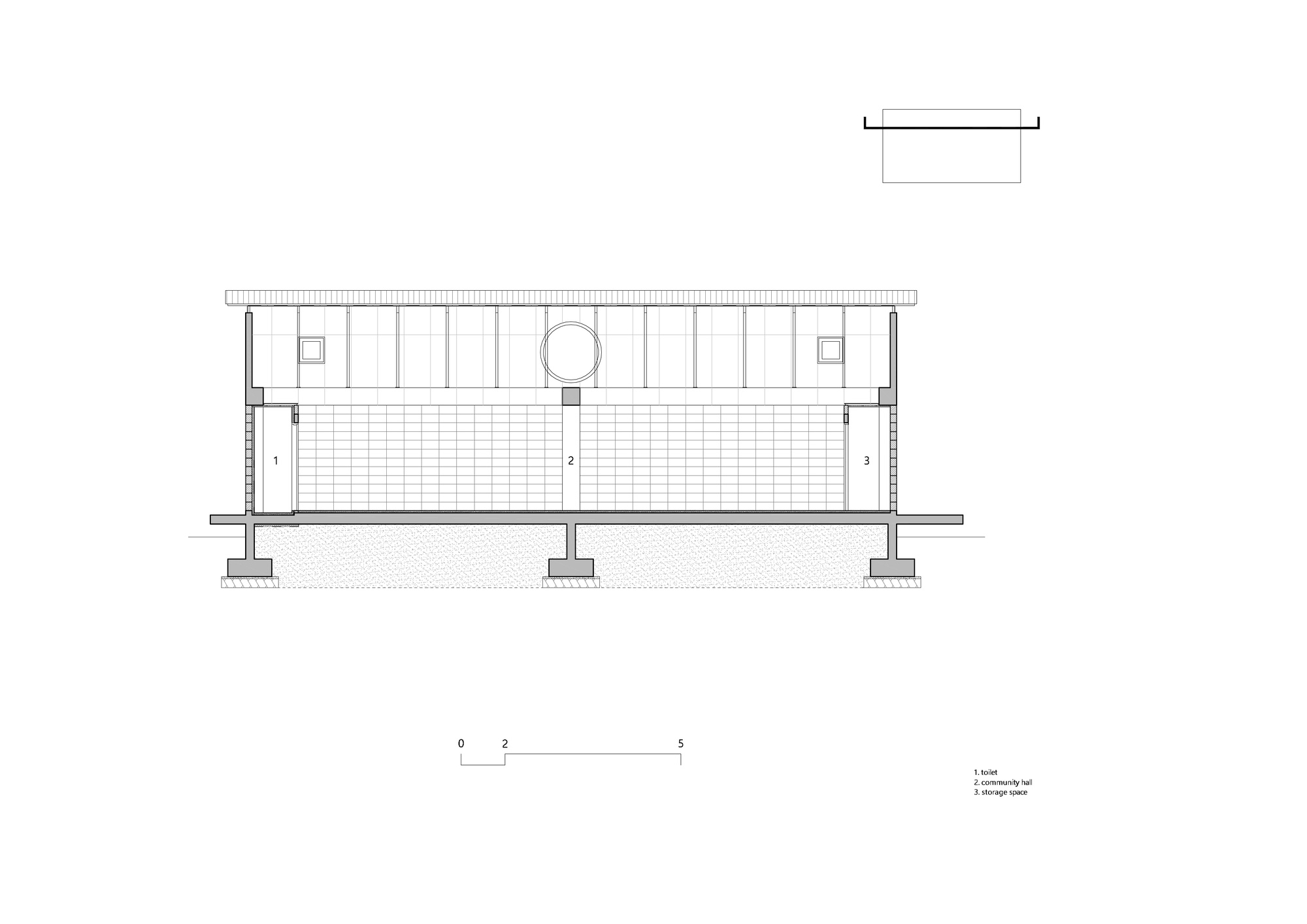
As such, the three accommodation buildings, community warehouse, and owner’s house are positioned separately from each other at a reasonable distance, but soon, they are connected to a circular walkway with a minimum width of 30m. On a rainy day, it would be rather spectacular to walk down between the pools of water and plants hanging above the muddy ground. Thus, HOJI remains on the ground without finding expression somewhere between reason and sensibility.
The three accommodation buildings would be sufficient as a warm refuge in the countryside. It’s better if the box is lit with light within a huge volume rather than achieving an overwhelming height for those who come to play away from the city. It’s enough to chase the shadows that flutter across the house all day, but other such country experiences add the icing on the cake if hearing a dog barking into the night from a distance. Of course, it is fascinating to play the music that the owner of each house has chosen in advance and to gaze out of the window across the green onion fields. Wood has been employed everywhere, such as on the walls, ceilings and floors, which makes one feel that they have entered a box of musical instruments. In addition, low, flat chairs make the high ceiling feel higher.
Everything is orderly because the spatial structure is symmetrical, but the irregular furniture, which seems to be made from disassembled apple boxes, casts doubt as to whether this gesture is really necessary. The colorful grasses, of which I hardly know the name, grew here and there and had already become a habitat for insects when I walked outside the house. All the houses are as colorless as cement warehouses. When a strong ray of light struck the roof, the surface disappeared, leaving only the outline, which appeared to be undulating. I felt like I’d been placed somewhere between everyday life and a more surreal life, so I tried to raise the watch on my wrist. The octagonal house has an octagonal courtyard. The space suitable for a family stay is divided into two spaces, with the passageway in the center of the bathroom, but the windows in the courtyard loosely connect the eyes through the trees. The shower space is completely open to the courtyard, so the sun setting in the distance touches the downy hair on the skin. When I woke up in bed at dawn, small windows high above my head lightly illuminated the steeply sloped ceiling. I feel like I'm in a monastery.
The longhouse has a long skylight running across the entire house, and chunks of concrete beams that seem unnecessary are hanging cutely between the skylights. The bathroom divides the sleeping area and the living room in the middle, but its height is low, so the entire ceiling surface flows seamlessly. The fact that all the ceilings reflect me like a mirror is annoying, but it's worth it. Lying on the bed, I see the stars. The Round House has a huge object hanging from its ceiling, which at first glance looks like a fireplace in an American house. It’s actually a kitchen oven hood, one which plays its part better when reflecting the light from the ceiling and scattering it throughout the house.
When I lie on the bed with a blood-red marble wall by my head, spaces gather under my feet, whether it is the ceiling or the wall. I’m confused for a moment about whether I’m lying down or standing up. After breakfast at the community warehouse, the shadows cast by the long-hanging plants under the eaves seemed like they were telling us something, but I couldn’t catch what they meant. Perhaps the memories that I couldn’t locate, or to whom they belong, have become intertwined with reality, so it is a sensation hard for me to explain.
Project gallery
客服
消息
收藏
下载
最近
















































































