查看完整案例

收藏

下载

翻译
Architects:Mork-Ulnes Architects
Area:310m²
Year:2022
Photographs:Jeremy Bittermann
Manufacturers:Hansgrohe,Duravit,Harvest Moon Woodworks,Jeld Wen,Rais,SmartLam
Main Contractor:Forest City Made
Landscape Architect:Strata Landscape Architecture
Structural Engineer:Eclipse Engineering
Project Team:Casper Mork-Ulnes, Lexie Mork-Ulnes, Greg Ladigin, Phi Van Phan
Interior Design:Lexie Mork-Ulnes
City:Bend
Country:United States
Text description provided by the architects. Octothorpe House sits atop a plot blanketed with sagebrush, bitterbrush, and junipers, the site of a forest lost to wildfire two decades ago. Ponderosa pine forests can be seen in the distance as the high desert arid land transitions into lusher vegetation. We are in Bend, a small city (257 kilometers southeast of Portland, Oregon. A popular spot for outdoor enthusiasts, it is located within easy reach of the trails, the Deschutes River and Mirror Pond, the nearby Cascade Lakes, and the ski slopes of the Mount Bachelor ski resort and of the Cascade Mountains. The lot has sweeping views of the Three Sisters mountains' snow-capped peaks and the Deschutes River National Forest.
The clients and their brief. For years, clients Mike and Katherine had considered moving from their San Francisco home — also designed by Mork-Ulnes in 2011 — to allow their young child to enjoy a more outdoor-centric life. Not an isolated choice for families that are part of a seeming exodus from San Francisco and other larger cities in the US, a migration that started before the pandemic and is now reaching its peak. The couple, who are originally from the UK and Texas, are technologically progressive. Around 2016 they purchased a plot of land in Bend, Oregon, attracted by the local climate — typical of the high desert with arid summer months as well as snowy winters, cool nights, and sunny days — and by the diverse topography of lakes, mountains, trails and desert terrain that allow for a wealth of outdoor pursuits.
The clients had a few requests for their new home, specifically that it be environmentally progressive and offer a high level of flexibility while embracing the desert landscape. They needed two bedrooms for themselves and their child and two guest bedrooms for frequent visitors and family abroad; additionally, in order to optimize square footage on a tight budget, they required flexible spaces for flexible uses — guestroom/office, exterior courtyard / outdoor playroom, garage/interior playroom.
The construction method. Cross Laminated Timber construction is a low-waste and high-efficiency construction method whereby all materials are pre-cut off-site allowing for construction waste to be recycled responsibly at the factory. All of the CLT panels for Octothorpe House were created from sustainably harvested SFI/COC-grown wood that was glued and laminated using low-VOC adhesive in a plant in Montana. Due to its CLT construction, this project has a projected 25-ton carbon embodiment within its walls, and a projected 15 metric tons of greenhouse gas emissions avoided.
The interior walls of the house are almost exclusively cross-laminated panels made of pine, spruce, and fir with a natural oiled finish (with the exception of bathroom wet areas that are tiled), resulting in great air and acoustic qualities. Shou Sugi Ban — a burned cedar wood that is water-proof, resistant to decay and insects, and fire-resistant — was used on the exterior, requiring almost zero maintenance over time.
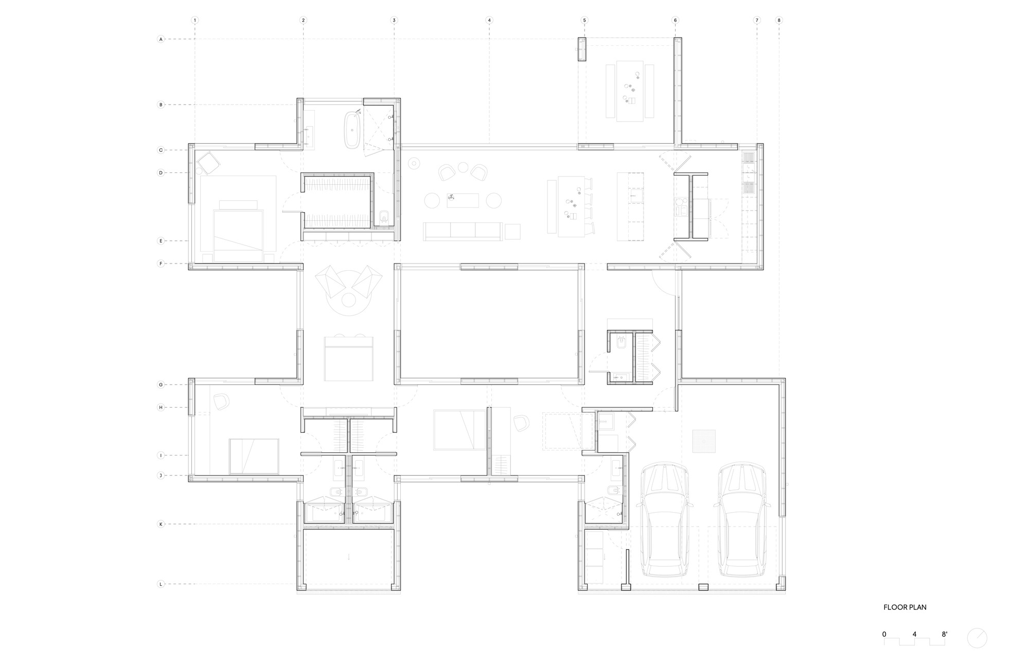
The concept. Encompassing 3,340 square feet (310 square meters), the single-floor dwelling reveals an ingenious plan layout. Four intersecting shed-roofed bars divide the plan into public and private areas, with a fully enclosed courtyard at the building’s center and seven semi-enclosed ones at its perimeter to bring light and air into every room.
In plan, the house is organized around a simple grid of rectangles that dictates the size of the rooms and courtyards. There are no corridors, but rather a fluid sequence of rooms following one another. Inhabitants can move around the central courtyard, or cross it when doors are open.
The criss-cross plan also lends itself to cross-ventilated air movement, providing relief from hot summer days. Also, it integrates operable concealed solar shades to protect the south-facing rooms from the intense Oregon high-desert sun.
The interiors. The interiors were inspired by Donald Judd’s Chinati Foundation in Marfa Texas, with dusty hues and sculptural forms shaping the space. The color palette was meant to draw in the natural desert landscape. Simple wool and felt furnishings in geometric shapes were mixed with natural leather and wood.
The layout. The house is organized around a series of light-filled spaces — entry, kitchen and living room, bedrooms, and lounge area— that all offer orchestrated glimpses into the central courtyard and ample views of the sky and the desert all around, which is covered in snow in colder months. The atypical organization of spaces creates a delightful connection with the surroundings. Rock formations, native shrubs, and bushes surround the residence, further integrating it with its rugged site.
Inspired by the hues and textures of the surrounding landscape, the house tunes in to the muted color palette of its high desert surroundings. Outside, the Shou Sugi Ban cedar board siding takes on a muted ashen color. The interior space is almost wholly homogenous, smooth cross-laminated panels made of pine, spruce, and fir creating an intimate and cozy feel. The house’s most striking, yet most ephemeral, quality is the immaterial sense of liberty.
The central and the perimeter courtyards frame views of the sky while bringing ample natural light inside and providing optimal ventilation. During spring, summer, and autumn, the living space expands into the courtyards. When the sliding doors are open, the house is fully porous, filled with an uninterrupted flow of scents and sounds traveling through from the outside. During the winter passive heating travels through the floor-to-ceiling windows and, though sealed off from its surroundings, the residence enhances the feeling of being outdoors while inside.
Project gallery
客服
消息
收藏
下载
最近



























