查看完整案例

收藏

下载

翻译
Architects:D Compose Architect
Area:695m²
Year:2023
Photographs:Rungkit Charoenwat
Manufacturers:Boonthavorn
Lead Architect:Supachai Phiromrach
Architect:Thatchai Namvichai
Architect Assistant:Natchanon Tippinwong, Patiwat Dongkathok "
Structural Designer:Pilawan Piriyaphokai
Program / Use / Building Function:House
Pool Consultants:Thaipool
City:Chiang Rai
Country:Thailand
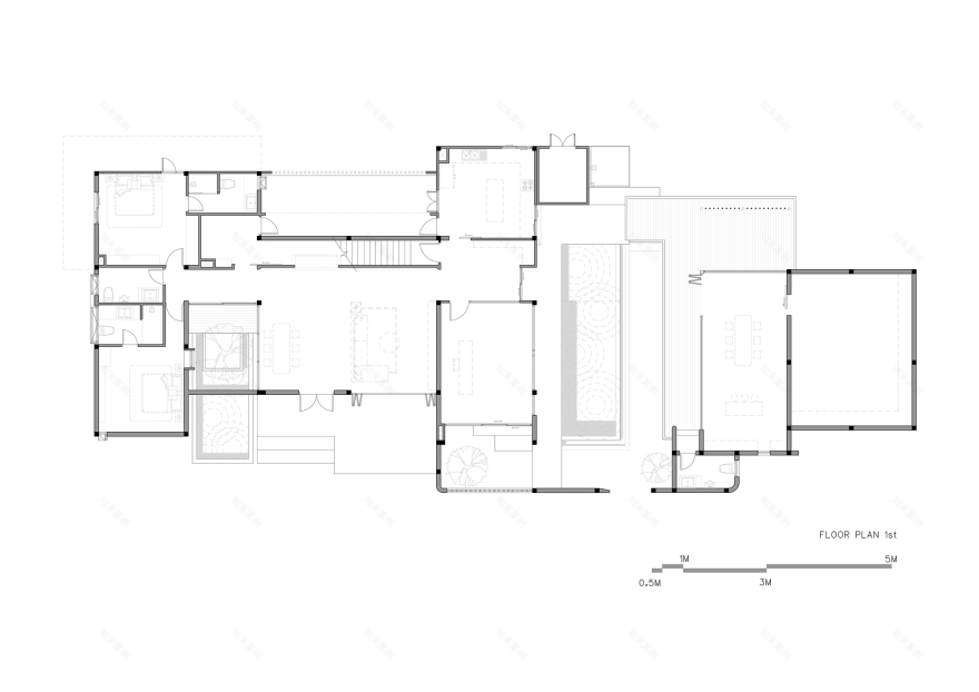
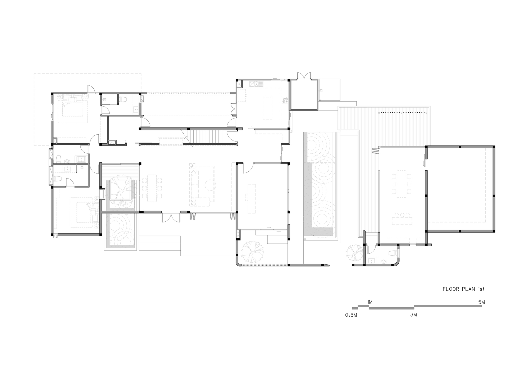
New house, new perspective. These two-story modern minimalist houses represent the resident’s identity completely. The designer intended to make the structure and architecture harmonious by arranging the proportions of various elements to reflect the beauty in every dimension. The designer refers to the environment and context of the house as the main design principles to be consistent with the building orientation and various uses of the house. For example, the front of the house in the south is the direction that receives the sun all day, so the front wall of the upper floor is designed to protrude from the wall of the lower floor to act as an awning to shade the front porch and help prevent heat.
With that design, it also creates dimensions for the exterior architecture to stand out. The area under the awning can be made with a high ceiling and skylight from the top of the roof to make it feel open and airy before entering the house. The interiors are designed to create a new way of life for the residents by having new areas for activities and perceptions within the new house. All these things are the needs of the residents who want 5 bedrooms, a high hall, a private office, and other rooms like a normal residence, but want to add some special space for relaxing activities like a koi pond, medium-sized swimming pool for children and hangout space with friends, with interior space must be able to connect to the outside space as well.
The important thing is that interior space must feel safe and private at the same time. Based on the residents’ requirements, the designer chose the high hall as the protagonist of this house by designing various zones surrounding this area. A double space hall is used as a living and dining area; it connects high to the corridor and bedrooms upstairs. Therefore, people living on the upper floors can interact, communicate, and see what happens below. In the central hall of the house, we have brought in some of the outside activities to connect with the inside, such as the koi pond, which was intended to be a rectangular shape that runs under the front wall into the space between the courtyard and the house. We intentionally placed the koi pond next to the dining table and planted a tree in the middle of the pond to make it feel close to nature and add a good atmosphere to the living room and dining room.
The courtyard area is another interior highlight, with a floating partition wall above the koi pond for separating the outside and inside zones, creating privacy, and having a waterfall wall to help create relaxation. The interior decoration is designed to be different from the outside. The residents want modern luxury, making the interior elegant, simple, and minimalist. Therefore, we added curves and rounded corners alternating with the squares of the building, thus giving the interior space a different dimension from the outside, which answers the requirement for a better way of living in their new home.
Project gallery
客服
消息
收藏
下载
最近




















