查看完整案例

收藏

下载

翻译
Architects:MA Office
Area:404m²
Year:2021
Photographs:Mohammad Hassan Ettefagh
Manufacturers:Ghazvin Glass,KWC
Lead Architect:Seyed Jalil Mousavi
Architects:Seyed Jalil Mousavi, Sepehr Edalati Morafah, Seyed Akam Katoorani, Ali Moradi Meshkin, Atefeh Safakish
Structure:Seyed Hashem Bathaiee
Electrical Engineer:Seyed Reza Iranpour
Mechanical Engineer:Mohammad Mirzaie
City:Hamedan
Country:Iran
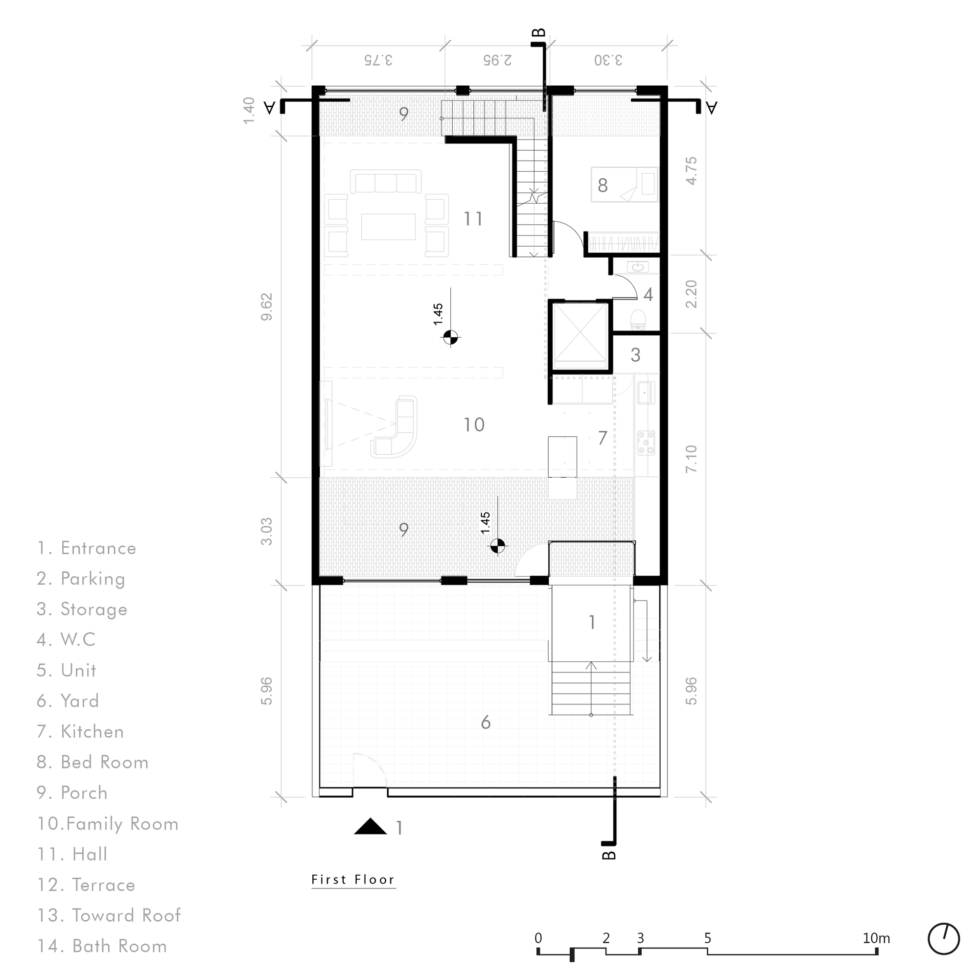
Text description provided by the architects. HOW the internal relationship of the house as an architectural cell with the city was the main intention behind designing this project. The location of the building is the land obtained from the owner’s old building with the dimensions of 10×20 meters, placed in the crowded street of Ostadan and the 8-meter back alley, in Hamedan City. The main problem is seeking a response to the issue of the direct/indirect relations in the house living space with these two external passageways/cities. In the old houses of Hamedan City, the porch is considered an active living space connecting the indoors to the outdoors.
Nowadays, in conventional houses, the boundary between the indoors and outdoors is set by the walls and the thresholds such as the doors and the windows allow for penetration in and out. In the present project, due to the use of two brick spatial envelopes on the two sides of the house, the boundary has changed into two livable empty spaces: Two half-open/half-closed porches, the intermediate Living spaces of the family with the street/alley. These two empty spaces have revealed the relation between the indoor and the outdoor and the sky and the horizon, and at the same time, have connected the floors.
The dialectic of the empty spaces with the warmth of the brick’s color texture alongside the view to the outdoors and the sky and intermediate white living space has created a special attraction. The use of glass terraces in these empty spaces, in addition to emphasizing the empty spaces, has allowed for the experience of being in the middle of the ground and the sky for the residents.
This building includes the ground floor: which consists of the indoors and the connecting spaces, parking, a small suite, and a storeroom. a duplex with dining and living rooms, the main kitchen, a bathroom, and a guest room on the first floor, and two bedrooms for the children, one bedroom for the parents, a dining room, a small kitchen, and a bathroom, for a family of four in the second floor.
Project gallery
客服
消息
收藏
下载
最近



























