查看完整案例

收藏

下载

翻译
Architects:Dom Architect Studio
Area:250m²
Year:2023
Photographs:Hoang Le
Manufacturers:Jotun,Panasonic,Thanh Terrazo,Xingfa
Design Team:Nguyen Anh Duc, Truong Anh Duc, Le Trang
Client:Hằng-Mr Công
Collaborators:Nguyễn Thanh, Mr. Chua
City:Hà Tĩnh
Country:Vietnam
Text description provided by the architects. This project was built to replace the old house that has deteriorated and is no longer suitable for the increasingly different needs of the owner. They desire to keep a little bit of the old house when the new one is built; for them, it is a little nostalgia to remember the place that has sheltered them since they were born and grew up. For us, it is fortunate to have been exposed to the old house before it was demolished; a few checks on the proportions of the porch, the tile roof system, some of the doorways, and even the trees that existed there long ago.
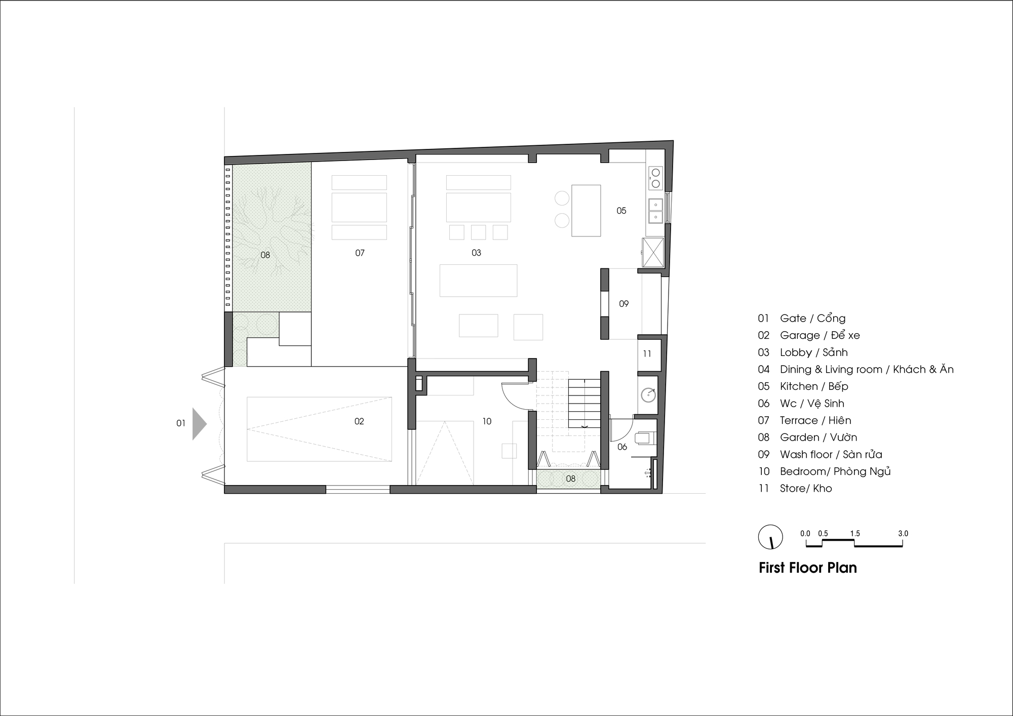
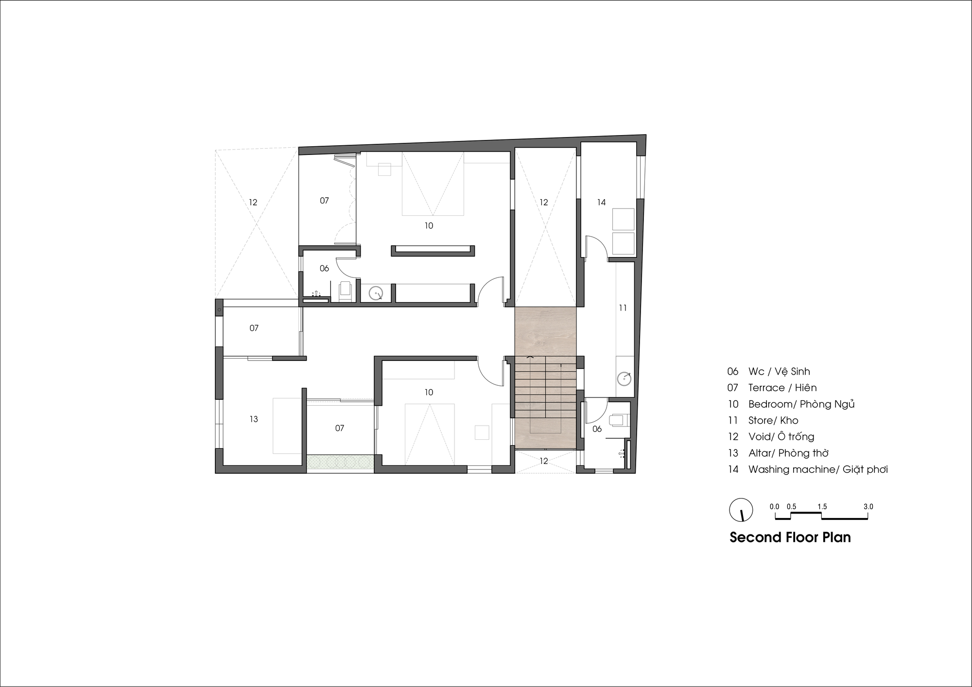
These data are like a small library for us to study and build a design plan for a new house. We noticed that in the architecture of the old house, the living room and the kitchen are separate spaces that open to two different patios, a feature often found in homes in tropical countries, such as the central region in Vietnam. Since then, we have proposed a long common porch in the new design where the living space and the kitchen can open up. This solution makes the space simpler, more connected, and more open.
We really like the proportions and form of the roof of the old house, which is a porch with 3 meters of height and a 45-degree inclined roof system, roofed with traditional terracotta tiles in rural areas of Vietnam, very specific and idyllic or a few details. The arched doorway is also very interesting. All details and proportions, visible or invisible, are actively put into research and construction by the design consultant unit. With this design, we want. The soul of the old house architecture will continue in a new architecture. The available stumps are still kept, existing and growing next to the new home as part of their family.
Project gallery
客服
消息
收藏
下载
最近
























