查看完整案例

收藏

下载

翻译
Architects:HIEN Architects
Area:100m²
Year:2020
Photographs:Nhat Ha, Pham Quoc Huy
Manufacturers:Gray laterite,INAX,Panasonic,Xingfa
Lead Architect:Pham Quoc Huy
Concept Design:Pham Quoc Huy, Doan Anh Tuan
Interior Designer:Bui Xuan Dung
Technical Design Offices:Ho Van Cong
Main Contractor :Nguyen Van Bac
Structure Engineer:Vu Trong Truong
City:Điện Biên Phủ
Country:Vietnam
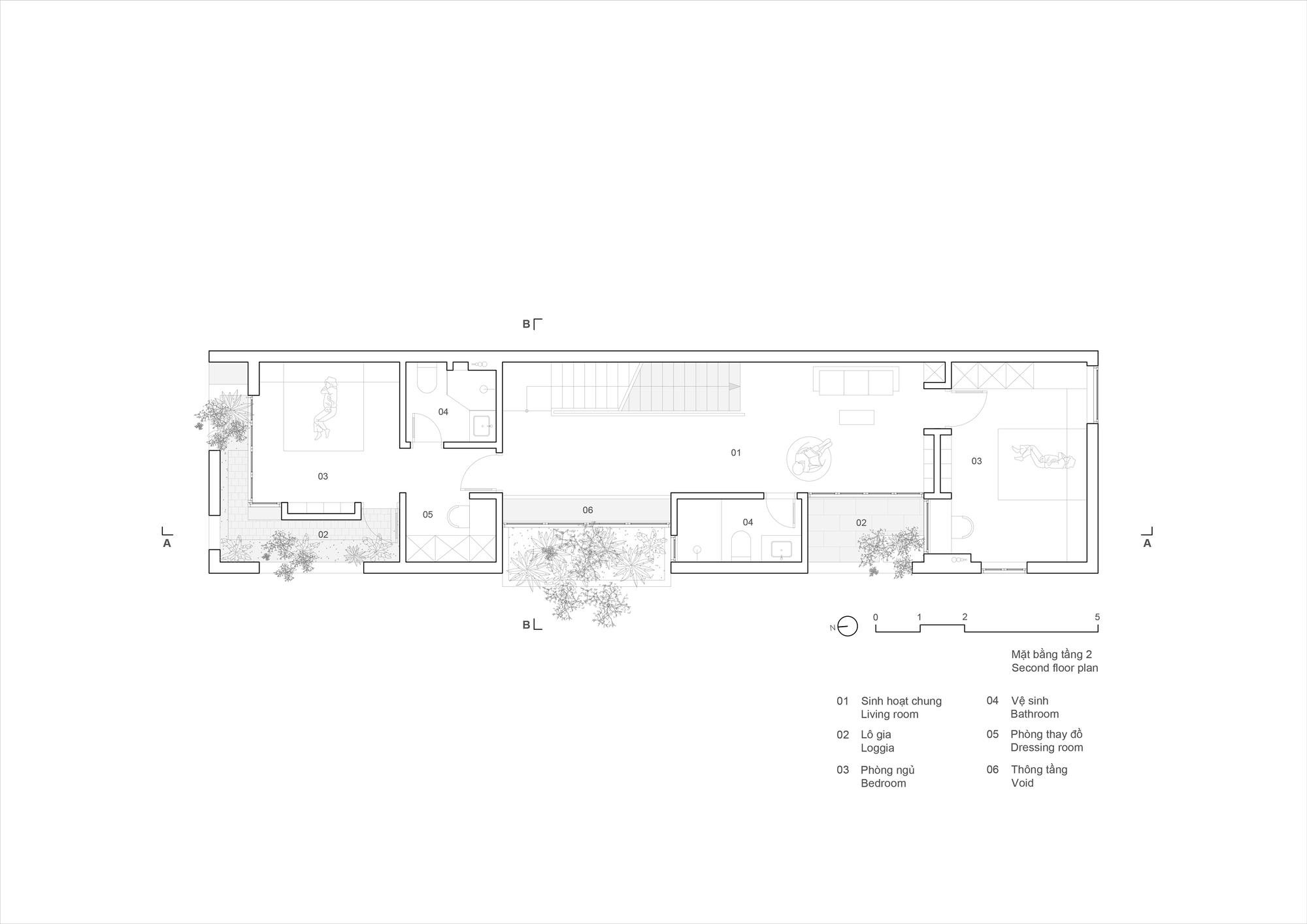
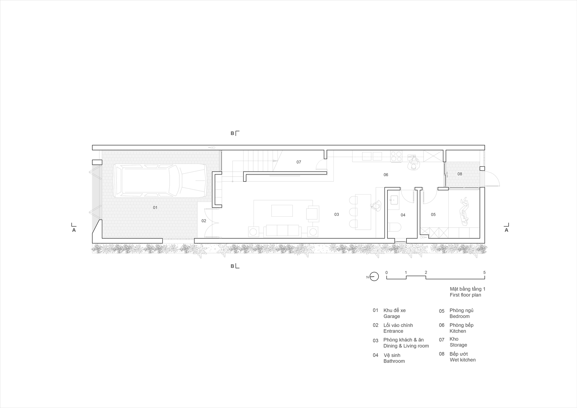
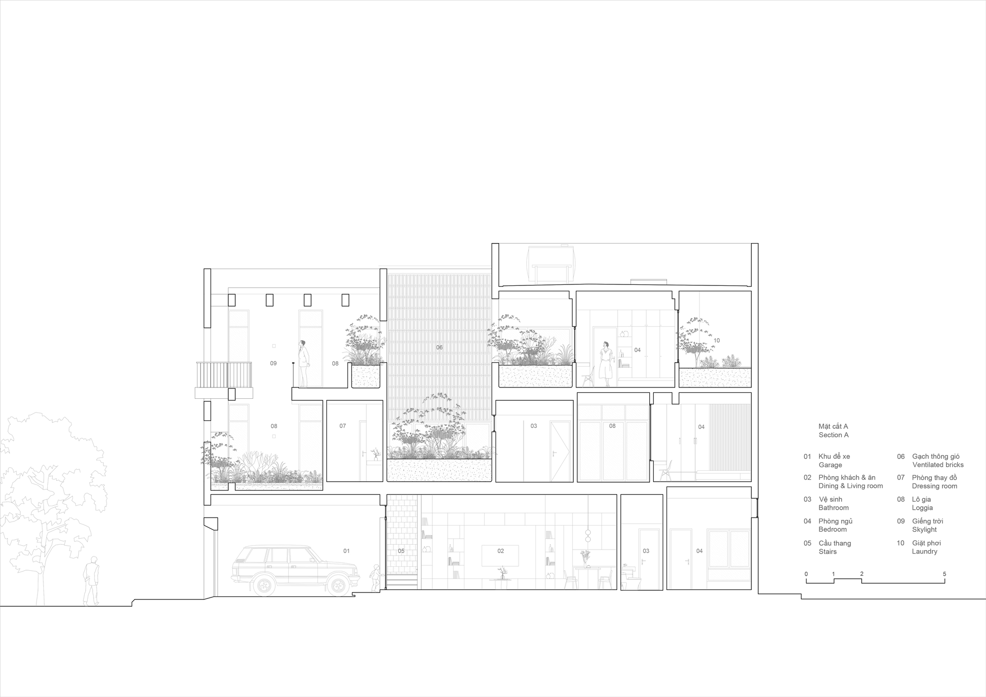
Text description provided by the architects. Dong Thu House is located in Dien Bien City, a city in the mountainous province of Northwest Vietnam with a relatively harsh climate - very cold in winter and hot in summer. The house is built with 3 floors on a 100m2 plot of land, from ensuring necessary functions and creating communal spaces to enhance connectivity for a three-generation family to meet the privacy needs of each individual. Additionally, there is a need to address the heat resistance issue, as the majority of the vertical surface area of the house is exposed to the adverse effects of westward sunlight.
To reduce the temperature of the entire structure and organize the layout, we create voids and plant green trees in areas exposed to sunlight. These buffering spaces contribute to cooling and create a landscape inside and outside the building. As a result of the solution, most spaces inside the house receive natural light and ventilation. Simplicity in color design and finishing materials is the idea we aim for.
Most materials used for the project are reinforced concrete, volcanic stone cladding, ventilated bricks, glass, and especially green trees. The functions on the first floor include a front courtyard, a lobby, and a garage that serves as a buffering space to prevent dust and noise. Next is the living room connected to the kitchen and a bedroom for the elderly. Utilizing the rear courtyard and a full-length glass wall running along the entire house, we ensure maximum natural light and privacy for the users.
Project gallery
客服
消息
收藏
下载
最近

























