查看完整案例

收藏

下载

翻译
Architects:Fantuzzi + Rodillo Arquitectos
Area:125m²
Year:2022
Photographs:Sofía Oyarzún
Lead Architects:Roberto Fantuzzi, Jaime Rodillo
Collaborators:Matías Lara, Sofía Oyarzún
Publication:Matías Ferrando
City:Maitencillo
Country:Chile
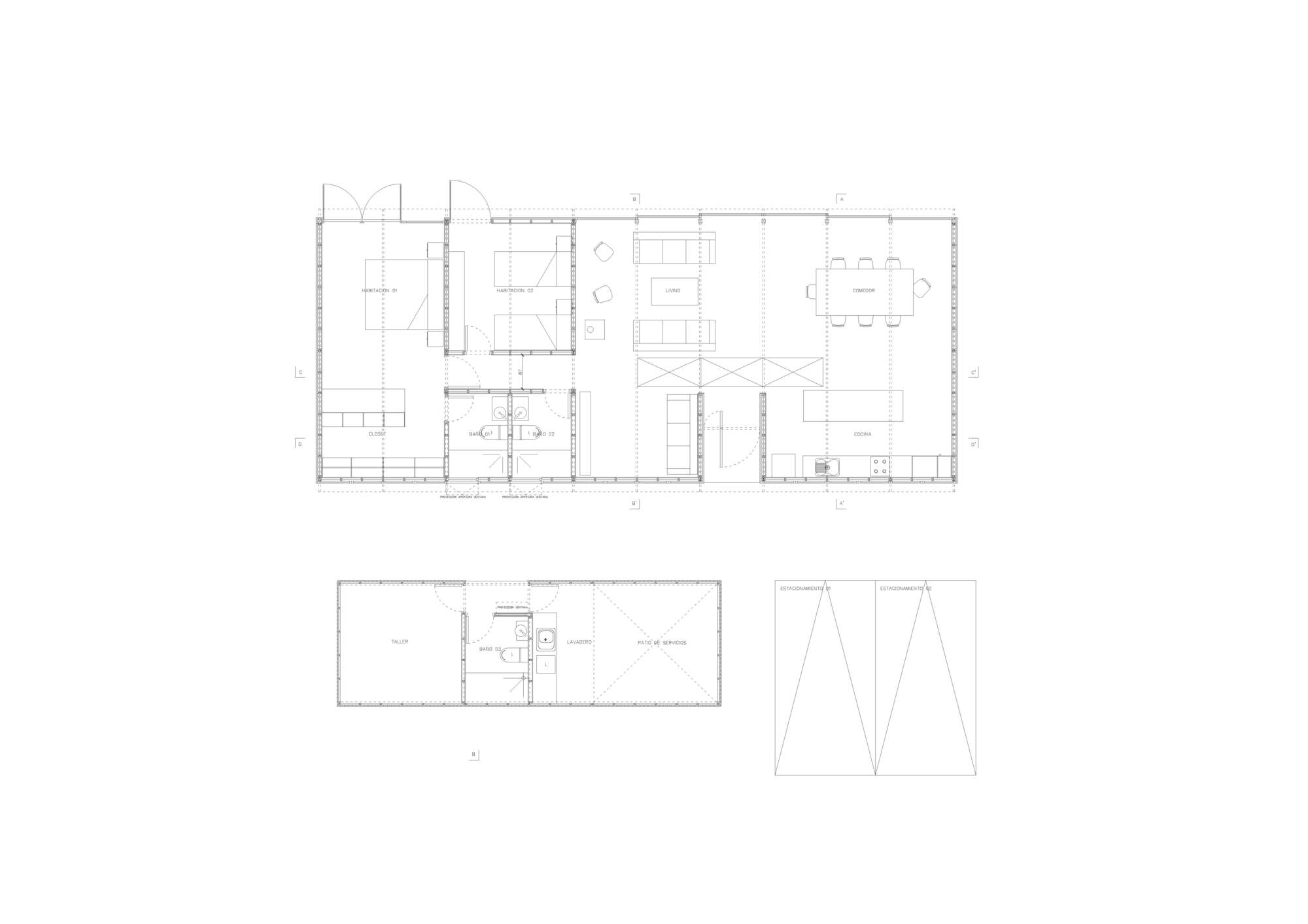
Text description provided by the architects. Housing is located in the La Laguna Sector, Zapallar commune, Chile. Located on a 2500m2 plot of land, the house is made up of two volumes, arranged facing the vehicular access and turned towards the northeast, allowing the patio to be hidden from the public road. A volume for a home with two bedrooms, two bathrooms, a kitchen-living room, and a second independent volume as a work workshop on an area of 125m2
The program is organized by the entrance to the open-plan living room and kitchen, received by a continuous ceiling made of 2x1” brushed pine panels, in contrast to the layout of the bedrooms and bathrooms, which are proposed as opaque volumes. This distribution allows greater privacy in the bedrooms and bathrooms, unlike the social spaces open to the exterior patio.
The volumes are made from prefabricated 2x4” pine partition panels on a polished concrete floor. The exterior covering is 1x5” pine board with black stain, while the interior covering is 15mm plywood. The furniture was built on site in 15mm plywood using the same material character as the interior lining.
Project gallery
客服
消息
收藏
下载
最近


















