查看完整案例

收藏

下载

翻译
Architects:IGArchitects
Area:71m²
Year:2023
Photographs:Ooki Jingu
Structure Engineers:EQSD
Landscape Designers:SOLSO
Construction:ARATA KENCHIKU KOBO, Masanobu Arata
Design Team:IGArchitects
Structure Engineer:Yousuke Misaki
Landscape Designer:Yuuta Itagaki
City:Saitama
Country:Japan
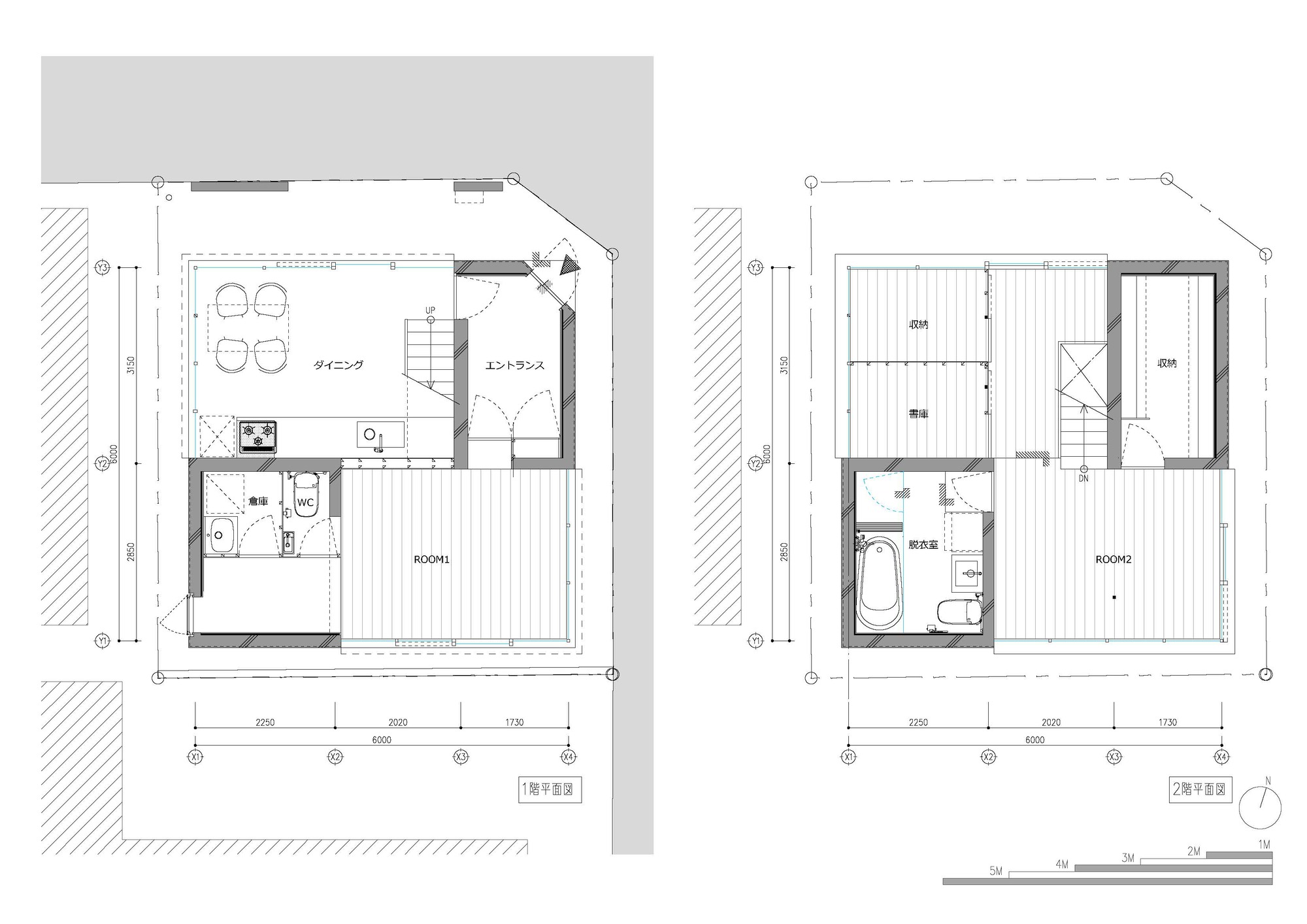
Text description provided by the architects. This is a reinforced concrete structured house for a family of 3. This house was required to respond flexibly to changes in their lifestyle and the store they own.
At two diagonally placed corners of the house, large wall pillars have been built, which seems to be out of proportion compared to the scale of the house. These wall pillars enclose private functions that don’t require big windows, such as entrances, bathrooms, toilets, storage, and pipe space. The floors and roof outside of these wall pillars are not connected to additional foundations or pillars. Instead, they are cantilevered from the two wall pillars like branches and leaves. The wall pillars and slabs are in a relation like a tree trunk and leaves.
The interior space has a straight circulation that leads to more private spaces as it goes further in. Just like birds hop between branches, this plan allows people to spend time wherever they want by moving between the pillars and floors.
The two concrete wall pillars placed in a checkered pattern and cross-sectionally displaced floors create a sense of distance. This lets people perceive the sense of the “other side” from any room they are in, and this sense is extended to the outside by the opaque glass of the exterior wall. While each room goes beyond its purpose and meaning by being interrelated with each other, it separates the whole space and expands outside. It is a simple cubic building, but it is an architectural design with rich interior space that has depth and an exterior that corresponds to it.
Project gallery
客服
消息
收藏
下载
最近



























