查看完整案例

收藏

下载

翻译
Architects:Thien Hung Design and Construction
Area:180m²
Year:2023
Chief Architect:Huynh Minh Duc.
Architect:Le Van Duy Bao
City:Đà Lạt
Country:Vietnam
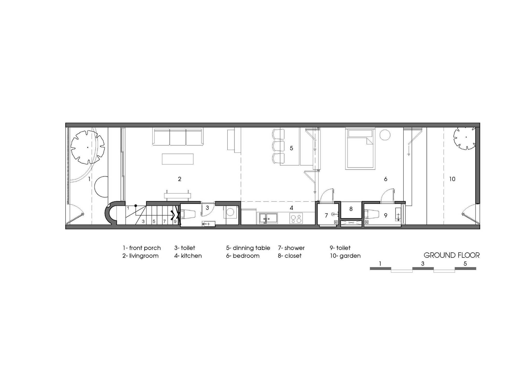
Text description provided by the architects. Mother's small house in the land of thousands of flowers. A small house for a lovely mother in the land of thousands of flowers. As if containing all feelings, the homeowner wants the house to be lovely and cozy, as a place to protect and bring joy to her mother daily.
The design idea comes from the desire that the functional needs are basic and simple and must bring warmth and closeness; the house is a link between family members. From that request, the architects designed a space where family members can easily see each other and live together.
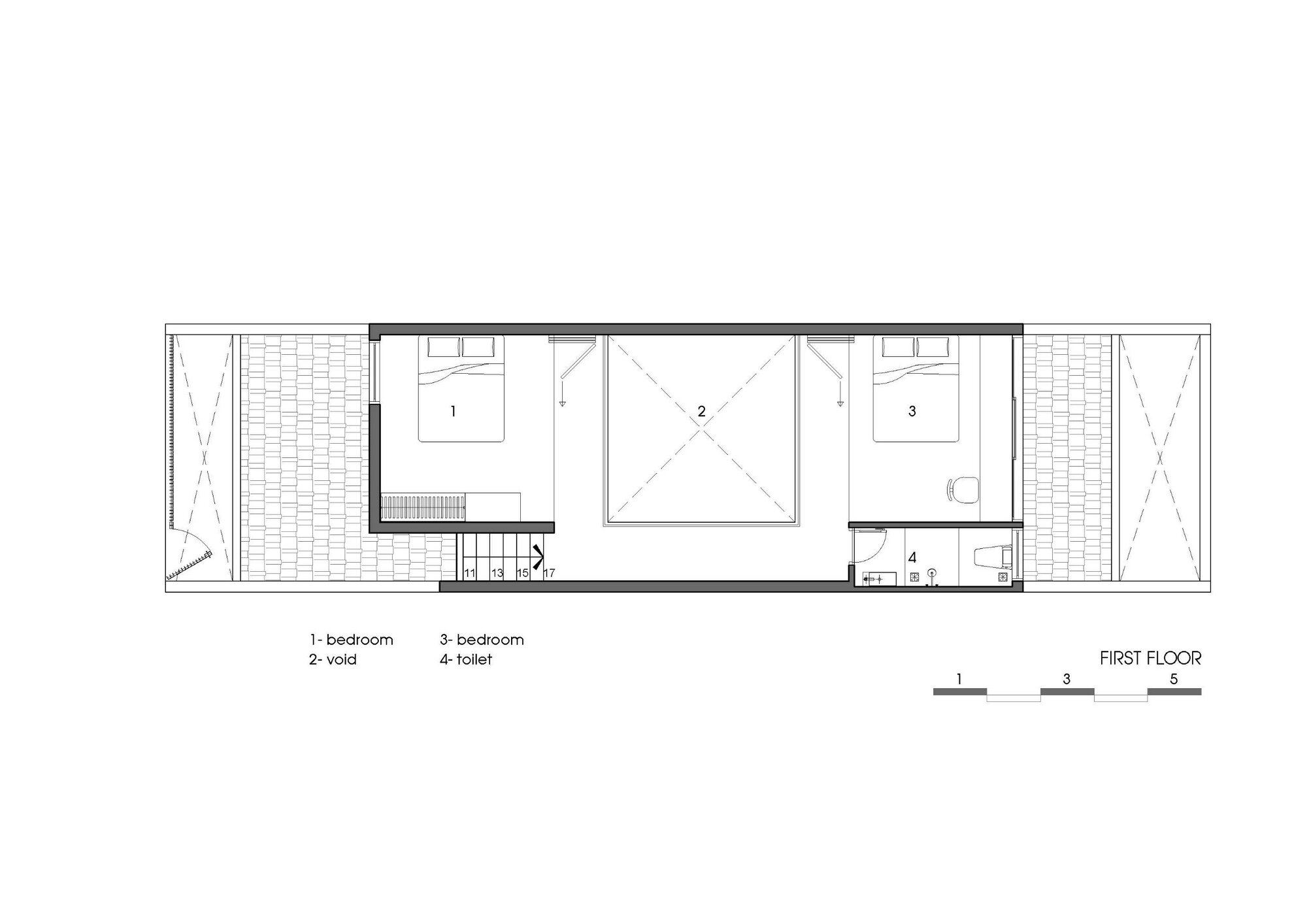
The feeling of warmth is the main target of the design, so every room has natural light, from the living room, kitchen, hallway, and bedroom. Besides, terrazzo flooring reduces the 'static' feeling of a monochrome house, adding a bit of rhythm from wall paintings and natural colored grain lines of ash wood; feelings brought from the material's surface should be in tune with the homeowner's minimalist lifestyle.
With the typical cold weather of Da Lat city, in the early morning and evening, the two-layer floor system, brick below and wood above, of the bedroom brings a warm feeling for the house's owner in the cold weather and a cool feeling in the hot weather. The shared stories and the revealed lifestyle are all directed towards a small house dedicated to the mother, filled with sunshine, cool breezes, and the laughter of children and grandchildren playing around. The cozy feeling of a place to back home is not only created by the architect but also from the diversified emotions every day, like a long journey in the lives of many generations of the family.
Project gallery
客服
消息
收藏
下载
最近
























