查看完整案例

收藏

下载

翻译
Architects:Gui Mattos
Area:10667ft²
Year:2020
Photographs:Maíra Acayaba
Manufacturers:Arteal,Carlos Motta,Dpot,Estúdio Bola,Luís Hermano,Micasa,Neogran,RR Marcenaria,Tauna,Topseal
Architectural design:Laura Bigliassi, Marcos Bresser, Marina Camison, Thiago Maurelio
Architecture Coordinator:Leonardo Chen
Interior Coordinator:Fernanda Denser
Interior Design:Camila Ripani, Flávia Moura
Landscaping:André Paoliello
Lighting Design:Rodrigo Jardim
Structure:Inner
Foundations:Inner
Electrical And Hydraulic:MVF
Air Conditioning:LogiProject
Audio And Video:D'Avila
Automation:GF
Construction:CPA
City:Bragança Paulista
Country:Brazil
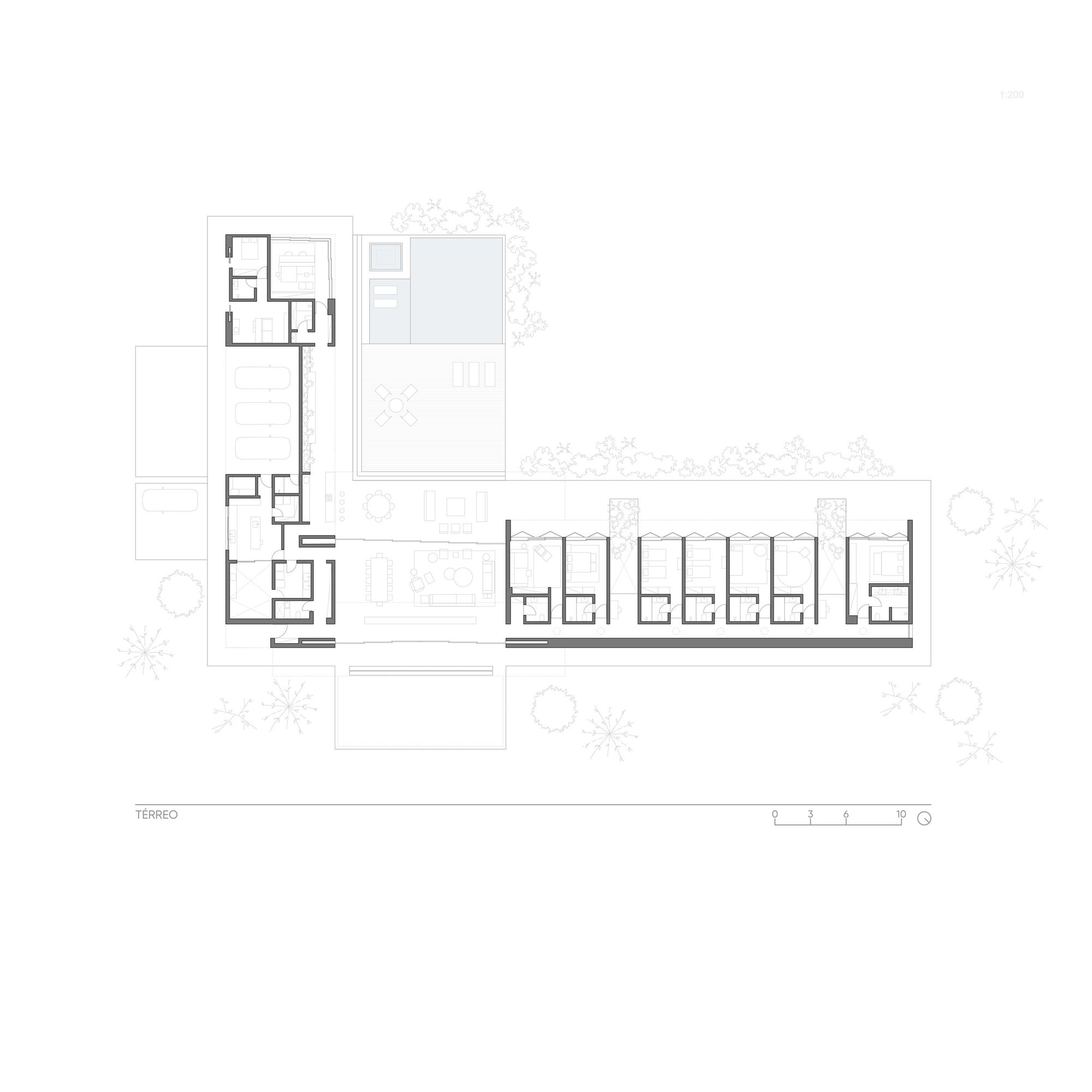
Text description provided by the architects. The Baroneza XI residence, located in the interior of São Paulo and about 70 km from the capital, is a light and compact design positioned in the front portion of the lot.
The distribution of the project's program is efficiently resolved from the simplicity of its implementation: the north-facing volume is intended for the intimate sector while the other, on the east elevation and facing the back of the lot, organizes the service area.
The meeting space and entrance door are central to the plan and configure a fourteen-meter span marked by an extensive metal shelf. Functioning as a folding screen for the street, it is detached from the floor, walls, and slab. A single opening frames the landscape in the background, revealing a small glimpse of what is to be expected from the interior of the project.
Still, on the front elevation, it is important to mention that the volume and density of the rectangular box are highlighted through the elimination of windows on the front facade and the concentration of lighting in zenith openings, positioned in the intimate circulation corridor and front of each access. This aesthetic, in addition to preserving the privacy of the resident and being protection against insolation, reveals a continuous surface and reinforces the predominant materiality of stone wood with white mortar superimposed.
In contrast to these aspects, the other volumes are cut out. The south face, set back and marked by the difference in material, creates small eaves and is filled with varied rhythms due to the wooden panels, which open onto the garden and the forest. The vegetation, in addition to composing the external landscape, infiltrates the bedrooms. Thus, it floods the internal environments with color and natural lighting.
Thus, the ‘’L’’ implantation, apparently dense and with a closed volume, expresses lightness, translated both in its elongated proportion and in the elevated implantation of the ground.
Project gallery
客服
消息
收藏
下载
最近






















