查看完整案例

收藏

下载

翻译
Architects:AICC Architecture
Area:212m²
Year:2021
Photographs:Hoang Le
Lead Architect:Nguyen Dinh Toan
City:Phú Lương
Country:Vietnam
Text description provided by the architects. With the idea of cherishing traditional values in the present life, the architect has come up with a solution to redirect the focus inward - where the ancestral worship space is located. This space is designed with traditional Vietnamese wooden architecture to encourage all family members to gather around their ancestral origins and guide their lives according to the principles of VIRTUE - GOODNESS - BEAUTY.
One of the initial challenges we faced when taking on this project was creating a connection between architectural languages avoiding their separation and disconnection. In a bustling and noisy neighborhood, we encountered the challenge of creating a peaceful and relaxing living space. One of our important goals was to address multiple needs and functionalities within a single house.
The next challenge was finding the most harmonious solution between traditional and modern architecture within the same space. From overcoming these challenges and obstacles, we are proud to bring the homeowner a versatile living space that harmonizes with the surrounding environment and meets all the homeowner's needs. The combination of architectural languages, tranquility in a bustling neighborhood, utility, and the blending of tradition and modernity.
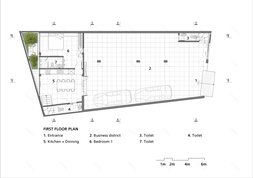
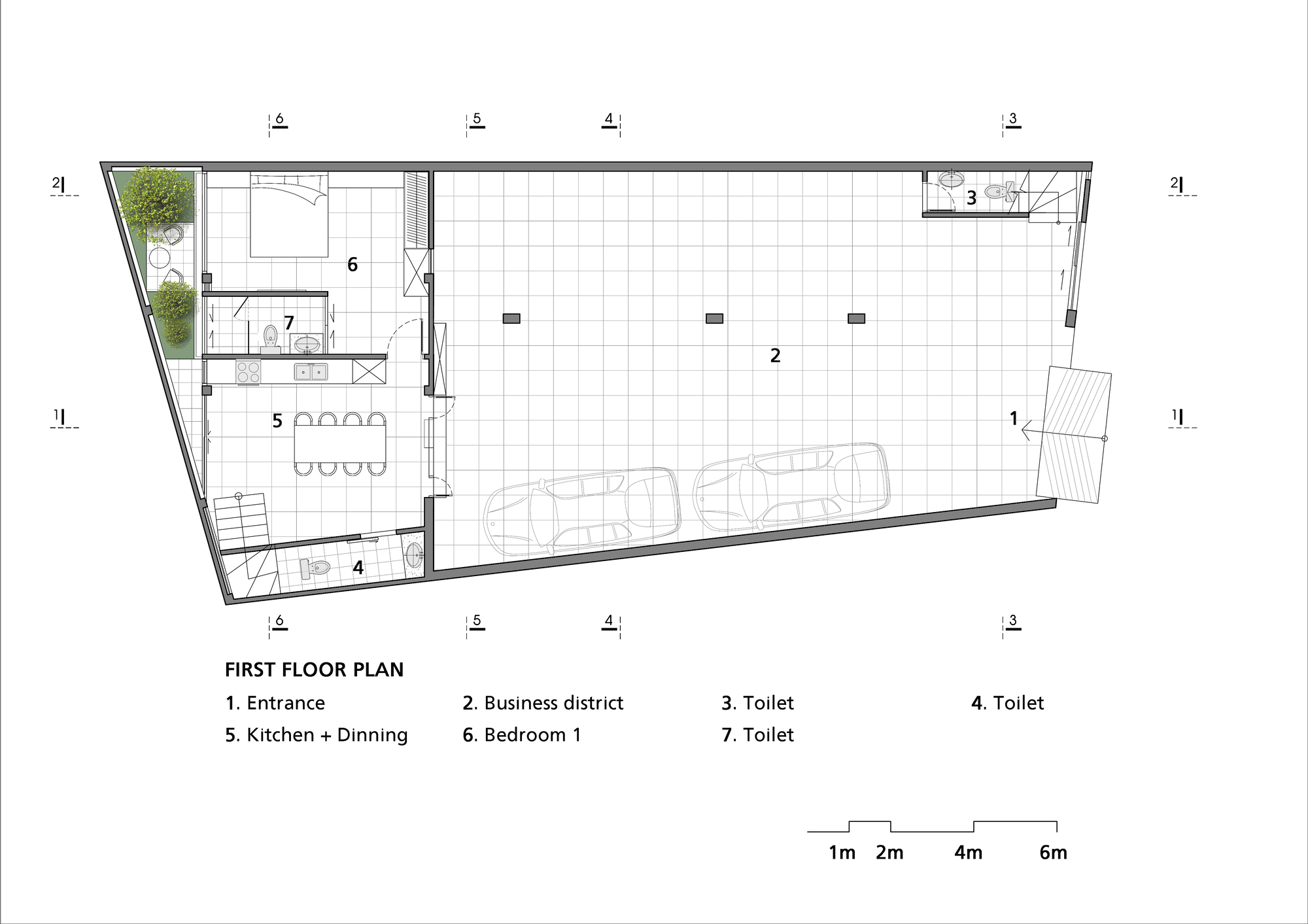
We utilized traditional materials such as cast concrete and reinforced concrete structures. The project involved the integration of two main structures: the traditional wooden structure and the modern concrete structure using large-scale aluminum-glass systems. The ground floor of the house is divided into two parts. The front part is a commercial business area, while the back part consists of a dining room, kitchen, a separate bedroom, and two bathrooms - one for the commercial area and one specifically for the family. The house also has two vertical access axes, one leading to the modern block and one leading to the media block.
The second floor of the house consists of spaces arranged in sequential order from the outside to the inside. From the main entrance, one will approach the living room, kitchen, dining area, and a separate bedroom, along with a shared bathroom. Next is the inner courtyard, creating a connection between the guest area, kitchen, dining area, and the traditional wooden temple. The third floor of the house comprises three individual bedrooms and one shared bathroom. The fourth floor serves as a playground area and a technical room, meeting the entertainment and technological needs of the family.
During the design process, we ensured the openness of the spaces, allowing for natural access and light. With the house's front-facing west, we applied an outer layer of ventilated bricks and an inner layer of large-scale glass system to ensure natural airflow, heat reduction, and noise reduction.
Project gallery
客服
消息
收藏
下载
最近






























