查看完整案例

收藏

下载

翻译
Architects:STADSTUDIO
Area:11100m²
Year:2023
Photographs:Johanna Jonsson, Olof Nilsson
Manufacturers:Thermowood
Lead Architect:Alexander Lenre Simittchiev
Executives:Håkan Forss, Nils Baltazard, Ida Mared
City:Lund
Country:Sweden
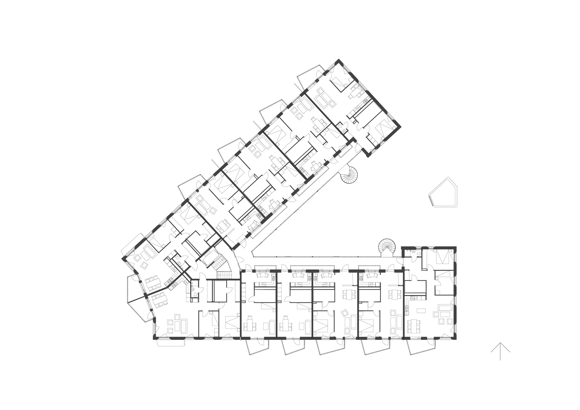
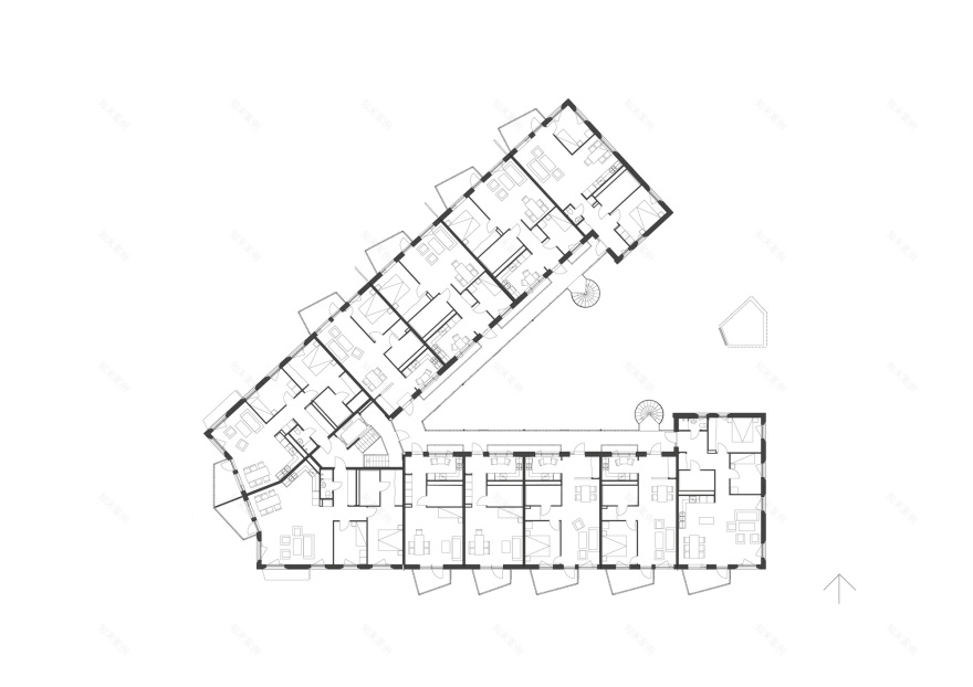
Text description provided by the architects. Måsen is a residential addition of 125 apartments into a central housing district of Lund and built into two steps: at first, a V-shaped building opening towards a common yard, followed later by three slimmer units. Moreover, with the addition of housing units to an already well-established residential neighborhood in town, the contribution of Måsen mainly resides in the attempt to bring order and structure to a quite disorganized area, thanks to a precautious densification of the urban fabric.
Prior to the architectural intervention, the area was characterized by a built environment with many scales and shapes, unclear directions, dead-end streets, and missing clarity in the frontier between private and public space. At the same time, the spacious public room and flourishing greenery on site were as many potentially bearing features that could elevate the area to a unique enclave within a broader zone.
The V-shaped housing block was the first addition to the area. Its triangular form echoes the placement and direction of the neighboring buildings. But in the present case, the shape itself plays an organizational role. It distinguishes the public from the private zones within and around the new construction. The bottom floor aligns with the various ground levels on site and aside from the main entrance, it offers direct access to apartments at ground level. By doing so, it activates the public space with life and passage. The inner yard is on the other hand clearly private, even if it opens east, towards the existing neighborhood.
Upward, the entrances are organized around the yard and from an outdoor passageway. In the apartments, the kitchen opens towards the passageways and plays the role of an intermediate zone between the private and the more public space. The constructive choice for the housing block is prefabricated concrete elements, to which great care for details has been added.
The three equal “solitary” housing blocks added in the northern part of the area came in as a second phase of the constructive process. The plan organization of each housing module is characterized by two squares imbricated into each other but in elevation, one of them is higher, conferring a peculiar leaning and inhabited roof design to the whole.
Each housing block is rotated 45 degrees in relation to the road. This was a determining design choice to enhance and prolong both the public space on one side and the existing inner yards of the neighbor housing block in the north. This would confer a sense of greater space to the normally rather intricate densification happening at this very same spot. The buildings meet angle to angle and by doing so, optimize the facade and ground areas that can be reached by natural lighting. The metal cladding on the roof reflects the light, and the timber facades help blend in into the rather green surrounding context.
Project gallery
客服
消息
收藏
下载
最近


















































