查看完整案例

收藏

下载

翻译
Architects:Michael Flowers Architect
Area:155m²
Year:2022
Photographs:Gregor Halenda
Manufacturers:Loewen
Lead Architects:Michael Flowers, Seth Moran
Construction:Owen Gabbert, LLC
City:White Salmon
Country:United States
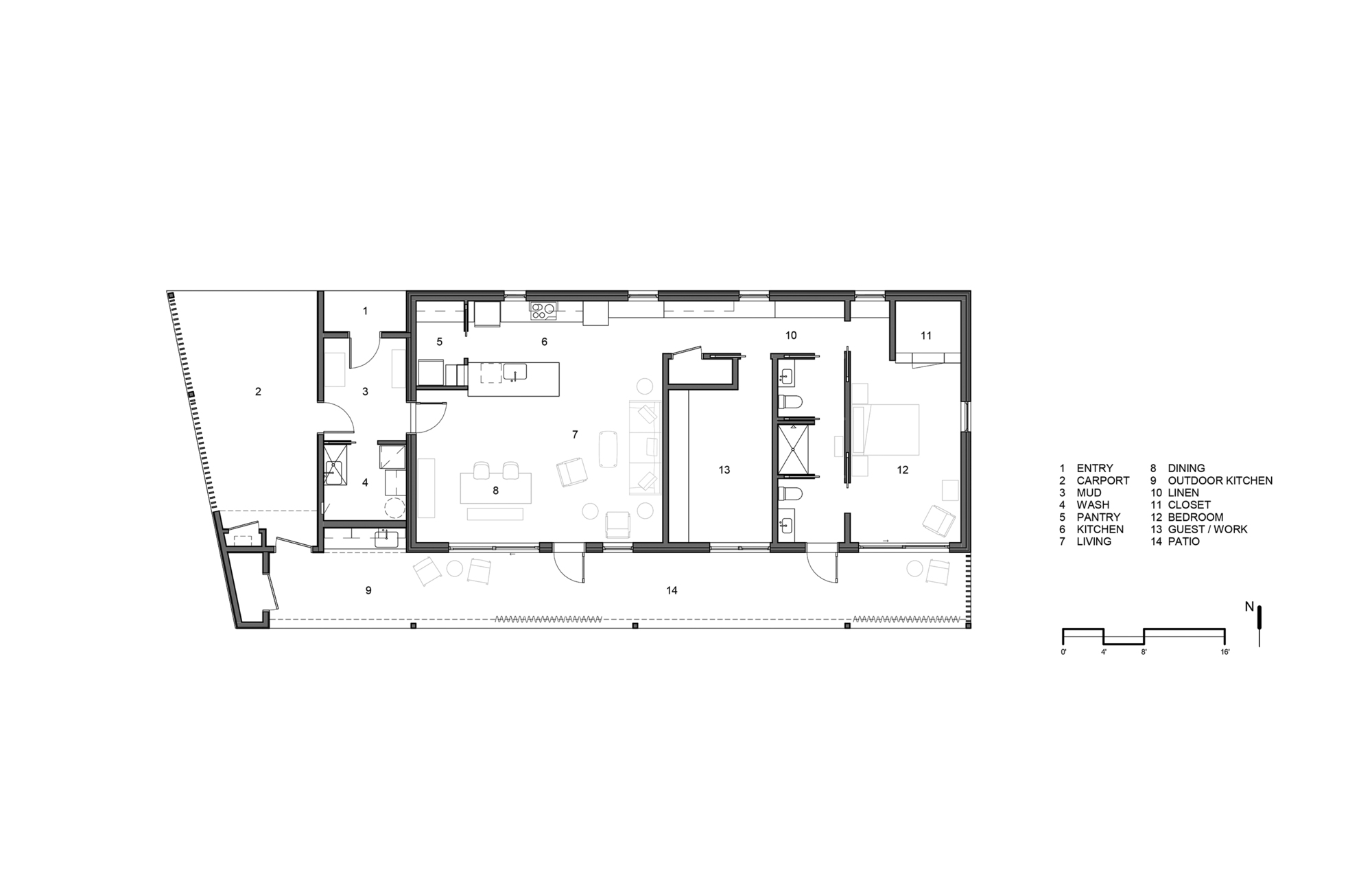
Text description provided by the architects. This small, unassuming residence is situated along the Columbia Gorge, in White Salmon, Washington. The property is nested in firs and hemlocks on a flat bench between the velvety upslope to the north and steep downslopes of the gorge.
Composed as a singular massing, the building is an exercise in simplicity and formal response to the site. The weather-hued metal clad finish of the roof and north façade are a strategic response to an existing grove of mature trees both on site and from neighboring homes. The adjacent wood cladding calms and deliberately emphasizes the exterior experience as the material transitions. A cedar slatted carport negotiates the site, opening to a southern exposure wrapping around from the west. The garden dissolves into a deep porch that embraces the open southern exposure of the site.
One of the primary elements of the home is the deep porch that spans the entire southern exposure, providing ample space for outdoor entertaining even during harsh weather. The porch also leads to an outdoor kitchen and cooking garden, creating a beautiful and functional space for hosting friends and family and offers an all-season connection to the garden, landscape, and views.
The challenge of minimizing energy use while balancing the site’s unique features was expertly met through careful site analysis and solar modeling. Using both passivhaus principles and active technology, the result is a home with both a highly insulated envelope and seamless blending of interior and exterior spaces through the transparency of thoughtfully placed glazing.
Project highlights: Net-zero performance, solar and battery back up to support multi-day off-grid living, air filtration systems to support smoke event resilience.
Project gallery
客服
消息
收藏
下载
最近




















