查看完整案例

收藏

下载

翻译
Architects:DB Estudio de Arquitectura
Area:610m²
Year:2022
Photographs:Paul Renaud
Manufacturers:Hansgrohe,Cortizo,Docol,Gree,Knauf,MARAZZI,Portobello
Lead Architects:Daniela Bejarano, Dayane Vega, Carlos Rojas, Rodrigo Farel Salazar, Emirzon Paraba Majon
Hydrosanitary:Mario Gonzalez
Electric:Ronald Manzaneda
Structure:Zelmar Ybáñez
AC:Mainter s.r.l
Carpentry:Aluminier
Locksmith:Alsevic
Flooring And Coatings:Tumpar
City:Santa Cruz de la Sierra
Country:Bolivia
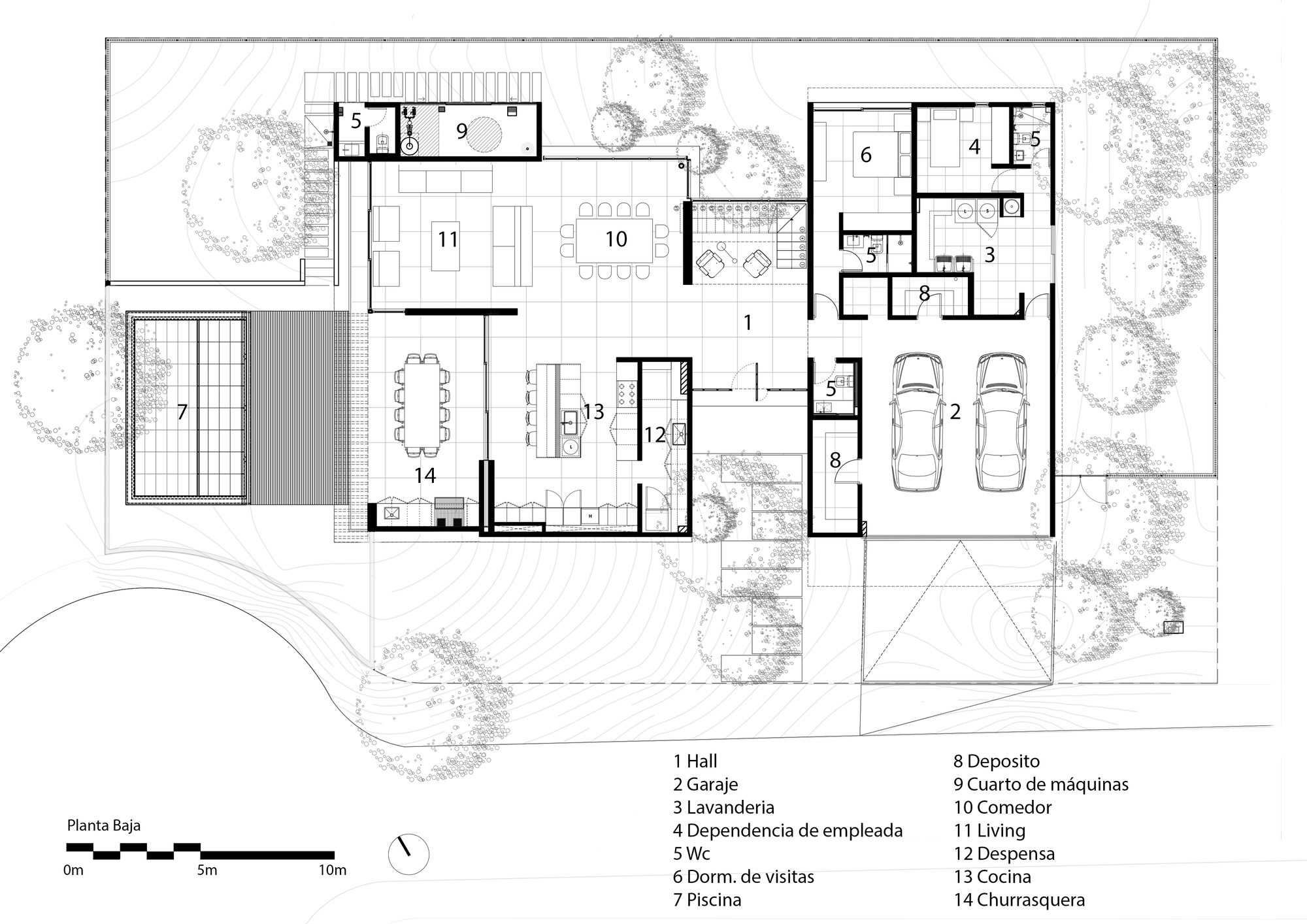
Text description provided by the architects. Designed in a residential condominium with abundant endemic vegetation, the main premise of the project was to find a symbiosis between architecture and landscape. Seen from the outside, solid volumes of concrete predominate, giving the sensation of fluctuating over the vegetation. The morphology and layout of the volumes result from respect for the largest existing trees.
Architectural elements such as metal pergolas are only used to integrate these trees and become a substantial part of the project. The main facade is dated to provide privacy to its users, while the rear facade opens to the landscape that surrounds it to take advantage of the best form of the views.
Upon entering the house we are greeted by a double-height space, a kind of glass box with diffuse exterior/interior limits that becomes the main connecting element of the project, both horizontally dividing the social zone and the service zone, as a vertical, dividing the social area and the private area, once the stairs are found there. This entrance area helps the user feel immersed in the vegetation.
The predominant materials on the exterior are apparent concrete with a ripped texture, sheets, beams, metal beams, and glass, while the interior presents a comfortable atmosphere thanks to the ripped wooden coverings.
Project gallery
客服
消息
收藏
下载
最近























