查看完整案例

收藏

下载

翻译
Architects:Tayane Vasconcelos
Area:643m²
Year:2022
Photographs:Favaro Jr.
Lead Architect:Tayane Vasconcelos
Engineering:Romildo Antônio de Oliveira, Alberto Chierighini
Landscape:Roberto Riscala
Construction:Jattobá Construtora
Electric And Hydraulic:Denise Chierighini
City:Fazenda Vila Real de Itu
Country:Brazil
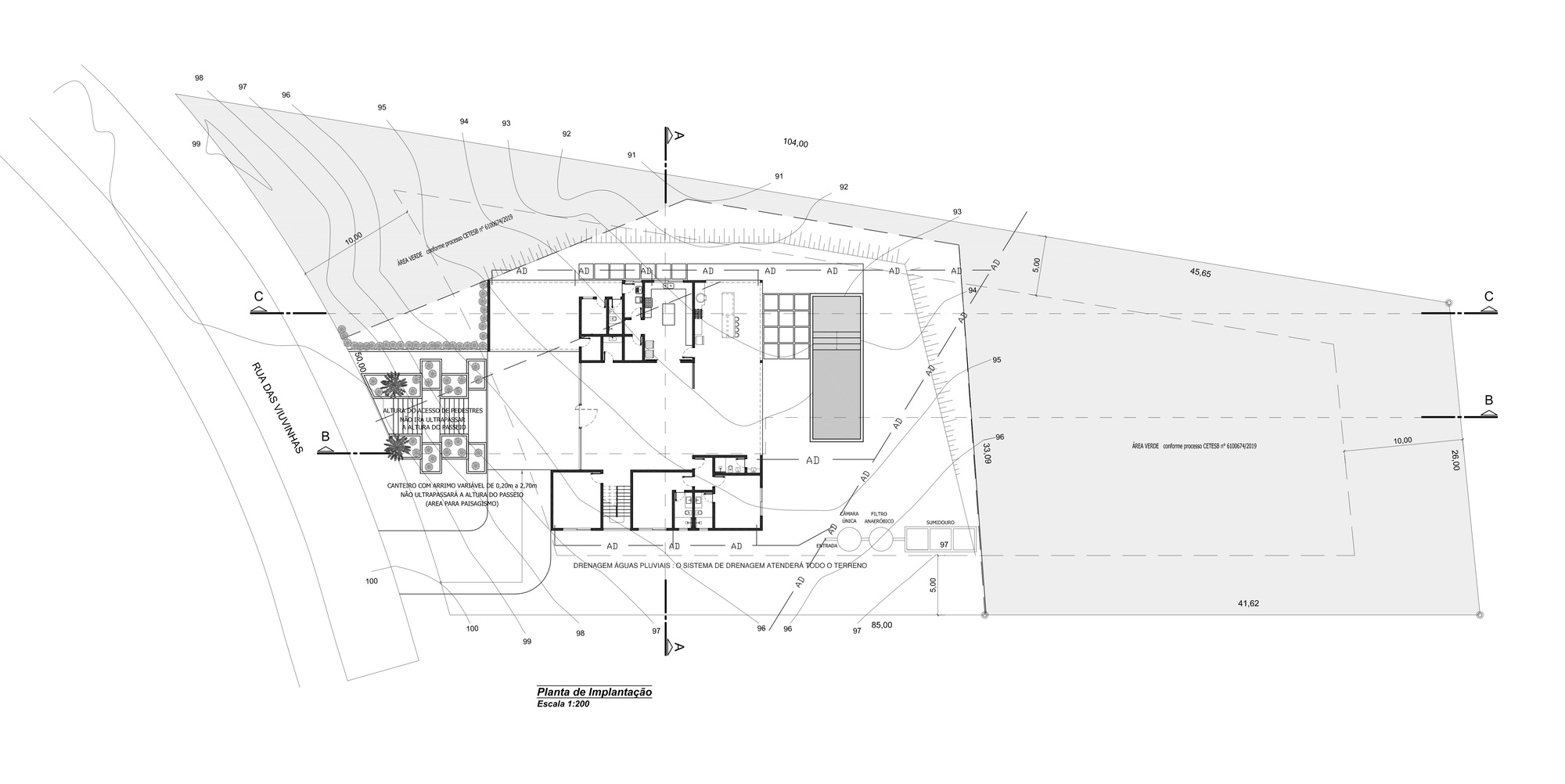
Text description provided by the architects. A summer house for a family from São Paulo with the dream of escaping the hustle and bustle of the city and enjoying moments with their family at a slower pace. Located in Itu, SP, and surrounded by preserved green areas, Casa da Mata was designed with accessibility in mind for the family. The living room is integrated with the kitchen, TV room, gourmet balcony, and social area, all designed to bring family and friends together.
On the ground floor, there are 2 bedrooms and 3 suites on the second floor, one of which is a Master suite with a closet and bathtub. Also on the lower floor, there is a gym with a view of the preserved forest that surrounds the property. Raw materials were used to bring harmony to nature - wood, stone, and concrete are present in all environments. The facade of the house and the gourmet balcony feature handcrafted concrete cladding. The wooden table, with an organic edge, completes the harmony.
Highlighting the landscaping project by Roberto Riscala, with a fire pit, bringing well-being and comfort to the house.
Project gallery
客服
消息
收藏
下载
最近
































