查看完整案例

收藏

下载

翻译
Architects:Alberto Pizzoli Architetto
Area:400m²
Year:2022
Photographs:Lorenzo Linthout
Manufacturers:41zero42,Cielo,Colavene,Rimadesio,Schüco,Vitra
Lead Architects:Alberto Pizzoli
Structural Engineer:NEF Ingegneria
Building Permits:Silvano Pizzoli
Contractor:Riccardo Peroni
Landscape Designer:Vivai Progetto Natura
Furniture Supplier:Negretti Arredamenti
Wood Supplier:CG Edilservice
City:Villafranca di Verona
Country:Italy
Text description provided by the architects. The house is located in the countryside south of Verona, on the edge of a small town surrounded by cultivated fields and productive buildings.
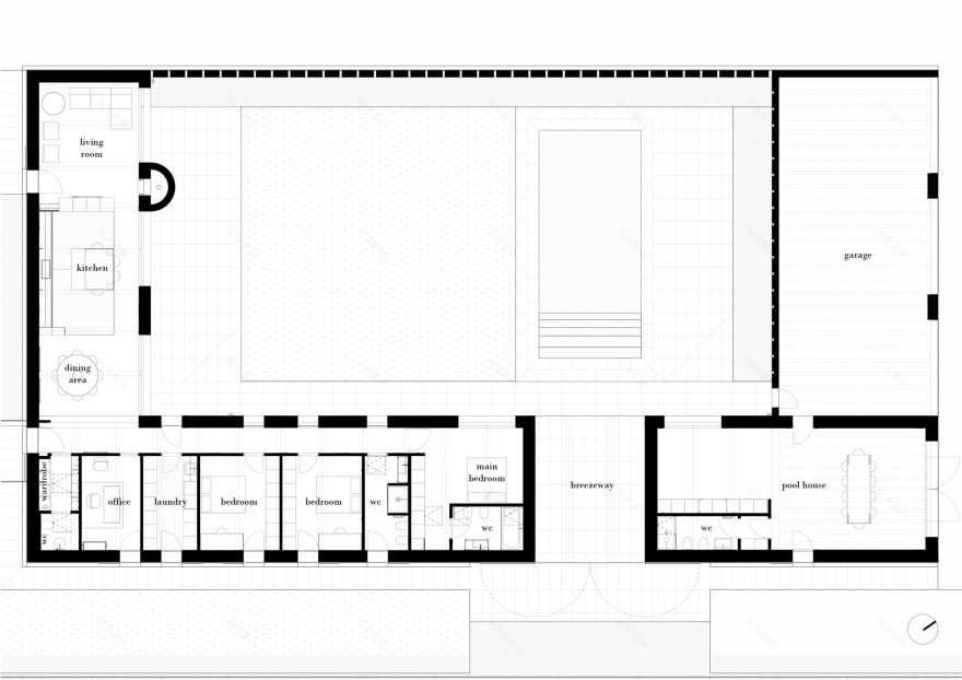
The direction of the project follows the proportions of the agricultural plot: the intuition, once the minimum distances from the boundaries have been identified, is to draw the building perimeter and distribute the functions along this edge, creating a large central void.
The patio-house typology generates a clear separation between public and private domestic life, which becomes essential within a small community.
The house fits within the local production context, maintaining an industrial language in the composition of the exterior. The structure coincides with the finishes: the only decorative touch is the insertion of OSB boards inside the formworks; when the concrete is cast, it takes both the warm hue of the material and the chiaroscuro of the chips inside the boards. The result is a camouflage surface that enhances the surrounding greenery. The roofs and the other complementary elements are clad in clear aluminum, in the same tone as the concrete shades.
The main facade is a a barrier set against the road. Entering becomes the discovery of a balanced interior built around a void. The only clues to a residential use from the outside are the access porch and the large, glazed triangle of the front roof, a domestic archetype. The triangular transparency also reveals the contrast with the material warmth of the interior.
Both the floors and the roof structure are in fact made of wood. The peculiarity is the use of double coupled beams, with 180 cm structural span, that hide the light fixtures inside them. The full-height sliding windows follow the structural rhythm to open the entire living area to the patio. The only elements that organize the space are the custom-designed kitchen cabinets.
Thanks to these wide open spaces with the interior garden as a reference point, once inside the house the interior distribution is immediately very clear. The west wall stands out when entering the patio, dividing the garden from the driveway. Vertical rectangular columns alternate with full-height gaps that give rhythm to the entire element, allowing air to enter the patio and generating a pleasant filter effect with the surrounding greenery.
The living area is divided from the agricultural part of the house by a covered porch, open to the landscape and interior patio and aligned with the pool. The infinity edge is made of stone, laid dry on small supports of the same material. Water flows under these heavy elements, which seem to float on its surface. The backdrop of the indoor garden is an organic contrast to the neutral tone of all the materials. A pleasant composition of tall exotic plants alternates with shrubs and medicinal plants in front of the open walls. The effect is a peaceful environment, a natural oasis that makes the patio an enchanted place.
Project gallery
客服
消息
收藏
下载
最近

































