查看完整案例

收藏

下载

翻译
Architects:Loader Monteith
Area:175m²
Year:2022
Photographs:Henry Woide
Structural Engineer:Adam Hemmings Structural Solutions
Project Team:Matt Loader (both), Louis Wiszniewski (office), Iain King (house)
Main Contractor:Aspen
City:Inverness
Country:United Kingdom
Text description provided by the architects. A slim parcel of forgotten roadside land has been transformed into the headquarters for international mountain bike tour operator, H&I Adventures by Loader Monteith, completing the first phase of a new mixed-use brownfield development.
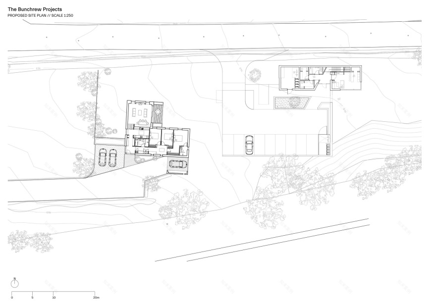
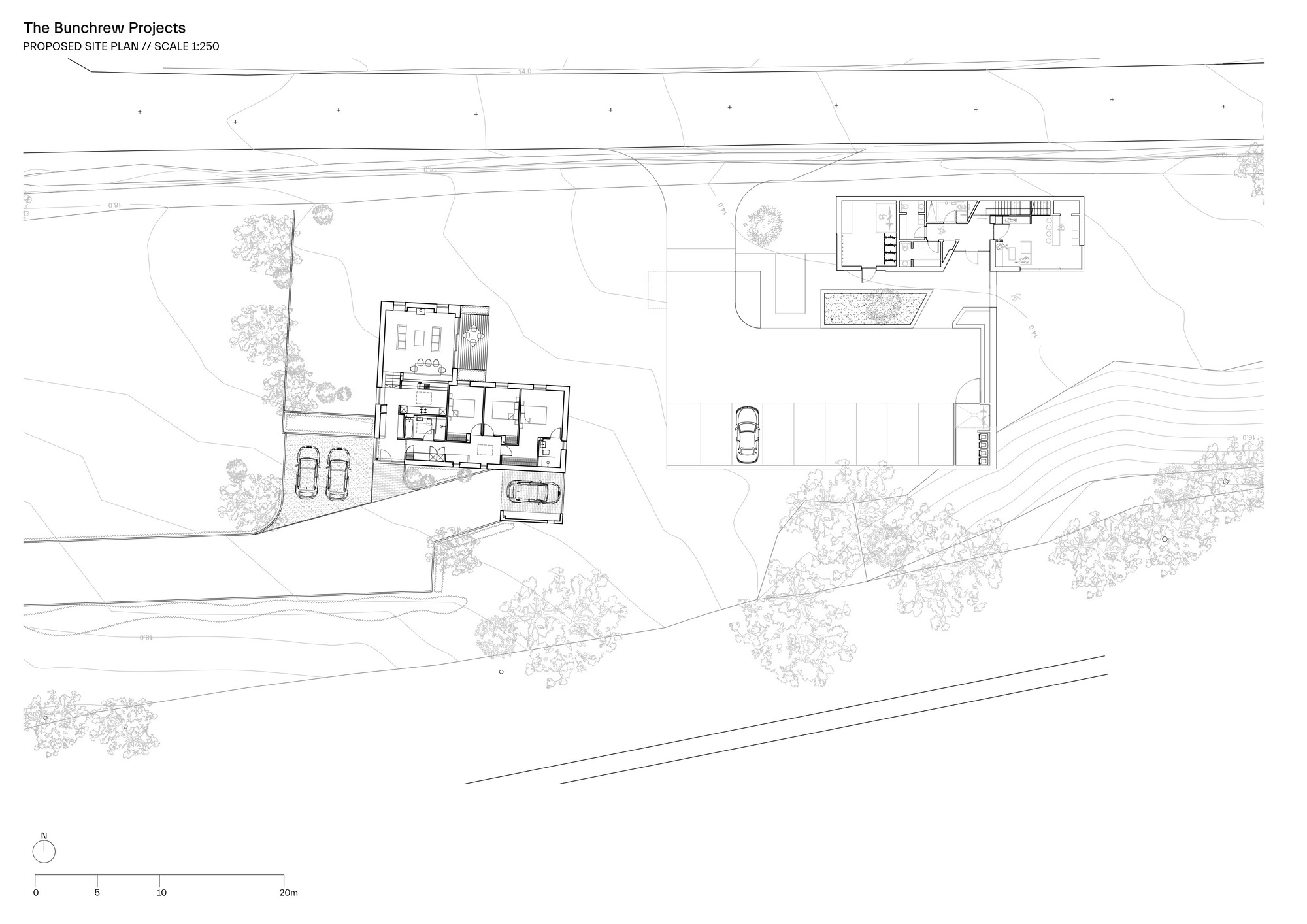
The 5600 square meter plot lies to the west of Inverness in northern Scotland. Owners and operators of H&I Adventures, Catherine Shearer and Euan Wilson, approached Loader Monteith for their expertise in working with challenging sites and locations and progressive approach to sustainability. The clients sought to transform the long and narrow roadside site into a base for their thriving international tourism business and develop two new low-energy homes.
The project closely connects with Loader Monteith’s interest in revitalizing rural communities through the creation of new rural-remote coworking and community hubs, across new build and adaptive reuse construction. Loader Monteith’s masterplan for the slender, sloping site includes three new buildings; a two-storey office building and bike store, and two private residences. The new workplace and one house were completed in 2022, with the second house due for construction in early 2024.
The office is the welcome point for international tour-goers and represents H&I Adventures' focus on hospitality and design excellence. As such, the clients briefed Loader Monteith to deliver architecture that foregrounds and sets a high standard of Scottish design experienced throughout tours. The two-story H&I Adventures office sits to the northeast of the plot boundary, wrapped in slim burnt larch cladding punctuated by a rich corten corner detail and recessed glazing designed to capture the far-reaching views across Beauly Firth.
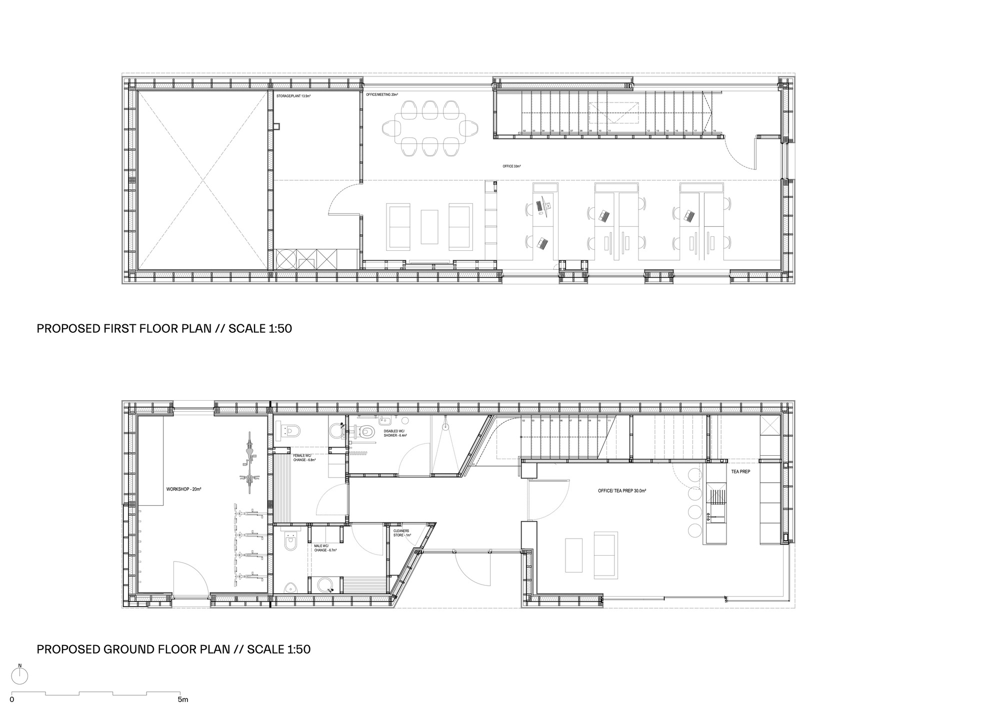
The office features a workshop, two showers and changing rooms, and a kitchen and breakout space at ground level. The kitchen faces south, overlooking the landscaped car park and mature treeline through a frameless glazed corner. It is lit by floor-to-ceiling sliding glazing, allowing staff and visitors to enjoy level access to the outdoors year-round. A warm material palette of ochre, graphite, and timber cabinetry defines the kitchen, offset by modern white tiling with black detailing. Clean white walls, polished concrete flooring, and timber ceiling paneling maintain a contemporary feeling inside, ensuring the verdant surroundings take focus to create close connections to the landscape.
H&I Adventures’ desks and a meeting space are located on the first floor, under the generous pitched roofline of the office. The open-plan office seats up to 10 staff members comfortably at long black tables set perpendicular along the southern elevation. A long window affords the studio expansive views north across Beauly Firth from the meeting table, with further glazing added in neat sections along the southern elevation for passive ventilation and views of the trees.
Two new low-energy homes are plotted at the sloping site’s highest point allowing for water views and making use of the topography to create a distinction between living and work zones.
The first completed house features a Z-shape plan. An open-plan kitchen and living area unfold from the entrance hall, stepping down into a generous social space in line with the sloping site. Custom joinery offers built-in dining seating, lit by large sections of triple glazing. A family bathroom, two bedrooms, and a main bedroom suite is bookended by an external carport to complete the layout.
The house establishes its character and relationship to the landscape through a considered and impactful use of readily-available materials such as timber battens and slender metal. A multi-layered arrangement of varying timber creates a subtle and sophisticated facade, allowing the gentle butterfly roof form to offer visual intrigue. Layered patternation of varying timber widths laid out in gaps and dips adds elegant and subtle interest to the home. The weight of the black timber is broken by a slim metal datum detail on the facade.
The private residence employs timber frame construction, highly insulated to reduce heat loss and warmed by an air source heat pump retained by triple glazing. The home is clad in charred timber, a technique known to maximize durability and weather gracefully. In the summer months, the spaces benefit from natural cross ventilation. Unlike generators, a powerwall battery keeps the house charged without upkeep, fuel, or noise. Paired with solar power, the home draws very little energy from the grid, resulting in a highly efficient and inexpensive building. This approach to minimal energy usage and low embodied carbon materials will be replicated in the second build, which is due to start on-site in 2024.
Project gallery
客服
消息
收藏
下载
最近











































