查看完整案例

收藏

下载

翻译
Architects:Idee architects
Area:650m²
Year:2022
Photographs:Trieu Chien
Manufacturers:Dulux,Eurotile,Vicostone,Xingfa
Lead Architect:Tran Ngoc Linh
Constructor:Truong Tho Construction
Architects:Tran Ngoc Linh, Nguyen Huy Hai, Nguyen Dac Nguyen, Vu Thi Thanh Tam
Structure Engineer:Nguyen Quý Nam
Mep Engineer:Lê Xuân Thắng
Program / Use / Building Function:House
Country:Vietnam
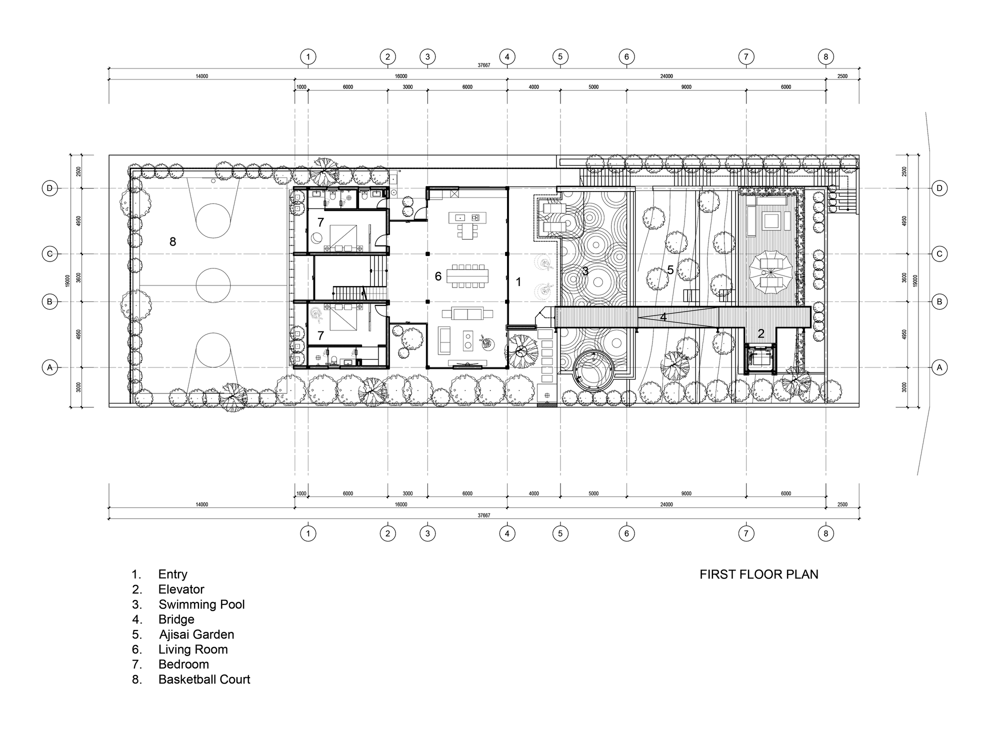
Text description provided by the architects. The house is situated on a steep mountain slope, overlooking a vast valley with a view of a golf course and the Tam Dao Mountain range. The steep terrain provides a stunning view but poses a design challenge regarding access at such a high elevation. With a land area 1000m2, the client desires an open, nature-oriented residence with a sense of privacy. The goal is seamless integration with the surrounding natural landscape. The space should accommodate an extended family with five bedrooms and additional auxiliary spaces.
The architect's solution divides the property into two parts. The upper block is at the highest point, offering abundant natural light and ventilation. The lower block includes a garage and auxiliary functions, serving as the primary access point from the front road. A dedicated elevator block ascends directly to connect with the main house via a steel bridge, guiding a journey through the garden, swimming pool, front yard, and to the house. Functional blocks are positioned on varying levels, gradually ascending towards the rear, culminating in a garden area incorporating a basketball court at the end of the plot.
The main house is constructed with a steel frame finished with stone and natural wood, sheltering the house from the impact of drastic weather conditions in the area. Wood and expansive awnings are inspired by traditional Vietnamese architectural spaces featuring rows of columns and symmetrical spaces. The main traffic axis is centrally balanced between the house and the various open spaces, connecting the front yard to the rear. The spaces between the elevated levels gradually open up new vistas, linking with the project's backdrop.
The garden and the roof of the garage block are connected, expanding the flower planting area. Here, the homeowner has space to cultivate Hydrangeas, a beloved flower. One can admire this garden from the adjacent staircase or the bridge leading to the house.
With a square layout and intersecting circulation spaces, the elongated edges of the house are accessible to natural light and nature. Two small gardens on either side extend into the middle of the house, creating a borderless connection between indoor and outdoor, nature and human. The central void space is maximized, providing privacy for the rooms and optimizing the number of rooms within the house. The large roofs and spacious balconies act as buffers for the structure while allowing cross-ventilation between the front and rear of the house. The structure's layout is visible from above, with distinct blocks connected along a unified axis.
Project gallery
客服
消息
收藏
下载
最近























