查看完整案例

收藏

下载

翻译
Architects:Birdseye
Area:5000ft²
Year:2022
Photographs:Michael Moran Photography
Manufacturers:AutoDesk,Allied Maker,Ann Sacks,Brendan Ravenhill,Brookwood,Cedar and Moss,Cle,DUNN,Griffin Design,Hunt Hardwood,Isamu Noguchi,Mosa
Interior Designer:Brooke Michelsen Design
Landscape Architect:Wagner Hodgson Landscape Architecture
Structural Engineer:Engineering Ventures
Civil Engineer:Technicon
Principal Architect:Brian J. Mac
Project Manager:Peter Abiles
General Contractor :Vermont Barns
City:Stratton
Country:United States
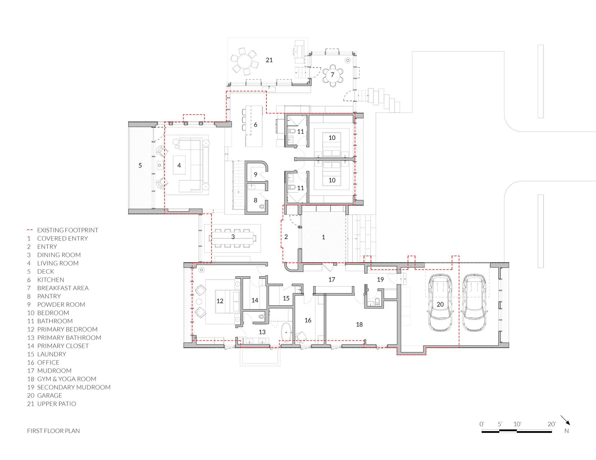
Text description provided by the architects. Chalet is a renovated, re-envisioned vacation home located slope-side at Stratton Mountain in Vermont. The existing dilapidated 1960s home was demolished down to the foundation and first-floor framing. Additions to the existing footprint along with a new landscape and entry auto court are tightly knitted within the parcel’s wetland buffers.
The project embodies the contextual language and scale of adjacent mid-century homes. The first-floor spaces consist of a sunken living room with a wood-burning stove, kitchen, breakfast space, powder room, primary suite, two ensuite bedrooms, garage, mudroom, entry bathroom, office, and exercise room. The lower walk-out floor includes the ski room (with slope access), game room, TV lounge, bunk room, bedroom suite, bathroom, and laundry. Exterior spaces include a living room porch, breakfast terrace, firepit, and hot tub terrace.
Conceptually, the design of Chalet is inspired by iconic mid-century ski homes, notable for large slope-side glazing, gabled roofs, wood siding, and walk-out lower levels. Chalet is designed with two main gable forms clad in natural wood and connected through a perpendicular, modulated contemporary black bar. Repurposed Douglas fir cladding applied as a chevron-motif rain-screen is reminiscent of wood detail patterns of mid-century architecture and a nod to the siding pattern of the original structure.
The two cantilevered gables overlook the adjacent ski run and hover above the rugged landscape whilst the lower walk-out floor integrates into the sloping topography. The storefront window system and panel detailing, paired with the natural wood, create a grounded contemporary architectural language. The interiors are warm and accentuated with white oak floors, walls, and ceilings. Custom-built interior doors, bookshelves, kitchen cabinets, window seats, bunk units, storage cabinets, and detailing are finely crafted and integral to the interior experience. Custom furniture is built by local artisans. All interior wood is locally sourced from New Hampshire.
Ecological sensitivity and site integration are important considerations for the project. The house is designed to be visually congruent with the high-mountain landscape of the ski resort. Repurposed snow fencing in a chevron pattern clads the home as a rain screen. The weathered siding and its deep shadow lines create a dimensional and natural backdrop to the mountain flora and forest. The design team collaborated with the general contractor and all subcontractors throughout the building process to make a cohesive, artfully crafted project.
The landscape uses 100% native plants that require no secondary watering. Roof rainwater is captured and collected through a series of hard piping that distributes the water evenly, mitigating erosion. The use of an existing concrete foundation and infrastructure helps minimize material consumption and lower the carbon footprint. A mechanical fresh air exchanger, low-VOC finishes, LED lighting, and operable windows with solar shades enhance the indoor experience. During demolition, waste was managed by separating recyclables and properly disposing of land-fill materials. Triple-pane windows and thermally broken R40 walls and R60 roofs create an efficient building envelope. A fossil fuel-free geothermal HVAC system heats and cools the house.
Project gallery
客服
消息
收藏
下载
最近



























