查看完整案例

收藏

下载

翻译
Architects:ERNST - Office for Architecture
Area:246m²
Year:2022
Photographs:Sebastian Felix Ernst
Lead Architects:Sebastian Felix Ernst, Patrick Krämer
Structural Engineer:Merz Kley und Partner
Construction:Holzbau Forster
Energy Planning:Bau8sam
Interior Design:Diana Carbach
City:Lindau
Country:Germany
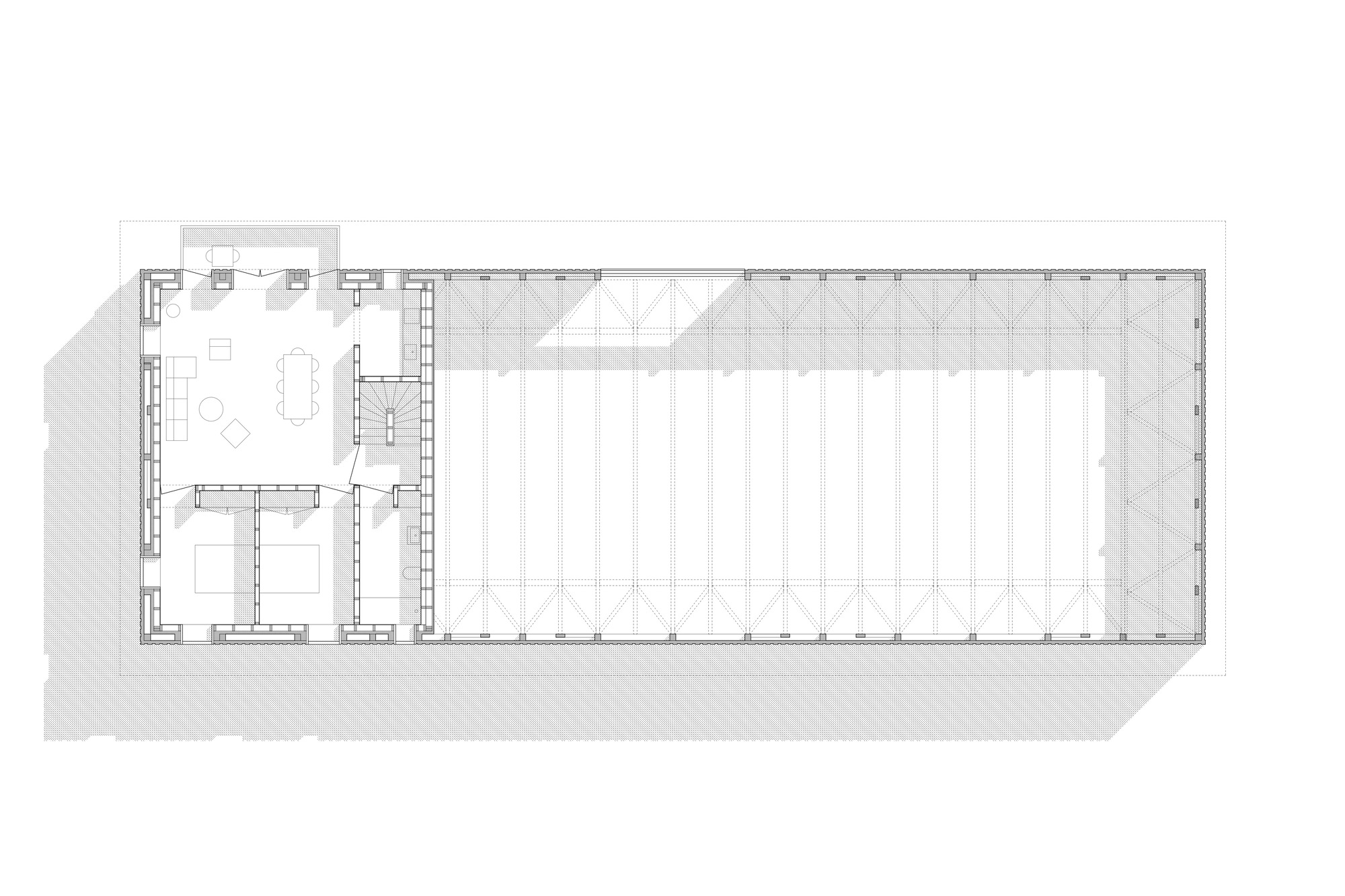
Text description provided by the architects. Conversion project of an agricultural structure, Lindau, DE, 2020-2022, completed. Together with a strong team of professional planners, we successfully completed the sustainable conversion of an existing barn into a residential unit and multifunctional storage space in 2022.
The existing wooden structure was preserved so that the new residential unit is cantilevered as a "crab" into the old shell. This special wall construction, in which the weathered façade of the barn becomes the ventilated top layer of the new unit, creates deep window reveals, which we made usable and tangible as benches.
The balcony and the gray-painted wooden windows blend unobtrusively into the overall picture of the rural typology. An extremely clear floor plan, as well as simple finishes, found an appropriate language in the design. Flush exposed wood doors and the framing of the window niches create accents.
In addition to the design using local and low-emission building products, the clever use of the existing structure compared to a new building, the continued use of the outer shell, and the absence of a new foundation meant that a large part of the CO2 emissions could be dispensed with. In combination with insulation in wood fiber boards and south-facing windows, it was possible to create a resource-saving and energy-optimized building.
Project gallery
客服
消息
收藏
下载
最近




























