查看完整案例

收藏

下载

翻译
Architects:23o5Studio
Area:132m²
Year:2022
Photographs:Hiroyuki Oki
Manufacturers:Technal,Grohe,Schneider Electric,Hafele,Jotun,SAT Lighting,Trường Thắng
Lead Architects:Ngô Việt Khánh Duy
Design Team:Phúc Đoàn, Hoàng Phúc, Huy Hoàng
Country:Vietnam
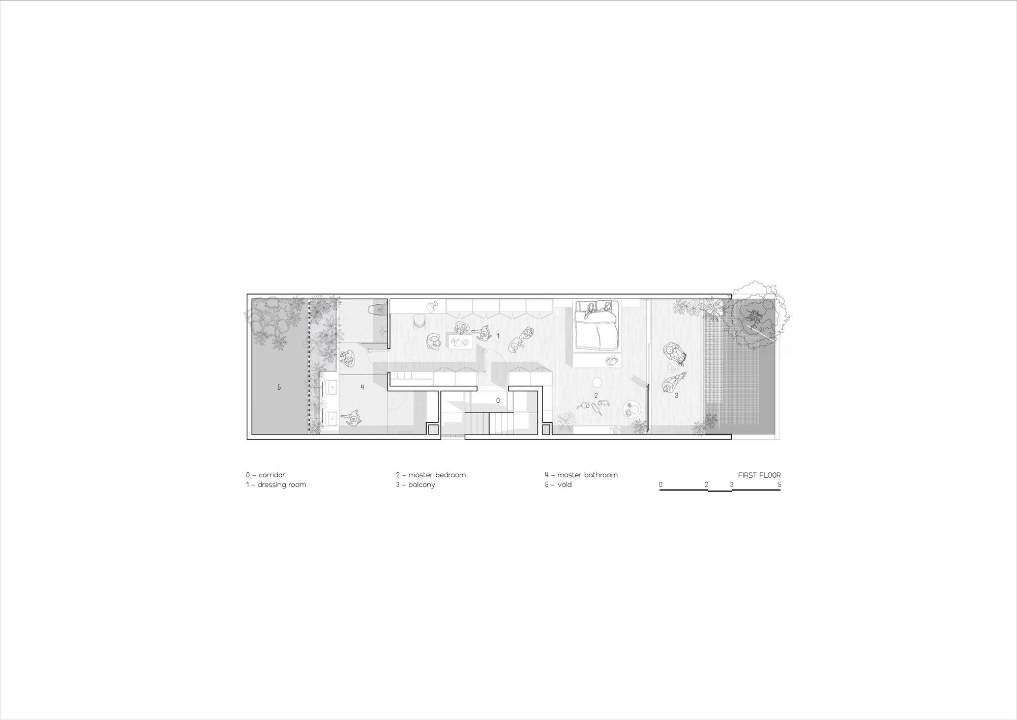
Text description provided by the architects. The 140THL House is part of a larger initiative, including a succession of compact urban dwelling projects we are undertaking now. Due to the fast economic and demographic growth in Saigon, the availability of urban space has been increasingly constrained, resulting in a heightened sense of congestion and inadequate ventilation. One crucial matter that necessitates thorough examination and serves as a standard for most of our modest housing initiatives is optimizing green space use, harnessing wind flow, and fostering a harmonious integration with the natural environment.
The influx of water into the residential area necessitates implementing measures to mitigate the adverse effects of noise, dust, and sun radiation. The urban tree density in Saigon is notably low, with just 2-3m2 per person. A viable and efficient approach to improving the overall living environment within and outside buildings is strategically incorporating trees into vacant and limited places. Moreover, in light of the accelerated rise in ambient temperature resulting from global climate change, the city of Saigon is experiencing a steady annual increase in temperature by around 1-2 degrees Celsius.
Consequently, the internal space is partitioned from an external foam shell, generating shaded regions that indirectly modulate the internal temperature inside the space while concurrently serving as a barrier against external dust and noise infiltration into the structure. Using thick, multi-layered glass offers favorable thermal stability and lowers urban noise levels, enhancing the potential for relaxation in a serene and tranquil environment. The issue at hand is not novel, and the proposed solution is straightforward and widely employed.
Our objective is to establish the capacity for horizontal expansion and advancement in spatial development, establishing a universally applicable framework that fosters creating more environmentally sustainable, aesthetically pleasing, and acoustically tranquil urban environments.
Project gallery
客服
消息
收藏
下载
最近































