查看完整案例

收藏

下载

翻译
Architects:Arquipélago Arquitetos
Area:230m²
Year:2022
Photographs:Pedro Napolitano Prata
Manufacturers:Cortinato,Knot Artesanal,Madeireira Mato Dentro Paraty,Nadai Ferro e Aço,Olaria Tabuinha Cunha,Paraty Mix
Lead Architect:Marinho Velloso
Foundations:Magalhães Fontes Engenharia
Electrical Engineering:Magalhães Fontes Engenharia
Hydraulics:Magalhães Fontes Engenharia
Construction:Jhoston Tec
Landscape Design:Vânia Duarte Paisagismo
Joinery Contractor:Arnaldo de Oliveira Ross
Pool:EE Escritório de Engenharia
Country:Brazil
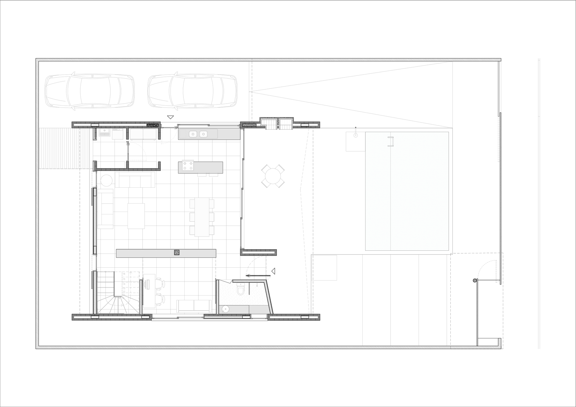
Text description provided by the architects. Located on Jabaquara Beach in Paraty, the house accommodates a relatively large program on a 360m² urban lot. The approach was to compactly position it at the rear of the plot, orienting all the bedrooms, living room, and kitchen towards the Bay view, thereby freeing up the front of the property to create a garden. In front of this garden, a spacious area exists, comprising a soccer field, sunshades, local dining kiosks, the mangrove, and, finally, the sea.
We aimed to convey the coastal living context in the design. In this regard, the ground floor extends beyond the covered veranda to include a swimming pool and was slightly elevated in relation to the original land profile, allowing a view of the horizon over the access wall.
This wall is a response to the challenge of shielding the house without obstructing the sea view. It mediates the relationship between public and private spaces through partial transparency achieved by using horizontally laid perforated bricks. These bricks filter light and sea breeze, acting as a regulator, while the perception of passersby on the street remains. Furthermore, they anticipate the materiality of the house, in harmony with their own exposed bricks.
We sought a materiality rooted in local knowledge and simple construction materials found in the region, used in an apparent and unconventional manner. Two large double brick walls define the external volume, protecting the house from the view of nearby neighbors. They serve as thermal radiators and allow for the vertical passage of house infrastructure piping. Between them, there is an interplay of planes with exposed concrete slabs and ceramic roofing.
A pergola over the upper veranda intentionally reduces the visual presence of the roof as mandated by regulations. For the garden, endemic plant species typical of the coastal and beachfront regions were used.
Project gallery
客服
消息
收藏
下载
最近








































