查看完整案例

收藏

下载

翻译
Architects:Studio AM11
Area:420m²
Year:2023
Photographs:Mavix + Pepe Mora
Manufacturers:Concretos Tepeyac,Gante,Gilsa,Grupo Lite,LUM Soluciones
Lead Architect:Alejandro Macias
City:Monterrey
Country:Mexico
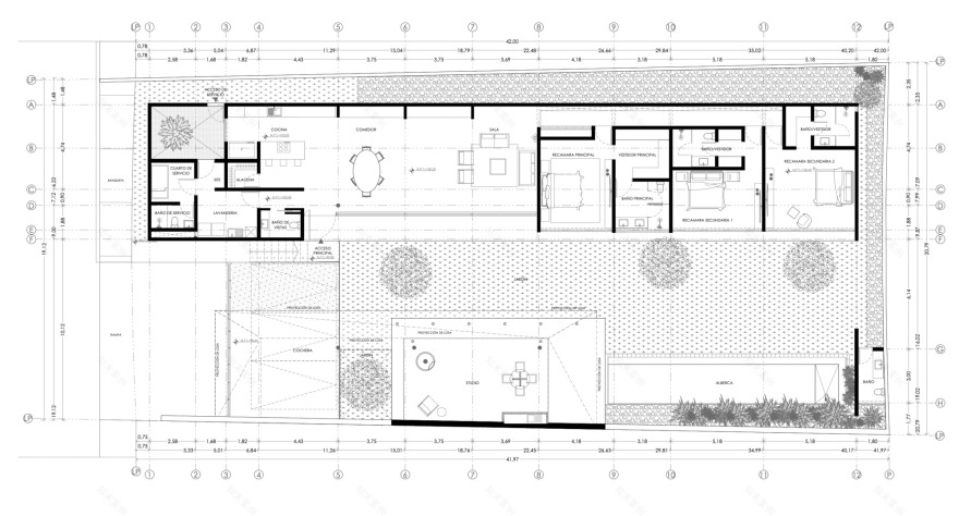
Text description provided by the architects. The feeling of flying and floating in the air is incredibly magical! The project is located at the base of Cerro de la Silla, in the municipality of Monterrey, Nuevo León. The property covers an area of 900 square meters and boasts a 430-square-meter construction, where the city's hustle and bustle successfully disconnects to create a space radiating peace and harmony with its surroundings.
A solid concrete monolith with cantilevers that appear to be suspended, as if they were soaring in the air, was proposed. Through transparency, we find this sense of tranquility and connection with the surroundings. The design incorporates open and linear spaces with floor-to-ceiling openings to frame landscape views and allows natural light to flood the interior of the house.
By using exposed solid concrete and materials such as wood and natural stone, we managed to seamlessly integrate Casa Gea with its surroundings, creating a palette of neutral colors and gray tones to maintain a natural aesthetic, reflecting the elegance and personality of the user.
GEA maximizes the use of spaces and minimizes the use of walls, using visual elements to delineate each area. In this project, our goal was for all areas, both social and intimate, to have a direct connection to the outdoors, promoting a sense of companionship and interaction with the garden. This design strategy effectively expands the perception of open space, providing unique views, natural light, and ventilation.
The overall result is a residence that not only captures the stunning feeling of floating but also harmonizes with the beauty of its natural surroundings. Casa Gea's architectural foundations are based on the use of clean, linear, and orthogonal elements to create coherent structures that integrate with the space. This home is tranquility, silence, and harmony.
Project gallery
客服
消息
收藏
下载
最近















