查看完整案例

收藏

下载

翻译
Architects:Bauclub
Area:200m²
Year:2021
Photographs:Severin Malaud
Illustrations:Stephane De Groef & Bauclub
Program:Single family house
City:Watermael-Boitsfort
Country:Belgium
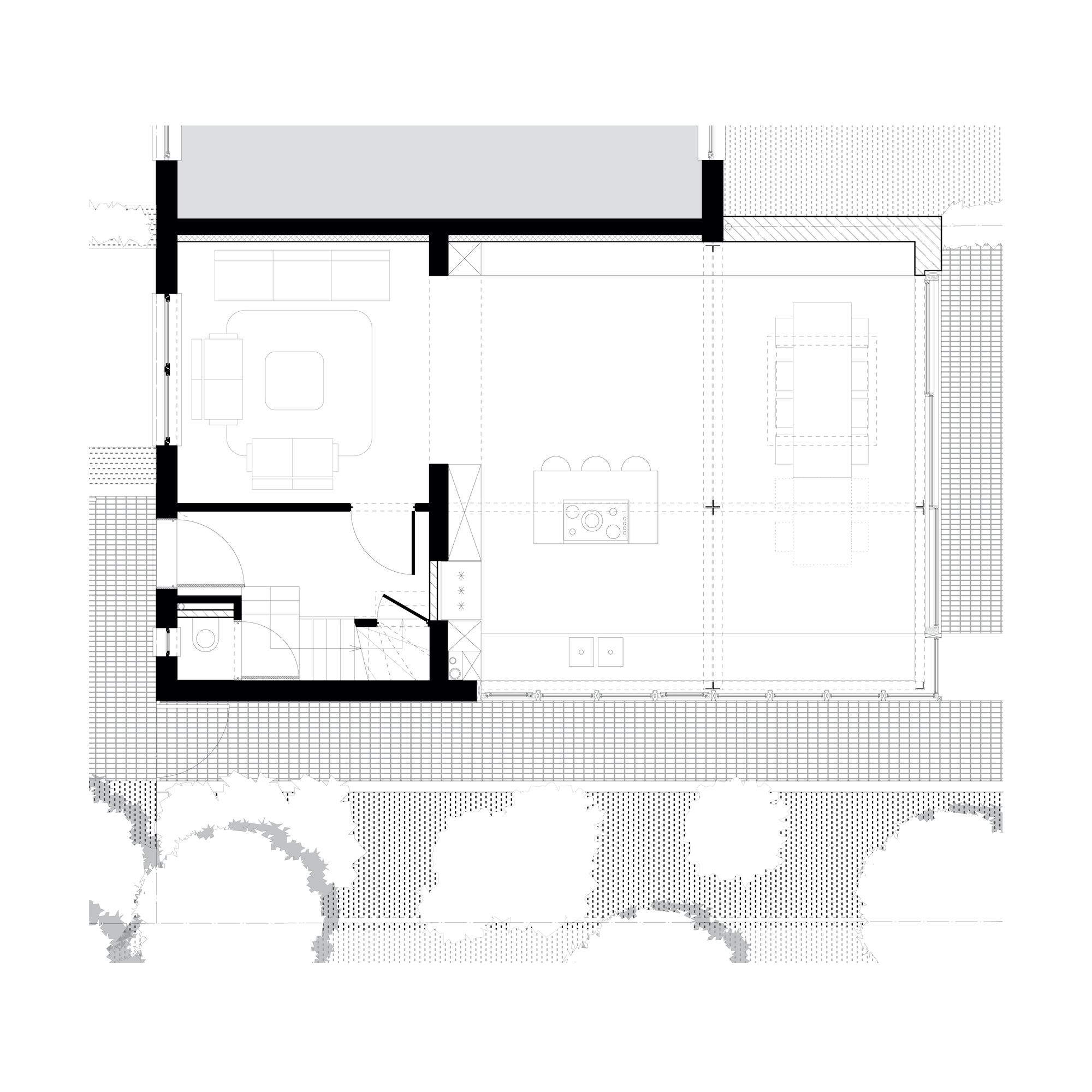
Text description provided by the architects. VNBC is a transformation of a family dwelling in Brussels. Part of a set of worker’s houses built in the 50’s in the residential and very green district of Boitsfort, in the south of the city, this house was composed of three very closed facades on the outside and of multiple small spaces without any connection or fluidity between each other.
The desire of the clients was to enlarge the house while ensuring a sequence of quality spaces, enhance the connection to the garden and improve the natural light.
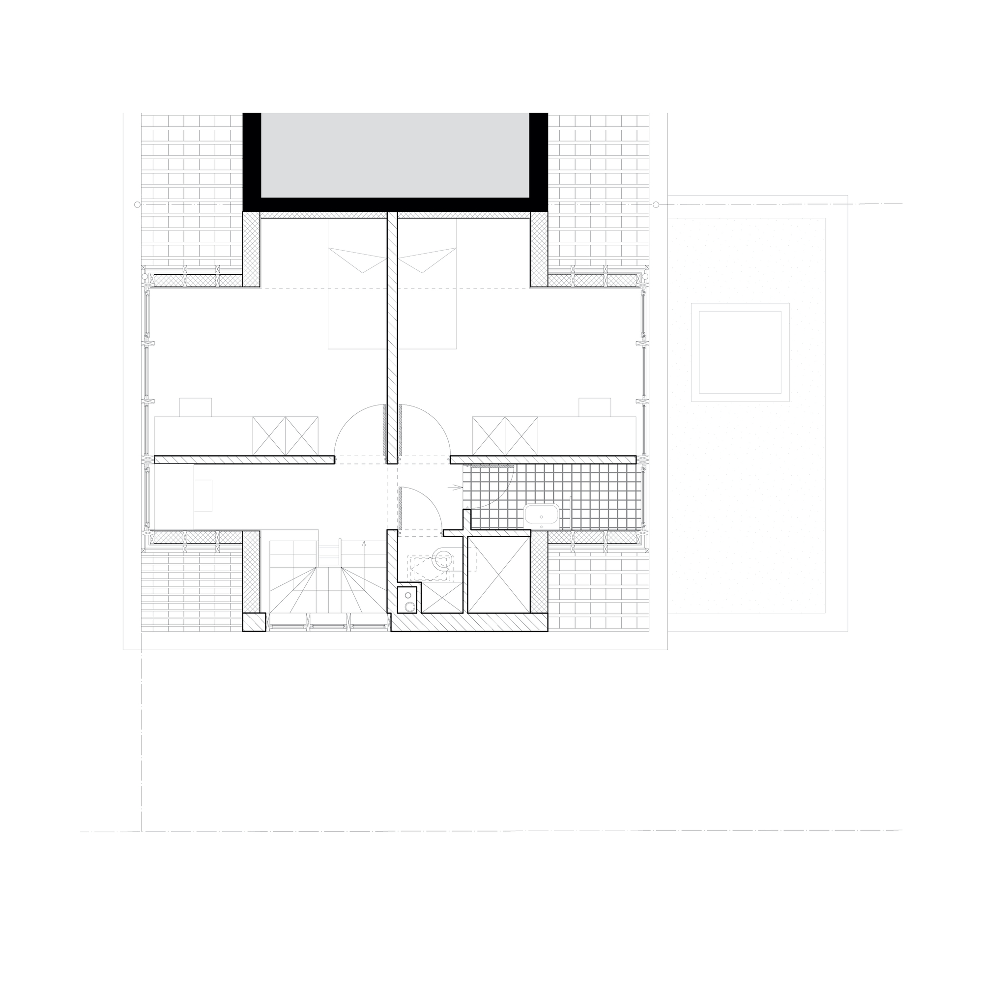
The suggested response consists of the interpretation and extension of the very simple, almost square, plan of the house; this, while respecting and enhancing the identity of the house and maintaining a clear readability of the serving spaces and those served. Through the intervention, the new spaces are expanded and differentiated while strongly linked to each other.
Surrounded by greenery, the living spaces are generously opened to the exterior.
The simplicity of the intervention and the readability of the spaces mark the quality of the project.The structure is left apparent and defines the extension through a clear expression of the modularity of the design and the versatility of spaces.
The challenge was to preserve the identity of the existing elements and adapt them to the new functional and energetical requirements of a contemporary dwelling.
A restructuring of the spaces on the first floor and an extension on the roof offer fluidity and welcoming family- life.
The chosen materials converse with the surrounding textures and colours. The enameled brick of the extensions reinterpret and extend the existing brick while distinguishing the new from the pre-existent. The same philosophy was applied to the roof tiles.
Project gallery
客服
消息
收藏
下载
最近

























