查看完整案例

收藏

下载

翻译
Architects:Rcubo
Area:145m²
Year:2023
Photographs:Leonardo Mendez
Manufacturers:Luggio Accesorios
Lead Architect:Carlos Vargas
Design Team:Carlos Vargas
Engineering:Felipe Ramirez
Tile Design :Leila Buffa
City:Luque
Country:Paraguay
Text description provided by the architects. Tatakua in Guarani means the cave where fire lives. It is the clay oven, the stove, and the meeting place for friends. Located in Loma Merlo, a growing neighborhood in the metropolitan area of Asuncion, where urbanity and rurality intertwine and constitute a single landscape with typical characteristics of the global south.
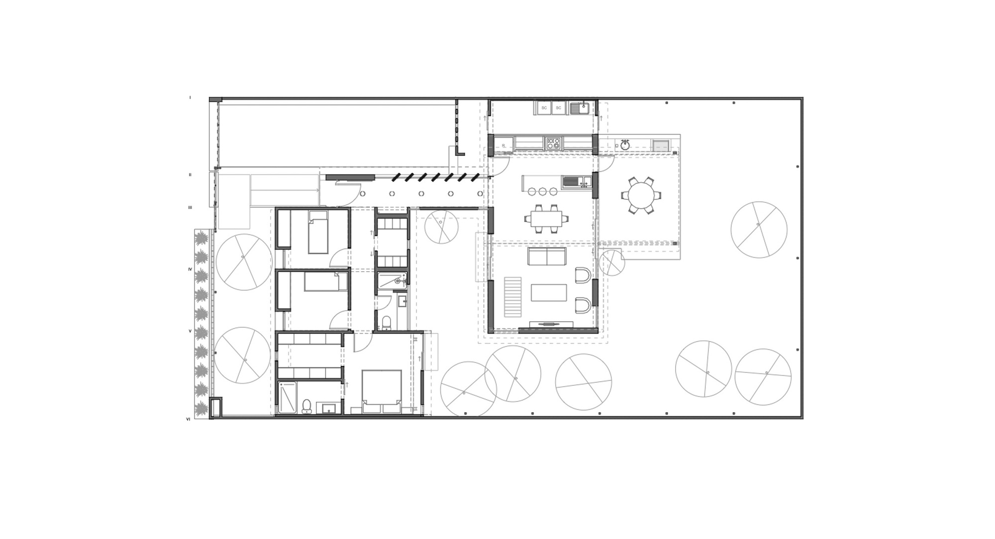
A house for a young couple, where good food and the processes of food production constitute the center of family and social life, which as a fundamental requirement should include a basement accessible from the kitchen for food production and storage.
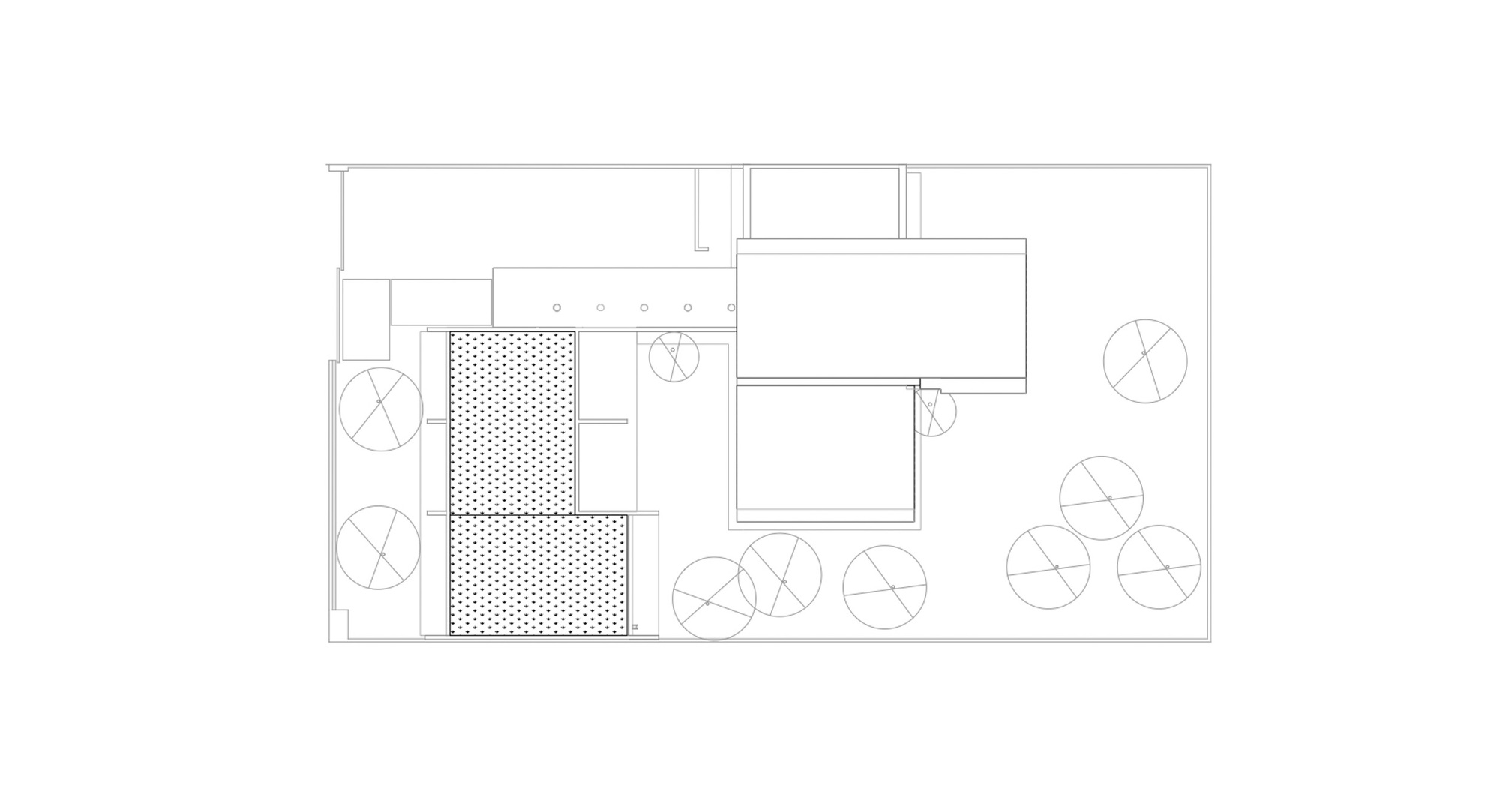
The house is implanted on a 27x14 plot within the clearings of the existing trees on the site, taking advantage of them as shade and focal points, generating internal and lateral courtyards. It consists of two blocks: one social and one private, connected by a vestibule to the north that functions as a thermal antechamber as it receives the most solar radiation.
The private block, towards the west front, houses the bedrooms with closets and wet cores on the facades that serve as air chambers. The social block, to the east, is conceptualized as an open hall; with the kitchen as the core, which extends to the east to a barbecue area that protects from the sun in summer.
The construction was carried out with load-bearing common brick masonry, braced by reinforced concrete beams. The soil extracted from the foundations and basement was used for cement soil walls, where thicknesses of 25 cm were required for thermal and structural reasons.
In the bedroom block, a green terrace on overlapping slabs allows for zenithal ventilation and entry of light to the interior circulations, generating views of the sky and trees. In the vestibule, handcrafted ceramic pieces and recycled glass embedded in the concrete slab in the form of chimneys are used to exclude hot air. Towards the north, brick panels turned to the northwest directing the main wind towards the interior, creating a play of shadows with the movement of the sun.
In the social block, a 7 cm thick reinforced ceramic sheet in a vaulted shape generates high ceilings and good air circulation, resting 20 cm from the concrete beams through metal blocks with a concrete core. Concrete eaves of 40 cm protect the walls from the sun and rain.
In the interior, the use of local and natural materials, such as cement soil, lime, and sand in the plaster and paints, ensures greater hygroscopic comfort and air quality. The sealants used for the ironwork and soil walls are natural and prepared on-site. The uniformity of materials - brick, cement, and soil - in floors, walls, and ceilings minimizes total waste in the construction.
To complement, most of the bathroom accessories, hardware, cladding, and furniture were made by local artisans and independent workshops.
Project gallery
客服
消息
收藏
下载
最近

































