查看完整案例

收藏

下载

翻译
Architects:FACE | Büro Florian Schätz
Area:273m²
Year:2021
Photographs:FACE | Florian Schaetz
Manufacturers:Sika,Binderholz,Josko,Liapor lightweight Concrete,Misopor,Wever & Ducre,Zambelli
Interior Design:FACE | Büro Florian Schätz
Lead Architect / Design / Project Management:Florian Schätz
Designer:Astrid Mayadinta
3 D Artist:Zuliandi Azli
Program / Use / Building Function:Single Family House
Furniture Design:Sten Tanneberger
City:Waldkirchen
Country:Germany
Haus Nordlicht: The Casting of a Bungalow. In the heart of the Bavarian-Bohemian Forest Nature Park, a monolithic silhouette emerges, representing an interpretation of the region's traditional “Waldlerhaus”.
The historical buildings in the Bavarian Forest are predominantly stone constructions, supplemented by wooden structures and wooden roof trusses. The remarkable "Bayerwald" roof, characterized by its elongated construction, imbues the houses with an essence of horizontality. Against this traditional backdrop, Haus Nordlicht is a modern interpretation of New Regionalism.
A harmonious fusion of nature, sustainability, and innovative design characterizes Haus Nordlicht. It seamlessly combines traditional typologies with the sensibility of mid-century bungalows.
Stemming from a former stonemason's desire for a minimalist, seamless home, the idea arose to create a monolithic structure orchestrating spaces while simultaneously enclosing the surrounding landscape through a dynamic interplay of solid and void. As an inhabitable lightweight concrete sculpture beneath a broad overhanging roof, the building defies the harsh climate of hot summer sun and abundant snow in winter, offering harmonious, comfortable living every season.
The architecture forms a dialogue between a cast of lightweight concrete and a long horizontal Cross Laminated Timber (CLT) roof construction. The environmental dilemma of using conventional synthetic insulation steered the project into a sustainable direction. The constructive design approach using mainly sustainable materials showcased a forward-looking focus to mitigate ecological problems in construction. Layering Polystyrol on structural walls is supplanted with lightweight thermal concrete enriched with foam glass and natural clay aggregates. The site's remoteness necessitated prolonged transportation of the concrete, which posed a challenge to its flowability.
Additionally, the exothermic properties of the massive concrete walls, which heat up to 80 degrees during its curing process, required innovative cooling strategies: ice water and thermal packaging were applied while casting the structure during winter months at about zero degrees Celsius. This approach helps preserve the smooth aesthetic while, conversely, preventing capillary cracks. Spruce trees from the nearby forest were used to form the exposed concrete walls, leaving their poetic imprint. Coupled with renewable wood pellet heating, solar water heating, foam glass floor insulation, and innovative internal underfloor heating/cooling systems, the building achieved a high energy efficiency rating of A-Plus, with primary energy consumption reduced to less than 30 kWh/(m²*a).
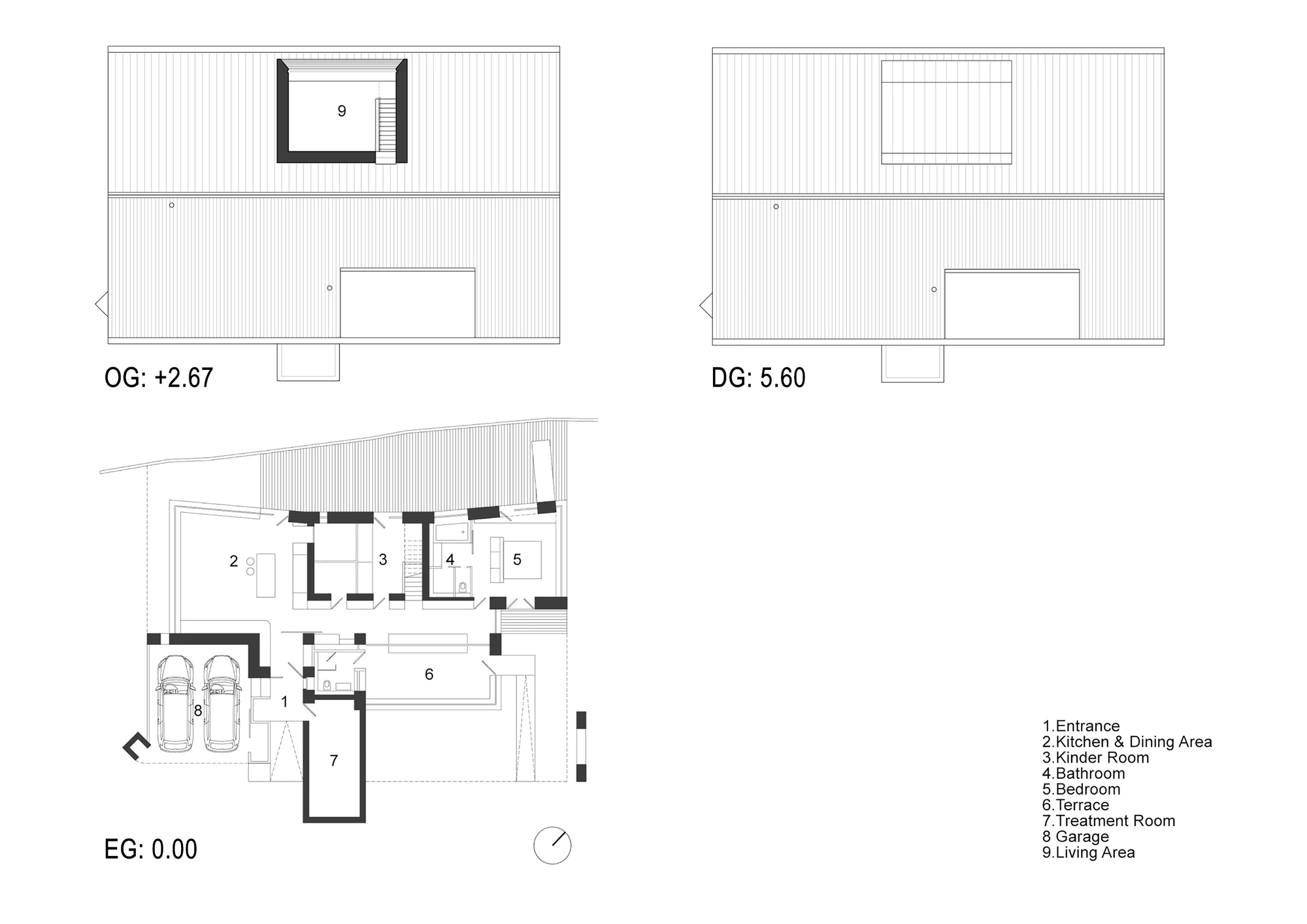
The spatial configuration of the bungalow has been meticulously crafted to harmonize indoor and outdoor spaces with the natural topography and vistas. The floor plan embraces an open concept. The “Stube,” comprising living, kitchen, and dining areas and a wooden fireplace, is situated on the south side, while the bedrooms, studio, and study rooms are allocated on the east and north sides. The "Gobel," a cubic dormer with expansive glazing, frames the sunset on the horizon, providing a breathtaking view of the landscape. As a cozy family lounge, it offers a sublime retreat where nature and the forest take center stage.
The essence of “Waldlerhaus” is mirrored in the modern interpretation embodied by Haus Nordlicht, standing as an exceptional exemplar of sustainable architecture that amalgamates tradition with innovation and nature with design. Its seamless melding into the landscape, sophisticated use of materials, and dedication to energy efficiency render it a benchmark for environmentally conscious living and building.
Where Asia meets Bavaria. The FACE team, operating out of Singapore and Germany and led by Florian Schätz, not only narrates the region's architectural heritage but also pioneers new standards for merging Asian lifestyle with sustainable construction, illustrating how architecture can enrich inhabitants' lives while safeguarding the environment. Indeed, Haus Nordlicht is a true testament to the boundless possibilities of thoughtful design, that creates values.
Project gallery
客服
消息
收藏
下载
最近




































